Nouvelle-Aquitaine, Haute-Vienne (87)
Arnac-la Poste, Église Saint-Martial
Édifice


L’église paroissiale d’Arnac-la-Poste, qui faisait partie de l’archiprêtré de Rancon, est actuellement sous le vocable de saint Martial ; elle semble avoir été anciennement dédiée à saint Julien de Brioude, et son curé, auquel était donné parfois (par courtoisie ?) le titre de prieur, était à la nomination du prévôt de Saint-Benoît du Sault, dépendance de la puissante abbaye auvergnate de Brioude. À partir de 1755 toutefois, le curé fut nommé par le supérieur du séminaire de Limoges. Une communauté de prêtres a desservi la paroisse jusqu’à la Révolution.
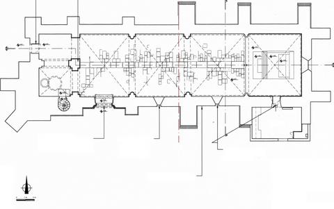
L’édifice est de plan très simple : quatre travées voûtées sur croisées d’ogives, précédées, à l’ouest, d’un vestibule divisé longitudinalement en deux parties inégales ; la plus large, au sud, sert de base au clocher auquel on peut accéder par un escalier à vis englobé dans l’épaisseur du mur ; la partie nord est percée, à l’ouest, d’une petite porte, de date incertaine, très nettement décalée par rapport à l’axe de l’église. La porte principale (très probablement protégée, à l’origine, par un auvent) s’ouvre dans le mur sud de la première travée de la nef.
Bien que l’édifice donne une certaine impression d’homogénéité (en partie à cause de l’absence totale d’ouvertures du côté nord), il se compose en fait de deux parties d’époques différentes : les deux premières travées, ainsi sans doute que le vestibule, datent de la fin du XIIe s. ou plus vraisemblablement du début du siècle suivant, comme semblent l’indiquer l’aspect de la voûte sur croisée d’ogives et surtout le décor du portail sud, en arc brisé, dont les chapiteaux des piédroits se prolongent sur les murs latéraux par une frise de feuillages, selon une formule très largement répandue dans les édifices limousins de l’époque gothique.
Les deux travées orientales ont été bâties, ou rebâties, à la fin du Moyen Âge, peut-être dans le premier quart du XVe s., mais en harmonie, malgré des différences dans le type des supports, avec les travées occidentales. Il n’est pas certain que les éléments de fortification encore en place et, en particulier, les deux échauguettes placées sur les contreforts extérieurs, à la jonction des deux parties de la nef, remontent à la même époque. Le bourg avait très probablement été ravagé par les troupes anglaises en 1370-1371, ce qui aurait pu entraîner la reconstruction partielle et la fortification de l’église, qui était par ailleurs pourvue d’un mur d’enceinte dont une porte subsiste encore. Mais elle aurait pu aussi être fortifiée à une date plus tardive, en particulier dans la seconde moitié du XVIe s., lors des guerres de Religion, particulièrement violentes en Limousin. Les échauguettes d’Arnac ont été rapprochées de celles de l’église d’Azat-le-Ris, malheureusement elles aussi de date incertaine. Le contrefort placé en oblique au sud-ouest du clocher ainsi que le massif de maçonnerie qu’il contrebute sont aussi difficiles à dater : l’église a certainement fait aux XVIIe (époque à laquelle aurait pu être édifiée la flèche polygonale), XVIIIe et XIXe siècles l’objet de travaux, mais ceux-ci ne sont pas très précisément connus : ainsi, en 1864, la municipalité fit-elle don au musée de Cluny d’un autel gallo-romain, en forme de cippe, « retiré des substructions de l’église », ce qui semble impliquer, vers cette date, une intervention relativement importante. Cet autel a été, par la suite, déposé au Musée des Antiquités nationales de Saint-Germain-en-Laye.
L’église d’Arnac-la-Poste, si elle a peu attiré l’attention, est cependant très représentative de l’histoire des édifices religieux du Limousin. Sa construction initiale s’inscrit dans un contexte marqué par la vitalité de l’institution paroissiale, en particulier dans la Marche limousine, et son plan ne diffère guère de celui des nombreuses églises bâties par les Templiers, très bien implantés dans cette zone. La reconstruction des chevets et la réalisation d’ouvrages défensifs sont aussi des traits communs à beaucoup d’églises de la région (le meilleur exemple étant celui, assez voisin, de Compreignac), même si la chronologie de ces travaux reste souvent incertaine. Les sondages effectués par Mme Diane Henry-Lormelle ont révélé l’existence de cinq décors successifs mais très lacunaires, sous le badigeon actuel, avec, au niveau le plus ancien, une scène (Crucifixion ?) sur le mur nord de la deuxième travée. L’église d’Arnac est connue pour conserver, non seulement plusieurs statues de qualité honorable (saint Étienne, saint Julien, saint Martial), mais surtout un admirable reliquaire pédiculé du XIIIe s., de plan polylobé, provenant du trésor de l’abbaye de Grandmont.
Pour la restauration des élévations extérieures et des couvertures du vestibule et des deux premières travées de cet édifice si caractéristique, la Sauvegarde de l’Art français a donné 28 000 € en 2008.
Jean-René Gaborit


