Occitanie, Tarn-et-Garonne (82)
Aucamville, Eglise Saint-Barthélémy
Édifice


Description
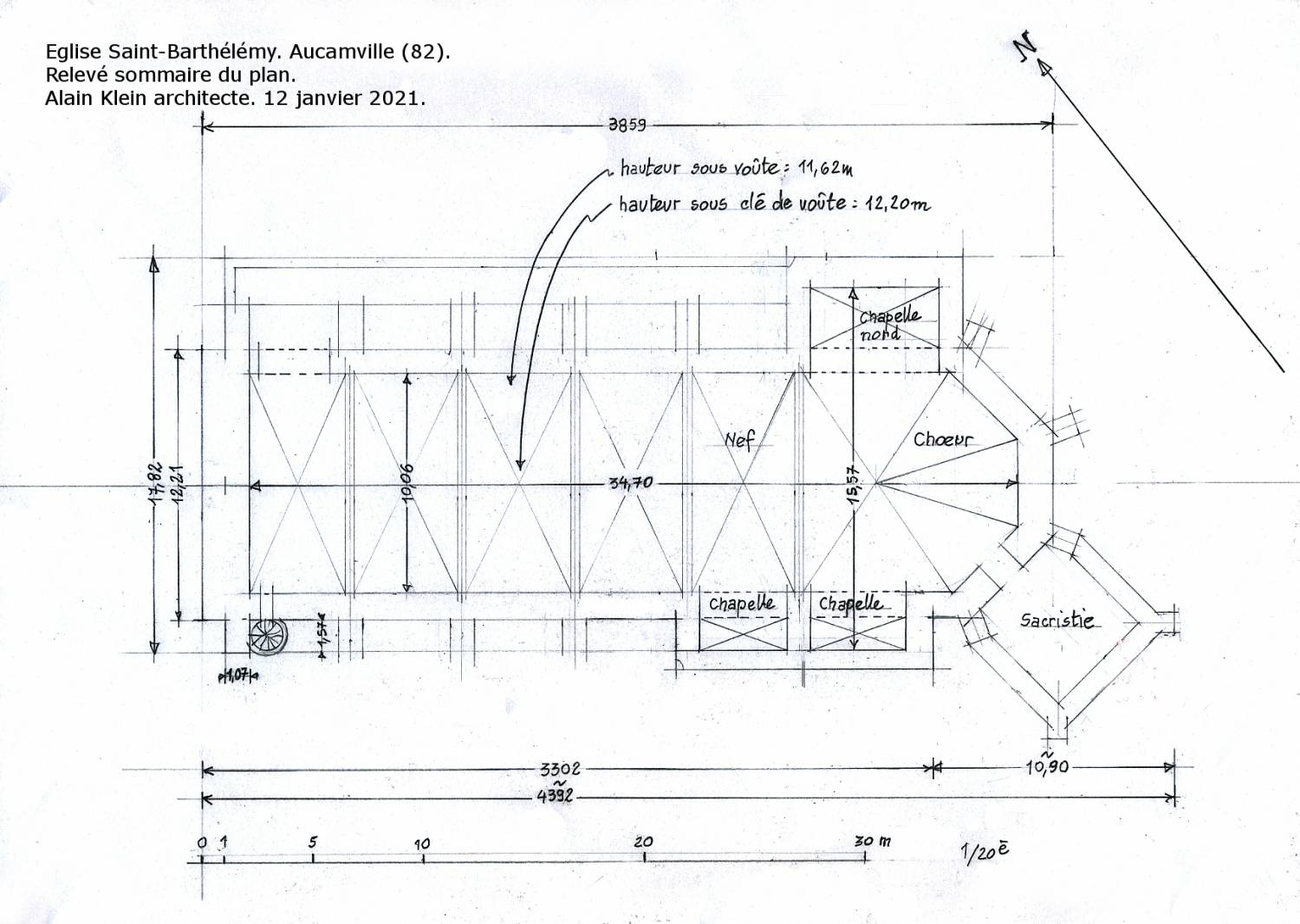
Construite entièrement en briques, l’église Saint-Barthélémy se compose d’une nef unique à cinq travées terminée par un chevet à pans coupés, recevant une chapelle sur son flanc sud et deux chapelles sur son flanc nord.
Elle est caractéristique du style gothique méridional flamboyant du XVIe siècle.
De l’église primitive datable du XIIIe siècle subsiste un exceptionnel portail de transition romano-gothique, se distinguant par un arc brisé à voussures moulurées en briques, des colonnettes en marbre, des chapiteaux sculptés en calcaire, qui font la part belle à tout un bestiaire fantastique et une frise ciselée d’élégantes volutes végétales. La grande qualité du programme sculpté témoigne de la production d’un atelier d’artistes talentueux.
La façade principale est surmontée par un clocher-mur, reconstruit au XIXe siècle dans un style néo-classique très dépouillé. Il est accessible par un escalier à vis, accolé à la façade sud et couronné par une petite coupole.
Plusieurs reliquats d’enduits au mortier de sable et de chaux subsistent sur les façades extérieures de l’église. La partie basse du clocher-mur est pourvue d’une litre enduite.
Le volume intérieur est couvert de voûtes sur croisée d’ogives quadripartites, contrebutées par de profonds contreforts en glacis, qui scandent les façades nord et sud et le chevet à trois pans coupés.
Les remplages des fenêtres, sculptés dans le calcaire ou le grès. dessinent des motifs variés et sont dotés de vitraux datant du XIXe siècle.
Le mobilier conserve plusieurs pièces remarquables, datant des XVII-XVIIIe siècles, bénéficiant d’une protection au titre des objets Monuments Historiques.
historique
La paroisse d’Aucamville, située dans l’ancien diocèse de Toulouse, est mentionnée dès la fin du XIe siècle.
Rattachée à l’abbaye bénédictine Saint-Pierre du Mas-Grenier, elle se présente comme un prieuré confiée à un petit groupe de moines, vivant en communauté sur place. On retrouvera la trace d’un petit cloître accolé à l’église située au cœur du village, encore visible en 1527 avant les Guerres de Religion.
Cependant, cette église primitive trouvait à l’emplacement du cimetière et avait comme titulaire saint Martin. Nous savons qu’elle fut abandonnée autour des années 1300, au moment de la création du village actuel à l’époque où la communauté villageoise reçut ses coutumes royales. En 1688, cette ancienne église de Saint-Martin fut toutefois démolie.
L’église actuelle, édifiée au centre du village et consacrée à Saint-Barthélémy, remonterait au XIIIe siècle. Elle a subi plusieurs transformations au cours des siècles : clocher construit en 1527 et restauré en 1698 ; charpente et couverture refaites en 1461.
De l’église primitive du XIIIe siècle ne subsiste que le portail en brique.
L’édifice actuel de style gothique méridional remontant au XVIe siècle est construit entièrement en brique. Après l’effondrement en 1814 de son ancien clocher toulousain, haut de 49 mètres, qui provoqua la mort tragique d’un habitant du village, le clocher mur actuel fut construit en 1830.
D’après la notice historique d’Alain Klein, architecte (Agence Architerre)










