Pays de la Loire, Mayenne (53)
Ballée, Église Saint-Sulpice
Édifice


Placée sous le vocable de saint Sulpice, l’église de Ballée, de fondation romane, était à l’origine un prieuré bénédictin de l’abbaye de Marmoutier.
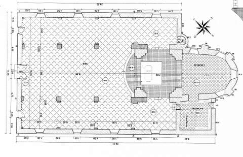
Construite en pierre de roussard et en petits moellons enduits, l’église forme avec sa nef de quatre travées et ses bas-côtés un vaste rectangle dont fait saillie un chœur profond de forme hémicirculaire percé de cinq baies, la cinquième ayant été modifiée pour donner accès à une sacristie édifiée sans doute tardivement au sud. Un clocher puissant, dont les maçonneries et les ouvertures ont été reprises au XIXe s., s’élève au-dessus de la quatrième travée de la nef.
Le plan suggère l’histoire de cet édifice. La modeste église, de fondation romane, mais dont les éléments les plus anciens subsistants de nos jours évoquent davantage une construction des XIII-XIVe s., a pu, au XVIIIe s., connaître des travaux. Le fonds de la fabrique aux Archives départementales de la Sarthe[1] témoigne d’une paroisse gérant son temporel. Cependant l’utilisation sous la Révolution de l’église, désormais désaffectée, entraîne des dégradations importantes : elle sert alors de point d’appui aux troupes républicaines dans un pays chouan. Aussi une restauration globale s’impose-t-elle au début du XIXe siècle.
C’est alors que la partie la plus ancienne de l’édifice − la travée sous clocher − s’est trouvée englobée dans le programme d’une nef ambitieuse dotée de bas-côtés : on remarque l’élégance de l’élévation de cette croisée avec ses quatre puissantes piles en pierre de roussard qui supportent les retombées des grandes arcades au profil brisé et des ogives de la voûte. La disposition même du chœur rappelle l’ancienneté de son implantation, même si les parties supérieures de ses maçonneries, sa toiture et ses ouvertures ont été reprises lors des campagnes de travaux du début du XIXe siècle.
L’église conserve des stalles du XVIIIe s., de belle facture, qui proviennent de l’abbaye de Bellebranche et y ont été installées au XIXe siècle.
Pour la restauration de la couverture et des enduits du clocher, du chœur et de la tourelle d’escalier, la Sauvegarde de l’Art français a accordé une aide de 10 000 € en 2008.
Élisabeth Caude
[1] Arch. Dép. Sarthe, 87 G 1, 89 G 1, 90 G 1, 88 G 12.






