Nouvelle-Aquitaine, Charente (16)
Brossac, Église Notre-Dame-de-la -Nativité
Édifice


Paroissiale, ancienne vicairie perpétuelle unie à la mense épiscopale de Saintes, l’église Notre-Dame-de-la-Nativité est un bon exemple des constructions romanes tardives (seconde moitié du XIIe s.) conservées en assez grand nombre dans les pays de landes d’Angoumois et de Saintonge, terres pauvres, au sol gréso-argileux, semées jadis d’étangs, qui donnaient lieu à une activité potière et à de petites forges artisanales exploitant les poches ferrugineuses du sous-sol. À partir du XIXe s., ces régions furent plantées de pins. On peut citer, appartenant à la même famille architecturale : Curac, Montmoreau, Saint-Laurent-de-Belzagot, Courlac, Saint-Vallier…, toutes églises à nef unique et chœur en hémicycle pourvu d’une arcature au-dedans comme au-dehors, bâties en bel appareil régulier dans un grès coloré plus ou moins dur, appelé grison, et caractérisées, sauf Montmoreau, par l’absence presque totale d’un décor sculpté. La guerre de Cent Ans et, surtout, les destructions huguenotes des années 1561-1569 les ont durement éprouvées.
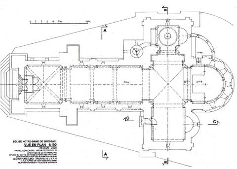
L’église de Brossac, dont la silhouette austère domine une butte de grès rendue plus abrupte par les travaux de voirie du XIXe s. qui lui font comme un socle, a été bâtie de façon homogène dans la seconde moitié du XIIe s. avec une nef unique de trois travées sous berceau, renforcée à l’extérieur et à l’intérieur par une arcature en plein cintre encadrant les fenêtres, un transept saillant doté d’absidioles sur le mur est et un chœur terminé en hémicycle, renforcé par une arcature interne sous cul-de-four et pourvu aussi d’une arcature extérieure. Le clocher est placé, de façon inhabituelle, non à la croisée du transept, mais sur son bras nord, où une très courte travée (1 m à peine de profondeur) précède une seconde travée de plan carré, coiffé d’une petite coupole sur pendentifs reposant sur de puissants dosserets. Le fait qu’à l’extérieur, les contreforts et les parements servant de socle à ce clocher englobent totalement l’absidiole, alors que celle du croisillon sud est bien visible, laisse à penser qu’il s’agit là d’une disposition d’origine, mais la cage carrée de la vis qui le dessert a été refaite à l’époque gothique. La croisée est aujourd’hui couverte d’une voûte d’arêtes tardive, succédant à une autre, disparue, dont la date de 1697 est encore visible en partie haute. On ne peut donc savoir si le clocher primitif était prévu à cet endroit comme c’est ordinairement le cas, et ce qui a pu conduire les constructeurs à la disposition actuelle. L’étage campanaire carré a d’ailleurs été rebâti en 1860 avec deux baies par face sous une flèche en ardoise, remplacée depuis par un toit bas à quatre pans.
À une époque indéterminée mais ancienne, un parapet crénelé, aujourd’hui assez altéré, suréleva le chœur et la nef, accentuant la sévérité majestueuse de l’ensemble. À la période gothique, on détruisit la façade primitive pour allonger l’église d’une travée voûtée d’ogives, et un portail en arc brisé à trois voussures sous archivolte, à chapiteaux en corolle assez dégradés, que surmonte une baie en arc brisé, remplaça, plus à l’ouest, le portail roman détruit. De longues lancettes étroites éclairèrent latéralement cette travée qui porte encore, à l’extérieur, du côté nord, les restes de deux enfeus, et qui reçut une voûte d’ogives. La voûte actuelle, qui est datée de 1902, a été refaite en brique enduite dans le style du début du XIIIe s., mais l’aspect du reste de la travée interdit, et de loin, une datation aussi haute. Le XIXe s. a pourvu la nef d’un berceau trop brisé et a refait, en calcaire, dosserets, colonnes et doubleaux. De même, c’est en calcaire qu’on a repris les colonnes engagées de l’arcature intérieure du chœur, avec des chapiteaux à palmettes qui n’ont rien de médiéval. Les bases anciennes, à la croisée, portent normalement deux tores que sépare une scotie. Ils conservent des vestiges de griffes, et les chapiteaux d’origine sont nus, avec, aux angles, des boules ou de petits masques assez frustes.
La restauration actuelle en cours, s’efforce de rendre acceptables à l’œil, dans la mesure du possible, ces interventions brutales de la fin du XIXe siècle.
Du mobilier ancien de l’église subsiste, au fond du croisillon sud, un retable du XVIIIe s. dont on a restauré la polychromie et la dorure. On conserve sous le clocher nord des fonts baptismaux octogonaux du XVe s. dont chaque face s’orne d’un trilobe sculpté. Dans le cul-de-four du chœur a été dégagé un quadrupède peint, faisant sans doute partie d’un tétramorphe, repeint au XVIIe siècle.
Pour la consolidation de la croisée (maçonnerie, charpente, couverture), la Sauvegarde de l’Art français a accordé un don de 20 000 € en 2010.
Pierre Dubourg-Noves



