Occitanie, Gers (32)
Castex-d’Armagnac, Église Saint-Cane-Sainte-Radegonde
Édifice


L’Église Saine-Cane-Sainte-Radegonde au hameau de Saine-Cane. Le village est situé à la limite occidentale du Gers dans la partie presque landaise du département ; il dépendait en effet avant la Révolution du diocèse d’Aire-sur-Adour. Saine Cane, qui s’écrit ailleurs Canne, désigne comme Cande ou Candide un compagnon de saine Maurice dans la légion thébaine. Sa fête se célèbre le 22 septembre.
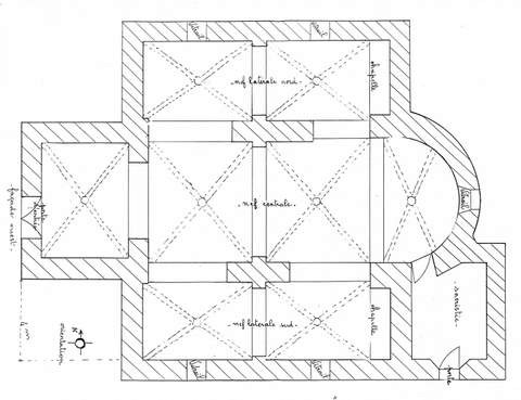
L’histoire de cette région est très peu documentée par les textes. On sait qu’elle fut particulièrement disputée entre catholiques et protestants : en 1571, l’église fut brûlée par « les gens du vicomte de Moncla », les livres, cloches et custodes d’argent furent emportés ainsi que tous les ornements. L’édifice est précédé d’un clocher de plan octogonal. L’église se compose d’une nef de deux travées flanquées de deux collatéraux et se termine par un chevet en léger arrondi. La nef, d’une belle ampleur, est couverte, comme les bas-côtés, de voûtes sur croisées d’ogives donc le profil est fortement accentué. On note l’existence de clefs sculptées avec fleurs de lys sur la nef et de clefs pendantes sur les bas-côtés. L’ensemble a été daté par Paul Mesplé de la fin du XVe s., mais pourrait être rajeuni d’un siècle.
Dans les maçonneries du bas-côté nord subsiste un appareil beaucoup plus ancien que celui de l’ensemble de l’église et que l’on attribue généralement à l’ancienne église romane. Le mur sud est orné de boiseries du XVIIIe siècle. Dans le mur du chevet, un vitrail à deux lancettes représente les patrons de l’église, saine Cane et sainte Radegonde ; ils ont été exécutés par l’atelier Dagrand de Bordeaux en 1901.
L’élément le plus séduisant de cette église est le clocher, « l’une des principales gloires des cités », comme le noce Marcel Durliat à propos de la Gascogne. C’est une cour octogonale en briques cuites, couverte en tuiles canal, que l’on peut dater du XIVe s., mais qui est peut-être beaucoup plus tardive. Il ne s’agit pas ici d’un « clocher toulousain », tout au plus pourrait-on le rapprocher des clochers des nombreuses églises rurales reconstruites après la guerre de Cent Ans ou même après les guerres de Religion. Ni balustrade ni flèche ne la couronnent, chaque baie du dernier niveau est percée d’une fenêtre sans ornement et l’on pourrait difficilement parler ici d’une structure en gradins.
L’église possède quelques éléments mobiliers dignes d’intérêt, notamment un autel en bois peine et doré, avec son tabernacle et son contre-autel, qui sont inscrits à l’inventaire supplémentaire ainsi que plusieurs tableaux donc une Vierge allaitant, du XVIIe siècle.
En 1996, la Sauvegarde de l’Art Français a subventionné les travaux de restauration de la charpente et de la toiture pour un montant de 40 000 F.
Fr. B.



