Bourgogne-Franche-Comté, Côte-d’Or (21)
Chamboeuf, Église Saint-Michel
Édifice


Eglise Saint-Michel. Le village de Chambœuf est situé dans les Hautes-Côtes, au-dessus du vignoble de GevreyChambertin, dans un paysage dominé par les ruines du château des sires de Vergy.
Le chœur de l’église a été édifié vers 1785 et la nef reconstruite de 1834 à 1836, en raison de son mauvais état, sur une fondation médiévale. Il est à noter toutefois que ces travaux se sont poursuivis en gardant une certaine continuité stylistique. Les plans sont dus à l’architecte Gaitet, vivement critiqué par l’architecte départemental Pierre-Paul Petit. Le conseil municipal, devant la carence de l’architecte, obtient son remplacement par FénéonDamotte, de Dijon. La réception des travaux a lieu en 1840.
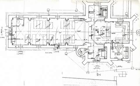
L’ensemble présente un plan en croix latine avec une nef de quatre travées, un transept et un chœur d’une travée, couverts de voûtes d’arêtes. Les travées sont séparées par des doubleaux en plein cintre retombant sur des pilastres ou, dans la nef, sur des piliers engagés jouant le rôle de contreforts intérieurs. En effet, si à l’extérieur le chœur du XVIIIe s. est encore cantonné de contreforts, l’architecte les a refusés pour la nef, en raison de la répugnance manifestée à l’époque néo-classique pour ce type d’appui, considéré comme inesthétique et « médiéval ». Le décor des chapiteaux se résume à de simples moulures en doucine.
Les baies de l’ensemble de l’édifice sont en plein cintre ; elles comportent des ébrasements seulement pour le chœur. L’accès ordinaire se pratique actuellement par une porte latérale, remplaçant une porte murée en plein cintre à clé saillante, qui donnait sur le bras droit du transept. La porte principale, à l’ouest, très sobre, correspond aux canons architecturaux en vigueur dans cette première partie du XIX’ s., avec une porte à linteau droit, flanquée de deux pilastres doriques. La tour de clocher de plan carré, élevée sur le bras droit du transept, est formée d’un niveau abritant le beffroi, contemporain du chœur et d’un second niveau surmonté d’une flèche, datant de 1838-1842.
L’intérieur, qui semble avoir été figé depuis la monarchie de Juillet, abrite un mobilier qui comporte un autel-tombeau en pierre rose, provenant des carrières de la Côte, toute proche, un autel latéral, formé de colonnes jumelées entourant une statue de l’archange saint Michel, auquel est dédiée l’église, une remarquable chaire à prêcher et un confessionnal où l’on distingue des réminiscences du style Louis XVI, des bancs rustiques du XVIIIe siècle ; enfin, un peuple de statues de saints et d’anges cérophéraires, colorés dans la meilleure tradition sulpicienne.
Le petit cimetière qui entoure l’église est désaffecté, mais quelques tombes anciennes de style néo-gothique subsistent, constituant un témoignage de l’art funéraire au XIXe siècle.
En 2000, la Sauvegarde de l’Art français a accordé 7 622 € pour le drainage, la réfection des maçonneries extérieures, la réparation de la couverture et la pose d’un paratonnerre.
B. S. I.



