Normandie, Eure (27)
Chambray, Église Saint-Martin
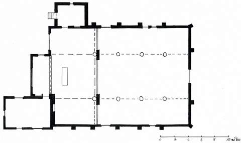
Édifice


Située dans la vallée de l’Eure, l’église Saint-Martin de Chambray est mentionnée dès 1015 dans une charte de Richard II. Dépendant de l’abbaye de Saint-Ouen de Rouen puis du seigneur du lieu, l’édifice actuel, placé en plein cœur du village, fut consacré en septembre 1552 par Jean, évêque d’Hippone. On distingue deux grandes périodes de construction : l’essentiel de l’édifice remonte au XVIe s., tandis que la tour clocher, construite hors-œuvre au droit du bras sud du transept date du XVIIe siècle. De plan cruciforme, constitué de trois vaisseaux, terminé par un chevet à fond plat, cet édifice semble s’apparenter aux églises dites « halles » : les longs pans de sa toiture couvrent la nef et les bas-côtés, les quatre grandes arcades en tiers-point de la nef contribuant à donner une impression de grande amplitude au volume intérieur. La façade occidentale, divisée par des cordons en épais relief dans son élévation, est épaulée de quatre contreforts, dont deux d’angles, et percée d’un portail en anse de panier aux moulures gothiques surmonté d’une rose à lobes flamboyants. Une baie en accolade éclaire chacun des bas-côtés. La nef ouvre sur les bas côtés par de hautes arcades en arc brisé retombant sur des colonnes octogonales par l’intermédiaire d’une curieuse imposte, elle aussi octogonale. Les bas-côtés sont couverts d’un quart de berceau. La clarté intérieure de l’édifice provient en partie de la hauteur et de l’élégance de ces arcades. Sur les bras du transept, couverts d’une charpente en carène renversée, on note deux départs d’arcs au droit des piliers sud et nord des grandes arcades du chœur, témoins d’un projet non abouti. Le chœur d’une travée, de plan rectangulaire, est couvert d’une charpente en carène renversée. Une baie au remplage flamboyant ouverte dans le mur du chevet l’éclairait. Celle-ci a été murée lors de la mise en place du retable. La tour-clocher, qui cache une baie du bras sud du transept, est construite selon un plan carré. Sa construction a nécessité l’ouverture dans le mur oriental du bras sud du transept d’une baie supplémentaire divisée par deux meneaux. Ce clocher, en partie arasé à une date inconnue, a subi de nombreuses modifications (percements de baies en plein cintre en partie haute et abattement des angles des maçonneries hautes, la flèche octogonale coiffant le clocher de section carrée). Les travaux du XIXe s. n’ont que très peu modifié le visage de cette « bien modeste cathédrale » comme l’appelle l’abbé Vitale Bellemare, le curé qui desservit Chambray, du 18 juillet 1880 à sa mort le 10 juin 1923. Un mobilier et une statuaire de qualité sont conservés dans l’édifice : outre une poutre de gloire du XVIe s., on remarque une statue de sainte Barbe du XVIe s., une sainte tenant un livre (sainte Anne ?). Le mobilier, en grande partie protégé, constitue un ensemble cohérent et de qualité. La Sauvegarde de l’Art français a accordé en 1999 une subvention de 50 000 F pour la restauration des maçonneries extérieures et intérieures, des zingueries et la reprise des piliers dans les bas-côtés nord et sud.
P.-Fr. Th.


