Occitanie, Aude (11)
Moussan, Chapelle Saint-Laurent
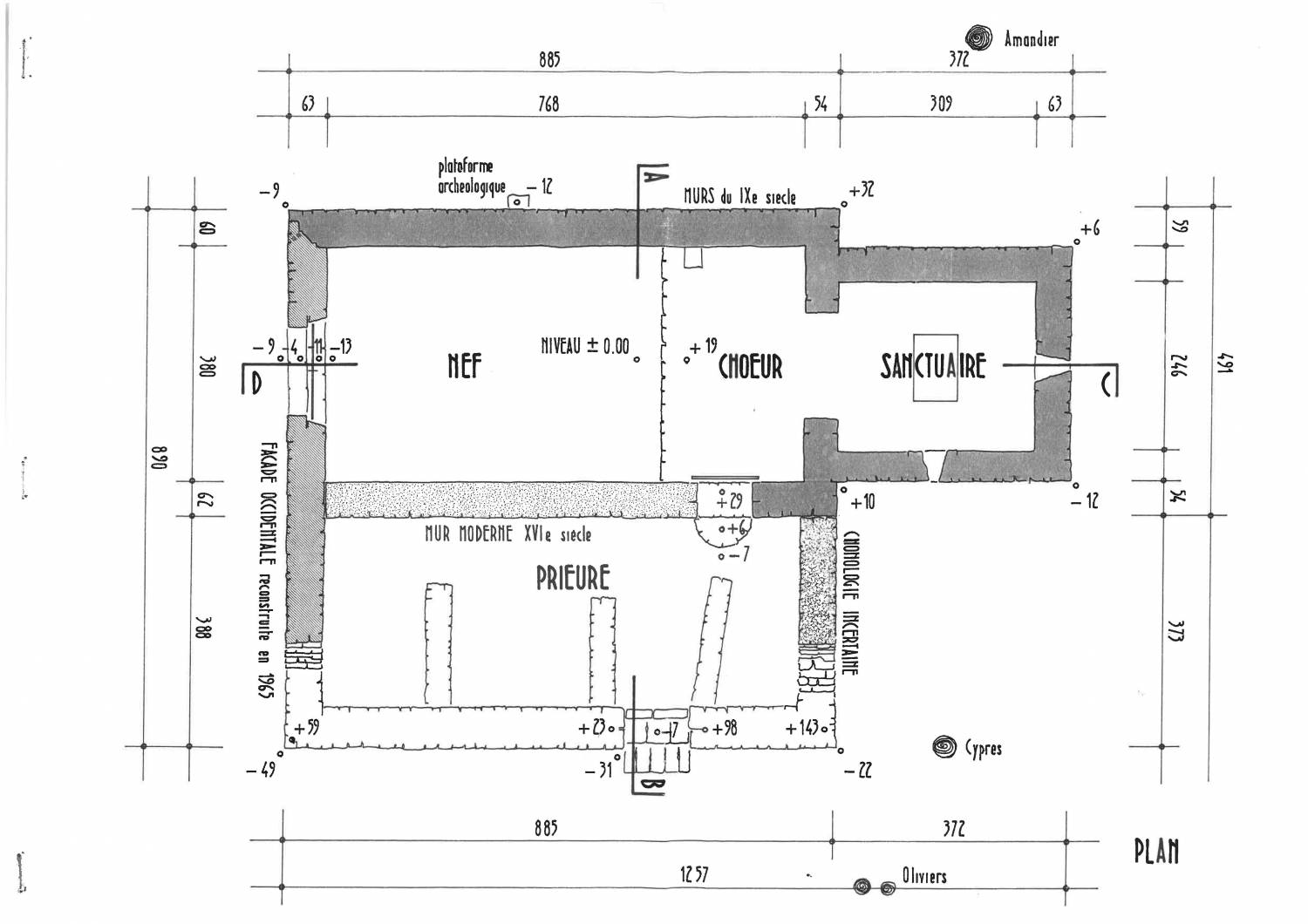
Édifice


description
La chapelle est dotée d’une nef unique et d’un chœur à chevet plat, qui est séparé par un arc triomphal outrepassé et chanfreiné. Un ermitage, accolé à la chapelle, date probablement du XVIIe siècle.
Son histoire
La chapelle a été construite entre le VIe et le IXe siècle, à l’emplacement d’une fontaine miraculeuse, la Fount Rougouse, qui avait la réputation de guérir les maladies de peau.
Placée sous la juridiction du chapitre de la cathédrale Saint-Just-et-Saint-Pasteur de Narbonne, elle devient un lieu de pèlerinage et une étape pour les pèlerins et les moines entre la ferme cistercienne de Fontcalvy et l’abbaye de Fontfroide. Connue comme « Mouniélou », ou petit prieuré, elle est mentionnée en 1763 comme « Hermitage » sur la carte de Cassini.
La chapelle est abandonnée après la disparition du dernier ermite au début du XXe siècle.
Après une longue période d’abandon, elle est achetée en 1965 par l’association Comité Saint-Laurent qui entreprend de la restaurer alors qu’elle est en grande partie ruinée.







