Bourgogne-Franche-Comté, Saône-et-Loire (71)
Chaudenay, Église Saint-Véran
Édifice


L’église de Chaudenay est placée sous le vocable de Saint-Véran. Elle est mentionnée dès le Xe s. dans les textes comme chapelle, desservie par les chanoines réguliers de Saint-Symphorien d’Autun. L’église devint paroissiale dès le XIIIe siècle. C’est un édifice caractéristique du gothique primitif bourguignon. Il s’apparente à un ensemble d’édifices du bassin de la Dheune et du Chalonnnais dont les exemples les plus représentatifs sont les églises de Fontaines, Saint-Loup-de-la-Salle et Gergy et bien entendu l’église du prieuré clunisien de Saint-Marcel-lès-Chalon, la plus vaste de toutes.
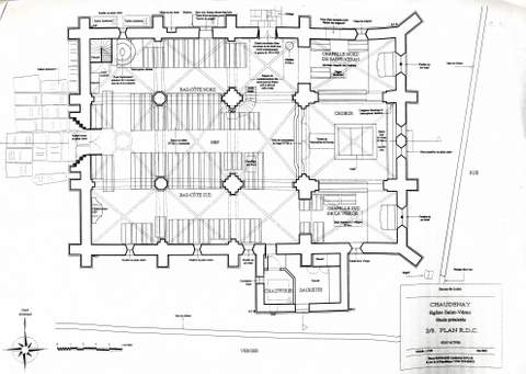
Son plan rectangulaire, fort compact, est composé d’une nef de trois travées flanquée de simples collatéraux, d’un chœur à chevet plat cantonné de deux chapelles latérales établies en prolongement des collatéraux. Une sacristie classique est greffée contre le mur sud, à cheval sur la travée du collatéral et la chapelle qui le prolonge. Un puissant clocher de plan barlong surmonte la travée occidentale de la nef, il émerge du grand comble à deux pans qui couvre la nef ; sa flèche octogonale, à forts empâtements pour s’adapter au plan rectangulaire du clocher, est ornée de tuiles vernissées, mariant trois teintes dans un dessin de chevrons. Les toitures des collatéraux sont établies en continuité avec celle de la nef, ne laissant apparaître que la corniche des murs gouttereaux de celle-ci portée par d’élégants corbeaux en quart-de-rond. Ce dispositif se généralise sur tout le pourtour de l’édifice y compris sous les dalles recouvrant les glacis des pignons. Un portail s’ouvre dans un massif établi légèrement en saillie de la façade occidentale, dans l’emprise volumétrique du clocher. Deux arcs segmentaires évident et allègent ce massif, raccrochant ainsi le portail à la structure de la façade en amorçant ainsi les contreforts qui cantonnent la naissance du clocher. De profondes voussures en plein cintre encadrent un tympan présentant une croix fleurdelisée.
L’ensemble de l’édifice est couvert de voûtes gothiques sur nervures, tous les arcs ont un profil brisé à part les croisées d’arcs des collatéraux et les baies de la première campagne de travaux. Les nervures et les arcs reposent sur des piliers trapus de plan cruciforme ornés de chapiteaux à crochets très frustes et de masques. Les piles libres soutenant le clocher, de section octogonale, semblent appartenir à un remaniement consécutif probablement à la surélévation du clocher. Les baies initiales de l’église sont étroites et fortement ébrasées, le chevet est percé dans son axe d’un triplet : deux longues baies surmontées d’une troisième fort courte mais de même largeur.
part quelques remaniements dans les percements, la seule modification importante du programme initial fut le prolongement des deux collatéraux par des chapelles cantonnant le chœur ; sa travée, autrefois libre, possède, encore bien lisible, l’appareillage de ses contreforts latéraux ainsi que, dissimulée dans les combles, la trace des fenêtres latérales.
Deux campagnes de travaux semblent s’être succédé, la première attribuable au début du XIIIe s. pour l’ensemble nef, collatéraux et chœur, la seconde à la transition du XIVe et du XVe s. pour les chapelles latérales et pour le second étage du clocher et la reprise en sous-oeuvre de ses piles. Un décor peint fut réalisé au XIXe s. sur les parements intérieurs du chevet et plusieurs témoignages subsistent de décors de faux appareillages du XVe s., de croix de consécration et de litres funéraires. Le mobilier est riche, plusieurs éléments sont classés : un panneau en bois peint représentant l’institution du Rosaire du XVIe s., ainsi qu’une pierre tombale parmi de nombreuses autres et une belle grille de communion du XVIIIe siècle.
Pour les travaux de restauration et de reprise des maçonneries et de drainage, la Sauvegarde de l’Art français a accordé 7 000 € en 2004.
Jean-Denis Salvèque



