

Au milieu d’un hameau formé de quelques jolies maisonnettes basses, en avant du château, accompagnée au midi de grands arbres et dominant un ample paysage vallonné, l’église, dont l’extérieur a été restauré avec discrétion, participe au charme d’un ensemble attachant.
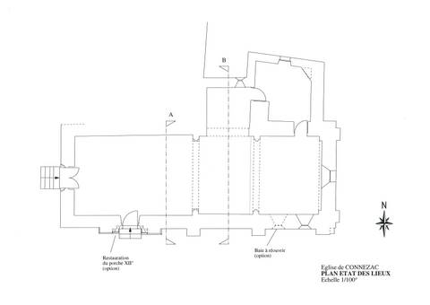
L’ensemble est implanté sur un plateau calcaire en pente douce, dont le bord est occupé, à l’ouest, par la vaste cour quadrangulaire d’un bel et imposant château classique. L’église Saint-Pierre est située en avant et obliquement par rapport au portail de ce dernier : c’est un modeste édifice rectangulaire (19,20 m sur 7,15 m) régulièrement orienté, de style roman, à chevet plat, qui a été remanié à la fin du Moyen âge et depuis. Il n’a guère laissé de traces dans l’Histoire.
À l’intérieur, l’église forme un long rectangle divisé en trois travées inégales. Celle de l’ouest, qui correspond sensiblement à la moitié de la longueur totale, est couverte d’un berceau surbaissé récent en plâtre sur lattis, mais elle devait à l’origine posséder, comme le reste, un berceau brisé. La moitié orientale comprend deux travées rectangulaires. La première, un peu plus courte que le chœur, ouvre au nord, par un arc surbaissé sans mouluration, sur une chapelle carrée sous plafond dont le mur nord s’éclaire d’une courte baie chanfreinée ancienne. Elle communique avec une sacristie tardive établie au nord de la dernière travée. Ces deux travées orientales sont voûtées d’un berceau brisé sur doubleaux. Des dosserets de plan carré au niveau du sol ont reçu, à une hauteur de 80 cm environ, deux larges gorges qui en ont supprimé les arêtes. Cette mouluration se prolonge sans interruption pour former les doubleaux, où n’apparaissent ni chapiteau ni tailloir. Cette disposition, qui n’est pas romane, pourrait bien ne dater que du XIXe s., époque qui a vu reprendre le berceau originel de cette partie de l’église. Le sol de l’édifice monte légèrement vers l’est.
À l’extérieur, dans la partie occidentale du gouttereau sud, la porte primitive, qui peut dater du milieu ou de la seconde moitié du XIIe s., ouvre dans un massif plat en avant-corps sous glacis précédé de trois marches. Le glacis actuel n’est pas d’origine : on lit encore, de chaque côté de l’avant-corps, le sommet de deux courts contreforts qui en occupaient les angles. On a monté plus tard, un peu plus haut qu’à l’origine, le glacis actuel en petites pierres plates.
De même, la voussure romane unique sans décor, encadrée d’une archivolte nue en chanfrein, qui reposait sur deux colonnes à chapiteaux disparus, dont seuls subsistent les tailloirs nus eux aussi, chanfreinés, a été empâtée à leur emplacement, sans doute à la fin du Moyen Âge, par deux piédroits à l’angle abattu, coiffés d’un arc brisé, rétrécis par les montants de la porte actuelle plus tardive, en arc segmenté. Cet avant-corps est en moyen appareil soigné, et se détache sur le mur remanié, en appareil allongé de moindres dimensions, qui porte vers l’est trois contreforts plats sous glacis irrégulièrement espacés. Un quatrième contrefort disparu, sans doute analogue, devait marquer le raccord avec la façade ouest. Corniche et modillons ont disparu. La toiture à double pente est en tuile canal. Entre les deux contreforts orientaux du mur méridional, une fenêtre en plein cintre, légèrement ébrasée au-dehors et beaucoup plus largement au-dedans, éclaire le chœur. Dans la même travée, une seconde fenêtre analogue, à sa gauche, a été bouchée. Une troisième du même type, plus longue, ouvre à l’est au milieu du chevet plat entre deux contreforts analogues aux précédents. Le pignon du chevet a été légèrement rehaussé sur un autre, en lauzes qui pourraient bien avoir constitué la couverture primitive de l’église.
À la fin du Moyen Âge, on a remonté une façade occidentale nue, sans fenêtre et dépourvue de contreforts, en appareil régulier, qu’on a percée d’une porte en arc brisé à trois voussures sous une archivolte grossière, légèrement décalée vers le nord. On y accède par cinq degrés extérieurs. Au-dessus, un cordon horizontal souligne la base d’un pignon aigu plus récent en moellon avec remploi d’appareil, écrêté à mi-hauteur pour recevoir, sur un second cordon en chanfrein, un clocher-arcade à trois ouvertures disposées deux et une, sous un gâble sommé d’une croix antéfixe. La face nord de l’édifice, à laquelle sont adossées des constructions, n’est pas visible. Elle semble avoir toujours été aveugle. Dans son angle nord-est a été construite, un peu de biais, une sacristie quadrangulaire tardive.
Pour aider à la restauration de la toiture et de maçonneries, la Sauvegarde de l’Art français a accordé un don de 5 000 € en 2010.
Pierre Dubourg-Noves



