Occitanie, Tarn (81)
Rabastens, Eglise de Vertus
Édifice


Descriptif
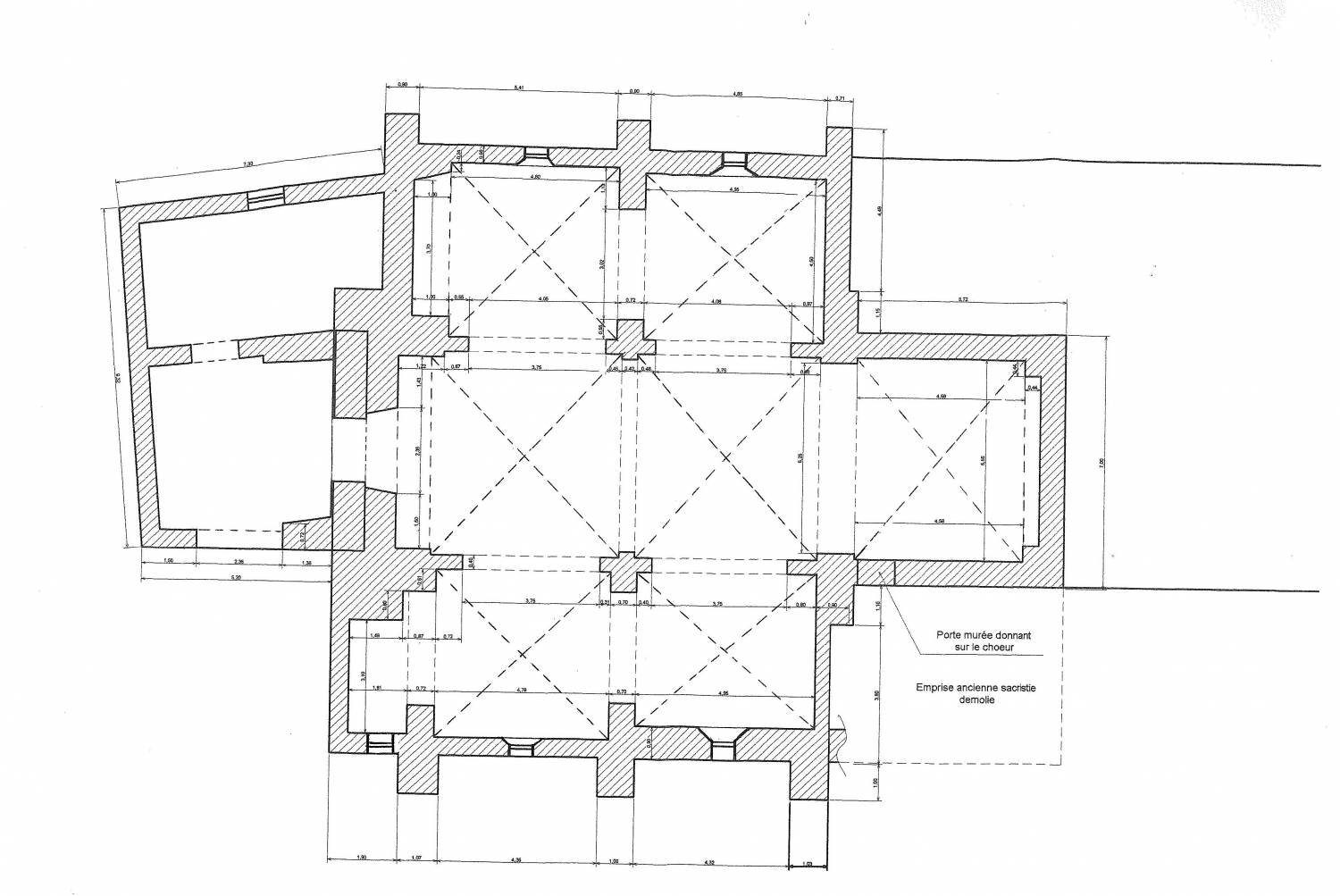
Eglise de plan irrégulier avec une nef de deux travées abritant des chapelles, flanquée de deux bas-côtés soutenus de contreforts.
Le choeur est à chevet plat. L’église est voûtée en plâtre.
Un porche permet d’accéder à l’église à l’ouest. La façade principale est surmontée d’un clocher-mur à 3 niveaux d’arcades. Les murs sont en brique.
Historique
En 1200, l’évêque d’Albi était le collateur de l’église de Vertus. En 1219, celui-ci la donna aux chanoines de Sainte-Cécile, avec le tiers des dîmes du blé et toutes celles des menus grains qu’il reprit sans doute bientôt après. Et en 1229, la possession de la dîme de l’église de Vertus suscita des controverses et nécessita une sentence arbitrale. En 1250, il est fait mention d’un hameau et d’une église paroissiale, là où elle est aujourd’hui située « sur un méplat d’où elle domine deux ravins qui se réunissent ». En 1280, les chanoines de Saint-Salvy d’Albi eurent également des droits sur Vertus et en 1282, Hugues Bernard de Rabastens père et fils délaissèrent les dîmes qu’ils prélevaient à Saint-Pierre-de-Vertus.
En 1542, on trouve l’arrentement des fruits et revenus de la rectorerie de Vertus pour 210 livres par an et en 1637, les œuvres de Saint Pierre, de Saint Blaise et de la Table du Purgatoire existaient dans l’église et possédaient diverses terres dans la paroisse.
Le 8 novembre 1683, Jacques Boucher, maître sculpteur à Rabastens, s’engagea par contrat devant notaire à réaliser le retable du maître autel. Il en fut chargé par Bertrand Barthès, curé de la paroisse et Robert Terrassié et Nicolas Roques, marguilliers. Le sculpteur devrait employer « du bon bois de noyer » et ajuster au nouveau retable, le tabernacle ancien. Le 21 septembre 1685, Jacques Boucher reçut devant le même notaire la dernière tranche de la somme fixée et les bailleurs se déclarèrent « pleinement contans et satisfaictz ».
Dès 1900, Emile Marty attira l’attention de la municipalité sur cette œuvre d’art et émit le vœu que soit demandé son classement comme monument historique. A partir de 1823, le registre du conseil de fabrique nous donne de nombreuses indications sur l’état de l’église de Vertus et les travaux qui y sont effectués. Le 14 avril 1844, « le conseil de fabrique a donné à l’entreprise Pierre Michel maître maçon, les travaux suivants à faire à l’église et les membres du conseil se sont obligés immédiatement à prêter à la fabrique la somme qui lui manquera pour payer le dit Michel qui s’est obligé moyennant la somme de 760 Fr. à exécuter les travaux suivants :
– abattre l’arceau de la chapelle Notre-Dame et reconstruire le mur de manière qu’il soit en droite ligne d’un bout à l’autre
– démolir la chapelle des fonds baptismaux, la reconstruire avec le même arceau et la même grandeur que la chapelle de Notre-Dame, plafonner à trois couches la dite chapelle, la carreler, pratiquer du côté du nord une grande ouverture et faire le couvert
– plafonner le dessous de la tribune
– pratiquer un petit escalier dans l’intérieur du clocher, faire une cloison avec deux portes
– couper les deux piliers qui avancent dans l’intérieur de l’église
– plafonner à trois couches le plafond de la voûte de l’église,fournir les lambourdes qui manquent,faire une corniche et l’architrave avec du retour d’espace en espace
– tomber à cinq pans de hauteur, tout autour de l’intérieur de l’église, les vieux mortiers; tous les ouvrages devant être terminés pour le 1er septembre 1844.
Dès 1956, le maire constate le mauvais état de l’église qui menace ruine. Dans les années 1967-69, afin d’assurer la sécurité des paroissiens, la mairie décide de condamner les chapelles latérales, d’où semblent provenir le danger, en faisant bâtir des cloisons de séparation de façon à ne rendre accessible au public que la nef et le sanctuaire. En 1971, en raison de l’état de vétusté du clocher, le Maire prend un arrêté de péril décidant la fermeture de l’église et l’interdiction de sonner les cloches.
en savoir plus sur une autre église de Rabastens aidée par la Sauvegarde







