Normandie, Manche (50)
Blainville-sur-Mer, Église Saint-Pierre
Édifice


NB : La notice publiée ci-dessous est une notice provisoire, la notice scientifique étant en cours de rédaction.
Historique
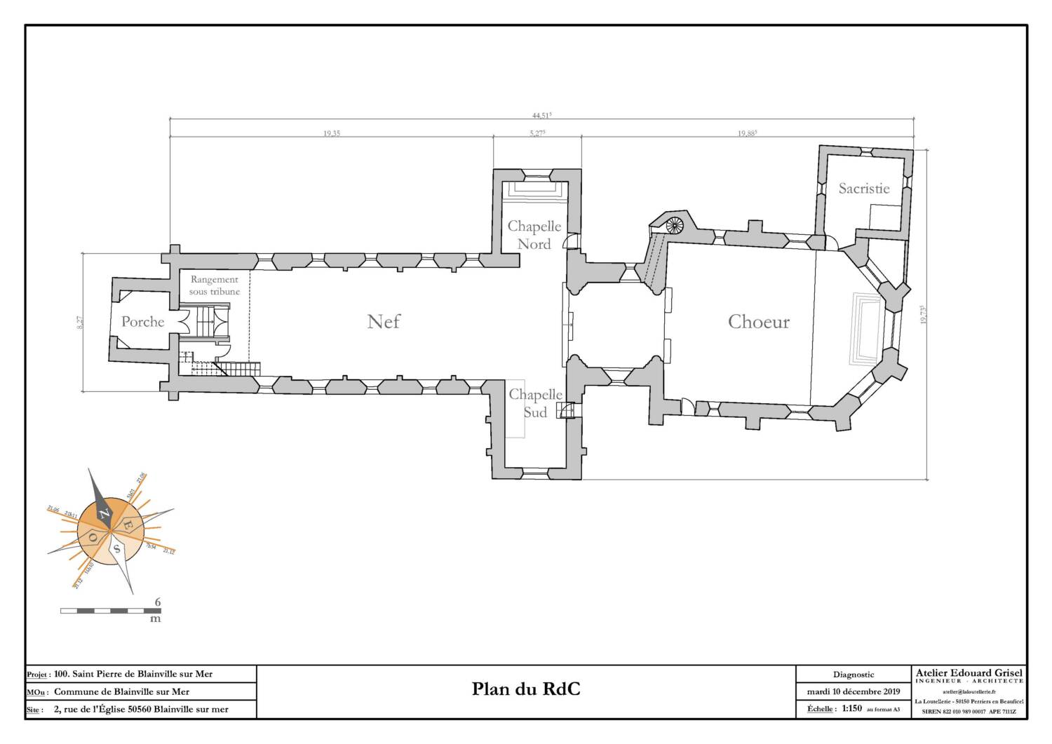
L’église Saint-Pierre est citée depuis le XIe siècle. Au XIIe s., elle n’était formée que du clocher et d’une nef, sur un plan identique à celui d’aujourd’hui. Ce n’est qu’au XVe s., que le choeur prolonge l’édifice à l’Est. La tour-clocher est alors surélevée et devient accessible par la tourelle d’escalier. Les deux chapelles latérales sont construites dans la deuxième moitié du XVIIe s. ou au début du XVIIIe siècle.
En 1789, les révolutionnaires dégradent l’église et ses statues et dépouillent une partie des ornements et objets liturgiques. Des travaux de restauration ont lieu entre mars 1794 et juin 1795. Les objets liturgiques, fonts baptismaux et statures furent en partie restitués par des habitants.
Description
L’église est pourvue d’un très beau petit appareil régulier, sur le flanc Sud de la nef, qui intègre des réemplois de « pastouraux » antiques, ainsi qu’une terre cuite architecturale en réemploi marquant une phase romane précoce (fin Xe s. – 1ère moitié du XIe s.).
D’après l’étude d’Edouard Grisel, architecte patrimoine.









