Bretagne, Ille-et-Vilaine (35)
Le Verger, Eglise Saint-Pierre
Édifice


Historique
On prétend que l’église primitive se trouvait au Pâtis de la Vieille Église et a été détruite vers la fin du XVème siècle par un tremblement de terre. Il existait une chapelle dépendante du château de la Bonnaie appartenant au seigneur Perrouze. Ce dernier accepta que l’ancienne chapelle soit réutilisée pour former la nouvelle église du Verger. Il s’agit aujourd’hui de la chapelle Nord.
L’église Saint Pierre daterait de la fin du XVIème siècle. Elle aurait été construite après 1582, date à laquelle cette ancienne trêve de Talensac devient paroisse.
En 1605 l’église est achevée, les seigneurs de Monterfil et de La Bédoyère (Gilles Huchet) y contestent leurs droits. En 1619 le porche Ouest est accolé à l’église. Cette date est gravée sur le porche. Le seigneur du chateau de Monterfil accomplit un voeu, aider à bâtir la tour du clocher.
Des lettres patentes du roi Louis XIII, datées de janvier 1643, constatent que le seigneur de la Bédoyère (Gilles Huchet (1600-1662), procureur au Parlement du Bretagne) était le seigneur fondateur de l’église du Verger.
Le retable, placé traditionnellement à l’Est, est de facture assez sobre et daterait du XVIIème siècle (Les deux autels latéraux proviennent de l’église de Coulon, tandis que l’ancien maitre autel a été envoyé à l’église de Mordelles.)
La sacristie est construite au XIXème.
Description
L’église Saint-Pierre de Le Verger est un édifice orienté, avec un plan en croix latine. Son plan se compose d’une nef unique avec deux transepts. Un clocher-porche à beffroi carré a été accolé à l’Ouest avec un rétrécissement en partie haute et une sacristie est flanquée contre le chevet droit à l’Est.
L’église est construite en moellons de schistes de colorations plutôt rouge avec des encadrements en grès rouge ou en pierre blanches pour les plus anciennes. L’ensemble de la maçonnerie est montée à la terre et possède aujourd’hui des joints extérieurs en ciment très durs parfois de natures différentes, avec des granulométries plus ou moins prononcées. On constate une certaine régularité dans l’appareillage bien que les façades Nord et Sud présentent une certaine hétérogénéité par endroit, ce qui peut être le signe de remaniements passés.
L’ensemble de la couverture est composée d’ardoises posées au crochet sur liteaux. Les faîtages sont en tuiles à emboitement en terre cuite. La toiture de la tour-clocher est à quatre pans en base du beffroi. Ce dernier est surmonté d’un second élément carré couvert en ardoise qui supporte la flèche. Une couverture à quatre pans en partie marque la jonction avec une coyalure arrondie et une finition dentée. La flèche est elle aussi à quatre pans avec une couverture pyramidal à base carrée dont le débord est également dentelé. Chacun des pans est surmontée d’une petite lucarne en bois.
La nef est couverte d’une voûte en plein cintre, légèrement surbaissée, en bois vernis. La jonction avec le mur est masquée par une corniche elle aussi en bois. Les transepts ont également chacun une voûte en bois de même facture que la nef.
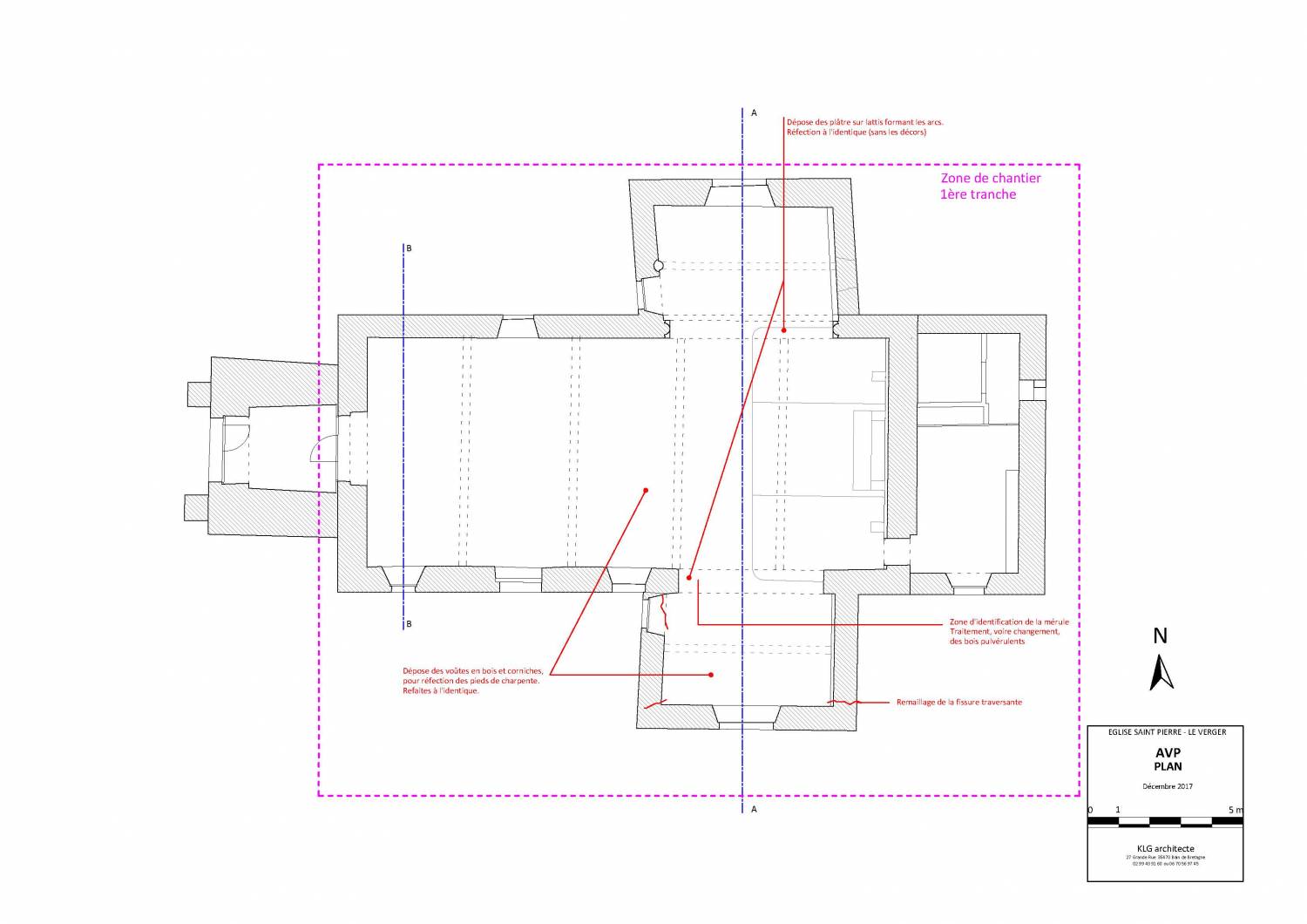
D’après l’étude préalable menée en décembre 2017 par KLG Architecture.
Le projet en images
Projets à proximité

Édifice
Mézières-sur-Couenon, Chapelle du château de la Sécardaye
Mézières-sur-Couenon
Bretagne, Ille-et-Vilaine (35)

Édifice
la Baussaine, église Saint-Léon-le-Grand
la Baussaine
Bretagne, Ille-et-Vilaine (35)

Édifice
La Guerche-de-Bretagne , chapelle du prieuré Saint-Nicolas
La Guerche-de-Bretagne
Bretagne, Ille-et-Vilaine (35)







