Bourgogne-Franche-Comté, Côte-d’Or (21)
Flagey-lès-Auxonne, Église Saint-Laurent
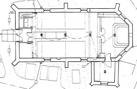
Édifice


Eglise Saint-Laurent. Flagey est situé à une dizaine de kilomètres d’Auxonne. L’église, régulièrement orientée, entourée d’ un cimetière, est édifiée sur une butte, à l’est du village. Elle est citée au XIIe s., lorsque Martel de Mailly donne à l’abbaye bénédictine de Bèze, les dîmes de Flagey (Flageyum) et le « paroissiage » ou lieu d’une paroisse. Ce n’est qu’en 1368 que l’on cite nommément l’édifice. À la fin du XVIIe et au début du XVIIIe s., d’importants travaux sont effectués, conséquence probable des ruines provoquées lors de l’invasion de la Bourgogne par les Impériaux en 1638. Ces travaux sont rappelés par l’inscription gravée sur une table en pierre, encastrée au-dessus de la porte d’entrée :
ANTOINE BOURDO N
MARG . FAIVRE SA F A
ME DENI BROU
ARD MARG DE PIRE
SA FAME LABOU R
NATIF DE FLAGEY
ON FAY BATIRCET
EGLISE MOIENANT
2200 LIV 1701
Des aménagements intérieurs ont lieu à la fin du XVIIIe et dans la seconde moitié du XIXe s., notamment en 1852 et en 1869 : l’église fit alors l’objet d’une restauration globale sous la direction de l’architecte Phal-Blando, d’Auxonne. Son plan, très simple, comprend une nef et un chœur polygonal, flanqué d’une sacristie, côté sud. L’édifice, épaulé par des contreforts, est couvert d’un toit à deux versants, en tuiles plates, bordé par une corniche en briques. Le clocher consiste en un beffroi de charpente recouvert d’ardoises et une flèche polygonale à égout retroussé. La porte, sur le pignon ouest, est prise dans une arcade en plein cintre en pierre appareillée. La nef est précédée d’un petit vestibule avec chapelles latérales pour les fonts baptismaux et le confessionnal. L’ensemble est couvert par une charpente cachée par un faux plafond à panneaux moulurés. Quatre entraits apparents, chanfreinés, ornés en leur centre de culots en bois tourné, sont supportés par des consoles représentant des bustes d’anges portant des phylactères, des palmes… L’édifice est éclairé par des baies en plein cintre, quatre pour la nef, deux pour le chœur, et un oculus au-dessus de l’autel. Le chœur liturgique a été aménagé probablement à la fin du XVIIIe s., avec un emmarchement en pierre et un dallage à bouchons, des lambris de hauteur à panneaux, deux chaires curiales, une table de communion à balustres en bois tourné, formant actuellement l’appui de la tribune au-dessus de l’entrée, et un autel en pierre extraite des carrières proches de Sampans. Pour permettre une nouvelle disposition liturgique, la table de communion, en fonte, de style néo-gothique a été déposée. Parmi les dalles du sol de la nef figurent des pierres tombales de « Jacques Rigonnier, de Flaige », décédé le 6 décembre 1588, d’un certain Thomas, mort en 1555, et d’Anthoine Laignay. Des niches abritent des statues dont, dans la nef, un remarquable Ecce Homo, du début du XVIe s., dans le chœur, la statue de saint Laurent, en bois polychrome du XVIIIe s., portant sur le piédestal l’inscription : N. Bonhour. Ste Laurenti, et une sainte au livre, fin XVIe s. en pierre polychrome et dorée. Une autre statue de saint Laurent, d’un travail voisin de l’école bourguignonne, en pierre, date du XVIe siècle. Pour la réfection des maçonneries extérieures et intérieures et quelques travaux de couverture et de charpente, la Sauvegarde de l’Art français a accordé 100 000 F en 1998.
- S.



