Centre-Val de Loire, Indre-et-Loire (37)
Génillé, Église Sainte-Eulalie
Édifice


NB : La notice publiée ci-dessous est une notice provisoire, la notice scientifique étant en cours de rédaction.
Quoiqu’une implantation romaine et mérovingienne soit assurée en ce lieu, l’église de Genillé n’offre que de rares éléments de l’époque romane dans certaines parties du clocher, en particulier, à sa base côté nord, un parement en petit appareil.
Le vocable de Sainte-Eulalie nous reporte au haut Moyen Âge, époque de la célèbre cantilène, un des plus anciens textes en vieux français, et l’on peut songer à l’influence des deux abbayes carolingiennes voisines de Cormery et de Villeloin.
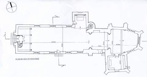
Hormis son clocher, qui est l’élément le plus ancien, l’édifice actuel apparaît comme une construction relativement homogène du début du XVIe s., période la plus florissante des seigneurs de Genillé : à la suite d’Adam Fumée, médecin de Charles VII et Louis XI, son fils Adam II, conseiller au parlement de Paris, maître des requêtes, chargé des sceaux aux grands jours de Poitiers (1531-1533), et son petit-fils Antoine, président du parlement de Bretagne. La façade occidentale est percée, à la base, d’un porche coiffé d’un arc en accolade, encadré de deux niches dont les statues ont disparu. Il est surmonté d’une fenêtre à remplage flamboyant. La nef du XVIe s. est couverte d’une voûte lambrissée. Ses fenêtres ont été agrandies vers 1870 dans le style de la Renaissance classique en plein cintre. La petite porte latérale, avec son linteau sculpté et son fronton en demi-cercle typiques des années 1520-1530, a été heureusement conservée. Une chapelle seigneuriale a été ajoutée au XVIIe s., sur le côté nord de la nef, par les Menou, devenus seigneurs de Genillé, et dédiée à la Vierge du Rosaire.
La travée précédant le chœur est plus étroite que la nef et voûtée d’ogives ; elle correspond à la base du clocher. Elle est aveugle au nord et éclairée au sud par une fenêtre en plein cintre.
Le chœur gothique tardif se compose d’une travée droite, sur laquelle s’appuie au sud la chapelle seigneuriale des Fumée devenue sacristie, et d’un chevet polygonal à trois pans éclairé par trois larges et hautes baies au remplage flamboyant. Le chevet voûté d’ogives est maintenu par de robustes contreforts autrefois ornés de niches Renaissance et de statues. Une riche corniche a été épargnée en haut du chevet ; ses modillons qui portent une suite de coquilles sont illustrés des instruments de la Passion.
La chapelle seigneuriale des Fumée a perdu son fenestrage lors de sa transformation en sacristie vers 1840, mais a gardé sa petite porte d’accès Renaissance à fronton triangulaire, enrichi de rinceaux et putti. Le buste qui en ornait le centre a été mutilé. Le linteau porte l’inscription latine dilexi decorem domus tuae.
Parmi les objets mobiliers, on notera un très beau bénitier de marbre blanc portant la date de 1494 et un blason non identifié. C’est sans doute une œuvre importée de Gênes, comme plusieurs vasques de la même époque, dispersées dans cette région de la Loire. Parmi les œuvres plus tardives, le retable du Rosaire des années 1660, présentant la Vierge et l’Enfant entre saint Dominique et sainte Catherine de Sienne, une peinture de la Sainte Trinité (le Père couronnant le Fils sous la colombe de l’Esprit Saint), deux statues de pierre de sainte Eulalie martyre et de saint Jean-Baptiste, quelques meubles, chaire et trône abbatial provenant de l’abbaye de la Bourdillière.
La Sauvegarde de l’Art français a donné en 2006 une aide de 10 000 € pour des travaux de maçonnerie, charpente et couverture.
Philippe Chapu



