Occitanie, Gers (32)
Gondrin, Église Saint-Martin
Édifice


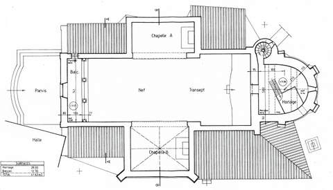
Le gros village de Gondrin se situe au sud de Montréal et à l’est d’Eauze, près de la vallée de l’Auzoue, à proximité du chemin de Saint-Jacques de Compostelle qui allait de Condom à Eauze, et non loin du château de Lamothe, fief des Pardailhan-Lamothe-Gondrin. Il semble que l’église primitive du XIIe s. se composait d’une nef unique et d’une abside hémi circulaire, seul témoin subsistant de cette première église. Au XIVe s., l’église a été agrandie de quatre chapelles voûtées. En 1731, le clocher et la charpente de l’église ont brûlé: la réfection des parties hautes, sans réfection des voûtes cependant, se serait achevée en 1777. C’est également à cette époque, où s’affirmaient l’expansion démographique du village et le besoin de nouveaux espaces, que l’église, agrandie d’une travée vers l’ouest, fut ornée d’une belle façade classique et d’une tribune intérieure. Au XIXe s., la flèche du clocher, qui avait été détruite par une tempête, ne fut pas reconstruite ; le clocher fut alors coiffé d’une toiture plate et couronné par une balustrade. On peut supposer que la terrasse a abrité quelque temps un télégraphe Chappe. Enfin, en 1890, on plaqua une halle et une école contre l’angle sud-ouest de la façade, ce qui insère malencontreusement l’édifice dans le tissu de cette petite ville. Le plan de l’édifice se compose d’une nef unique sur laquelle ouvrent deux chapelles, une au nord et une au sud, et d’une abside arrondie. L’élévation du chevet, qui supporte le clocher, est d’une hauteur inhabituelle. Une tourelle circulaire abritant un escalier le flanque du côté sud. Dans l’axe du chevet s’ouvre une étroite fenêtre romane. Des contreforts plats sans doute tardifs scandent les murs. Au sud-est, un appentis occupe la place d’une des chapelles du XVIIIe s., aujourd’hui disparue, au nord une arche relie l’église à une maison voisine. L’axe de la façade occidentale est marqué par le portail en plein cintre, un œil-de bœuf et une ouverture circulaire de moindre diamètre, ouverte dans le couronnement triangulaire du mur pignon ; celui-ci est flanqué de deux ailerons qui s’amortissent au premier niveau des bâtiments qui bordent l’édifice au nord et au sud. À l’intérieur, la nef et le faux transept sont couverts d’un lattis hourdé au plâtre. L’église possède un mobilier intéressant des XVIIIe et XIXe s., notamment une peinture de la Crucifixion (XVIIIe s.), une Remise du Rosaire et un saint Michel (XIXe s.), deux autels en marbre achetés en 1846 et deux confessionnaux. La Sauvegarde de l’Art français a accordé une somme de 80 000 F en 1999 pour la restauration complète de l’église, couverture, réparation de la charpente, reprises de maçonnerie et réfection en conservation des enduits et du décor peint de l’intérieur de l’église. L’édifice était fermé depuis plusieurs années en raison de son état de péril.
Fr. B



