Nouvelle-Aquitaine, Pyrénées-Atlantiques (64)
Guéthary, Église Saint-Nicolas
Édifice


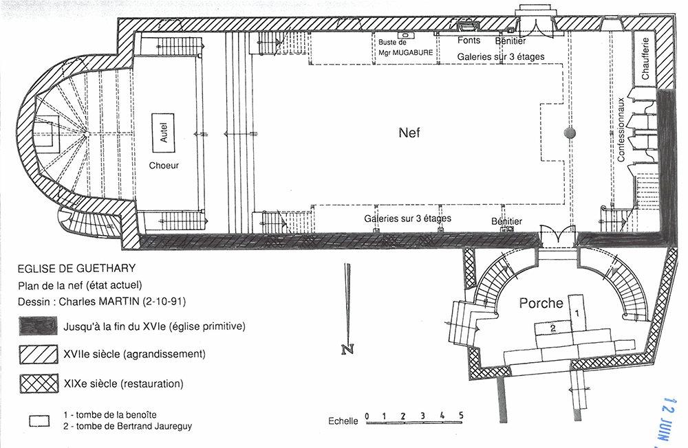
L’église Saint-Nicolas présente une architecture caractéristique des églises labourdines du pays basque.
Sa nef unique prolongée par une abside semi-circulaire. Trois galeries superposées courent sur les trois murs de la nef. Un mur-clocher et un porche terminent cet édifice.
Cet édifice massif à nef unique, sans transept ni chapelles latérales, est prolongé à l’Est par un chevet demi-circulaire. Un porche s’appuie à l’angle Nord-Ouest. Un clocher-mur coiffe la façade Ouest. L’église est agrandie au 17ème siècle et la nef est entourée de tribunes. Une reconstruction approximative serait survenue entre 1636 et 1650. De cette période datent les retables latéraux qui encadraient le choeur. Une benoîterie, aujourd’hui disparue, était accolée à l’église. Le porche, qui s’écroula en 1818, fut surhaussé après 1830 en vue de l’aménagement d’une salle de classe, puis réaménagé en 1859 avec création des escaliers en fer à cheval et reprise de la porte de la nef. Entre 1860 et 1870, les tribunes furent légèrement raccourcies. Le retable central fut vendu en 1870. Une statue de Saint-Nicolas, provenant de ce retable, fut placée dans une niche couronnant le porche. Installation des orgues en 1959. Le décor de l’église a été épuré en 1970.



