Normandie, Calvados (14)
La Roque-Baignard, Église Saint-Martin
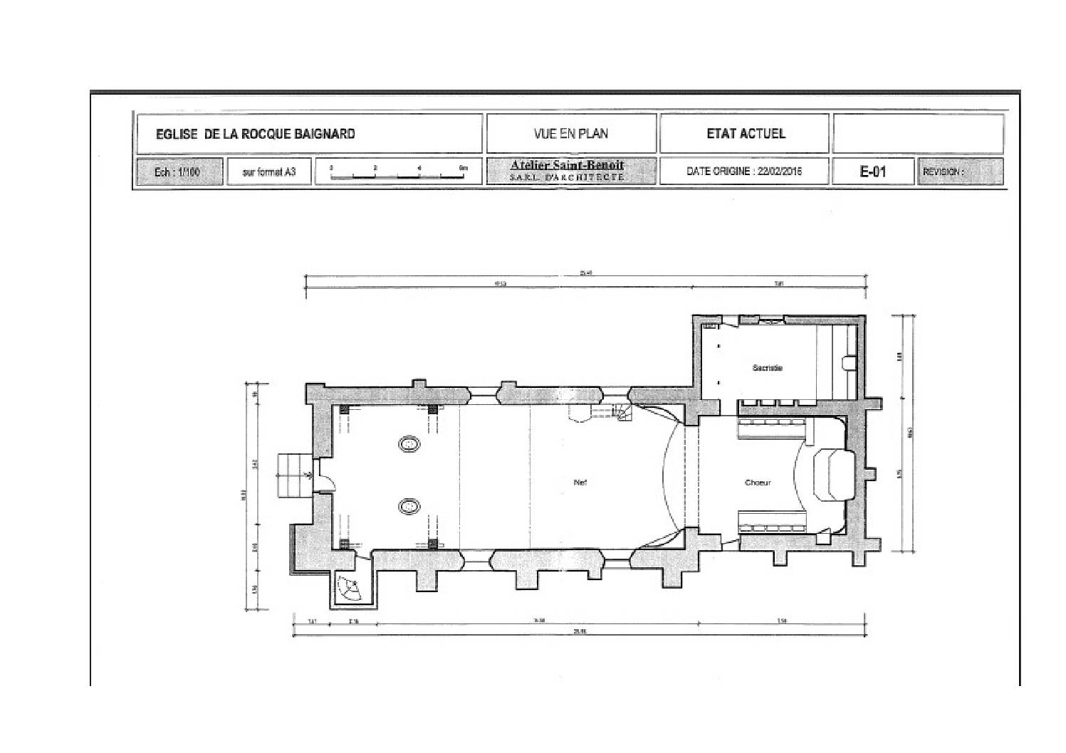
Édifice


Nef simple surmontée à l’Ouest d’un clocher charpenté de base carrée, sur tabouret, et d’une flèche polygonale. A l’est se trouve le chœur, d’une travée, à chevet plat. Il est plus étroit et le couvrement en est légèrement surbaissée par rapport à celle de la nef. Une sacristie adossée au mur nord du chœur. Une charpente lambrissée couvre la nef. L’église construite en murs de moellons et de silex enduits à pierres vues, avec des couvertures en ardoises posées au clou. Eglise dont subsistent quelques rares éléments remontants à l’époque romane (appareil des murs). La construction de l’église actuelle à partir d’éléments plus anciens remonte aux XIV-XVe siècles. Au XVIIIe sont réalisés les décors intérieurs et mobilier.
Le seigneur de la Roque-Baignard est Jeahn Labbey depuis son mariage en 1510 avec Catherine Baignard. Sa famille possède le site jusqu’à la Révolution.
Pierre-Marie-Elie de la Roque, chevalier de Saint-Louismembre de la chambre des députés en 1815, rachète alors la terre de la Roque. Elle est revendue au cours du XIXe siècle à la famille d’André Gide. André Gide en est le maire en 1896.










