Provence-Alpes-Côte d’Azur, Vaucluse (84)
Ménerbes, Église Saint-Luc
Édifice


L’actuelle commune de Ménerbes compte quatre édifices religieux : la chapelle Saint-Blaise ou « des pénitents », datant du XVIIIe siècle ; la chapelle Notre-Dame-des-Grâces ou des-Accès, sanctuaire roman remanié après la peste de 1629 ; les vestiges de l’antique abbaye de Saint-Hilaire, transformés en bâtiments ruraux ; enfin, l’église paroissiale. Celle-ci est mentionnée dès 1288. C’était un prieuré connu sous le vocable de Saint-Sauveur qui, à partir de 1339, dépendit de l’abbaye bénédictine de Saint-Gilles. Comportant quelques substructures paléo-chrétiennes, ce sanctuaire fut ruiné au cours des XIVe et XVe s., lors des exactions commises par les routiers et les luttes meurtrières entre seigneurs locaux. En 1510, à la suite d’une visite pastorale, il fut ordonné de bâtir une nouvelle église contiguë aux vestiges de l’ancienne : cette construction est confirmée par un document de 1538, relatant le rattachement du prieuré de Ménerbes au chapitre de Saint-Agricol d’Avignon, après la sécularisation de l’abbaye de Saint-Gilles. Un acte notarié de 1551, à l’occasion d’un procès intenté par l’abbé commendataire, évoque également cette « église neuve », alors dédiée aux saints martyrs Étienne et Alban. Toutefois, cette bâtisse élevée durant la première moitié du XVIe s., fut à nouveau dévastée lors de l’occupation du village, de 1573 à 1578, par les troupes huguenotes commandées par Scipion de Valavoire. Prise à la suite de la trahison d’un prêtre, Ménerbes s’illustra pendant les guerres de Religion comme un haut lieu du protestantisme. Lors du siège de cette citadelle pendant quinze mois par les troupes catholiques, des dégâts importants furent perpétrés ; les assauts répétés de l’artillerie et des 6 000 soldats « papistes » provoquèrent des incendies redoutables. Les eaux peu abondantes des citernes ne permirent guère de les combattre efficacement. Les historiens du siège de 1579 dépeignent ainsi « les maisons toutes par terre avec si grande pauvreté que ne se peuvent exprimer … et que l’église était pleine de fumier, les murailles crottées, les vitres brisées, les autels démolis … ». À la vue de ces graves dégradations, l’évêque de Cavaillon prescrivit, en 1597, que « le pavement de l’église soit restauré totalement, qu’un pinacle soit édifié avec une sacristie, sous le cimetière, à la place de la vieille église ». Trois ans auparavant, le clocher avait déjà été relevé, comme l’atteste la date de 1594 toujours visible ; ces travaux furent achevés peu après. Des aménagements complémentaires au cours du XVIIe s. concernèrent surtout l’intérieur de l’édifice, notamment le riche décor des chapelles. L’église fut dorénavant placée sous le patronage de saint Luc. Au XIXe s., elle fut dédiée à l’Assomption.
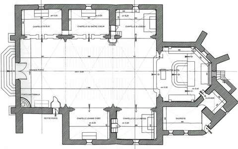
Massive et située en hauteur, l’église paroissiale de Ménerbes domine la ville, découvrant le Luberon et, à l’horizon, les monts de Vaucluse. Son plan comprend un vaisseau de trois travées à voûtes d’arêtes, prolongé par une travée de chœur et une abside à pans coupés. La nef est flanquée de trois chapelles latérales au nord et de deux au sud. Cet édifice conserve un ensemble mobilier d’une grande qualité : le maître-autel en marbre polychrome et la table de communion en fer forgé du XVIIe s. sont classés parmi les monuments historiques ; plusieurs retables et tableaux provenant de l’atelier de Guillaume-Ernest Grève (peintre hanovrien du XVIIe s., établi en Avignon), une statue de saint Luc en bois doré et argenté, deux reliquaires de même facture et une série de vingt-trois santons des XIXe et XXe s. ont été proposés au classement lors de la commission départementale des objets mobiliers en décembre 2007.
Pour la couverture en dalles de pierre et la consolidation de la voûte, la Sauvegarde de l’Art français a accordé en 2006 une aide de 5 000 €.
Jean-François Delmas

