Nouvelle-Aquitaine, Lot-et-Garonne (47)
Moncaut, Eglise Saint-Etienne-de-Fontarède
Édifice


D’après l’étude préalable réalisée par Pierre Cadot, Architecte du patrimoine.
Description
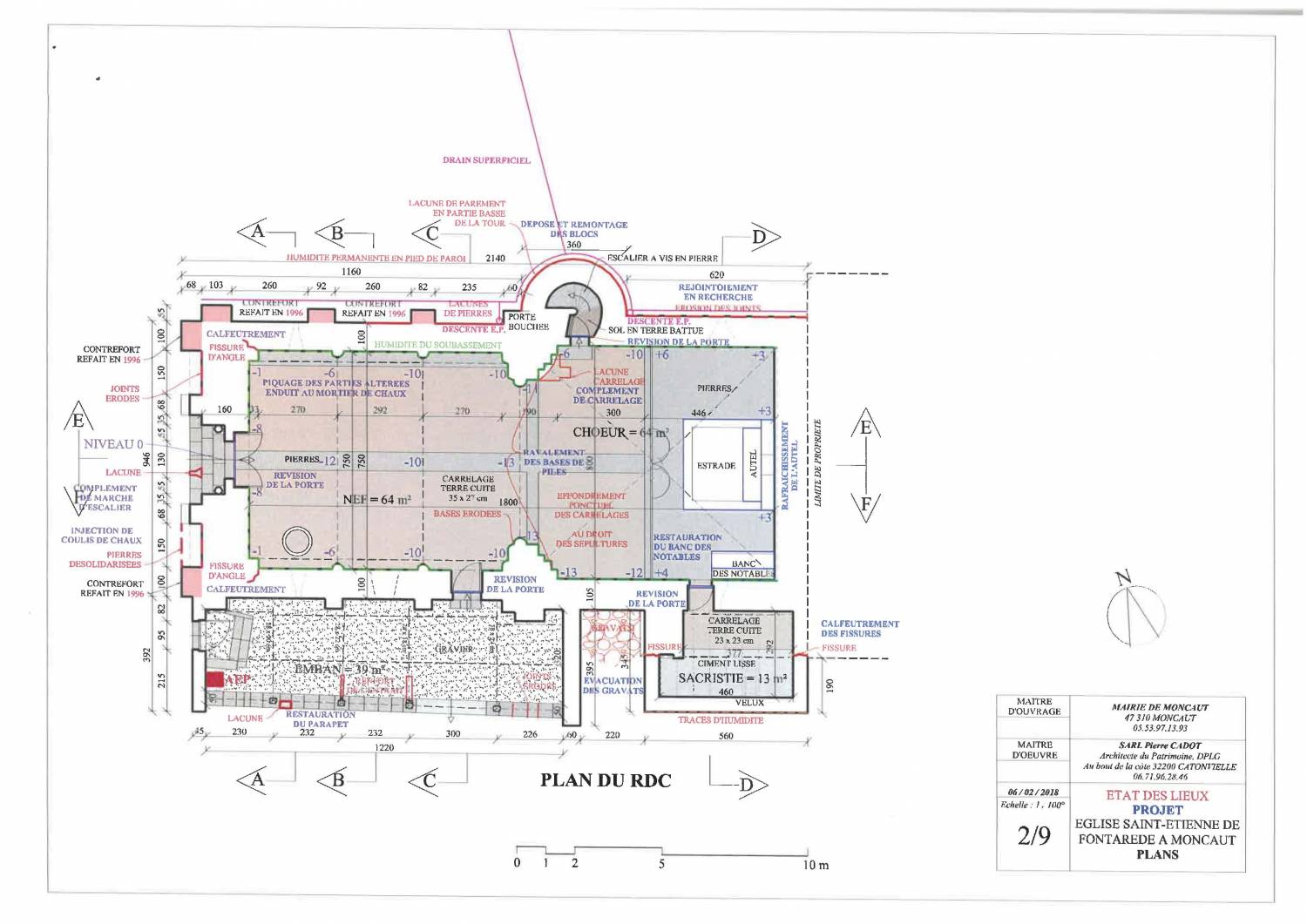
L’édifice se compose d’une nef unique de trois travées et d’une quatrième travée formant le chœur, séparé de la nef par un arc triomphal.
La voûte de la nef est en berceau, celle du chœur à croisées d’ogives achevée en 1877.
Cette église sans transept s’achève par un chevet plat. Elle est éclairée par d’étroites ouvertures formant meurtrières avec deux fenêtre rectangulaires plus récentes.
L’élévation nord reçoit une tour demi-circulaire accolée servant de clocher et surélevée au XVIe siècle.
L’élévation sud accueille la sacristie et un emban donnant sur le cimetière.
On accède à l’église par le portail d’entrée occidental d’une facture romane remarquable, surmonté d’un bas relief représentant un Christ en majesté dans une mandorle.
A droite de ce portail, une petite porte ouvre sur un préau adossé au mur sud de l’église. Sur le sol en gravier, un sarcophage a été déposé.
Sous l’emban, une seconde entrée percée au début du XVIe donne accès à la nef.
Une sacristie moderne jouxte le chœur au sud, peu ou prou dans l’alignement de l’emban.
Accolée au chevet de l’église, côté nord, se trouve une maison qui contient encore un contrefort d’angle au sud est.
historique
Moncaut vient du mot « Mons Calvus » signifiant le Mont Chauve. Facilement repérable grâce à son ancien moulin à vent, son histoire remonte au XIe siècle, à la création du comté bruilhois. Le village de Moncaut est mentionné dès 1064 dans un recueil de Cluny. L’agglomération s’est développée au XIIIe siècle autour de l’église paroissiale et du château détruit en 1853.
A partir de la seconde moitié du XVIIIe siècle, plusieurs faïenceries sont installées à proximité du village, favorisant vraisemblablement l’extension de celui-ci le long de la route. Cette activité a perduré jusqu’au début du XIXe siècle. La majeure partie du village a été reconstruite au XIXe s.
Moncaut possède un patrimoine rural intéressant : la croix des compagnons, trois lavoirs, un pont roman et deux églises édifiées au XIIe siècle : l’église paroissiale Saint-Pardoux (chapelles latérales du XVe, clocher du XVIe, sacristie du XIXe) et l’église Saint-Etienne de Fontarède.
Fontarède tient son nom du patois « Foun frédo » (Fontaine froide), un source très froide coulant au sud du village.
L’église Saint-Etienne est située à 3 km au sud-ouest du village, à l’écart des axes de circulation. Elle aurait été construite à l’emplacement d’un temple romain, lui-même implanté près d’une source.
Des mosaïques et un sarcophage mérovingien ont été mis à jour.
Elle porte l’empreinte de la grande école clunisienne. Le fondateur serait Hunaud de Gavarret dont la famille a possédé le vicomté du Bruhlois au XIe siècle. Hunaud devient abbé de Moissac en 1072. Il fit donation à l’ordre de Cluny de sa fortune et se retira dans le prieuré de Layrac. Il fit édifier Saint-Pierre de Cazaux à Laplume et Saint-Etienne de Fontarède à Moncaut.
En 1658, la paroisse de Fontarède est unie à Moncaut et en devient annexe. Elle ne recouvre son titre de cure qu’une quarantaine d’années pendant la Révolution avant de redevenir annexe sous le Concordat.
L’église a été remaniée au XIVe et au XVIe siècle.













