Occitanie, Gers (32)
Monfort, Chapelle Saint-Blaise
Édifice


Chapelle Saint-Blaise de Monfort. Ce modeste édifice s’élève dans la partie est du département, en Gascogne toulousaine , dans un site pittoresque sur une colline. Des témoins d’une nécropole des Xe et XIe s. ont été reconnu s à cet emplacement : il existait une chapelle Saint-Blaise au XIIe s. qui servait d’église à la paroisse Saint-Pierre-du-Boscquet, village aujourd’hui disparu, situé à un kilomètre environ à l’est de Monfort. La création d’une bastide à Monfort au XIIIe s. attira les habitants de Saint Pierre, et au XVe s. les deux paroisses fusionnèrent. Cependant la chapelle Saint-Blaise demeura affectée au culte et jusqu’à la Révolution, certaines familles de Saint-Pierre continuèrent à se faire inhumer dans le cimetière entourant cette chapelle qui était la vieille église. La chapelle fut restaurée à partir de 1849 par l’abbé Troyes ; lors de ces travaux, la surface de la nef fut amputée d’un tiers. Une nouvelle cloche, œuvre de Louison, fondeur à Toulouse, fut placée en 1852.
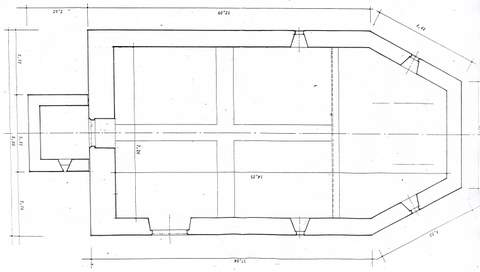
Le plan de l’édifice est extrêmement simple : la nef, de plan rectangulaire (12,00 m sur 7,26 m), est prolongée par une abside à trois pans et surmontée d’un clocher-mur à l’ ouest . Au sud s’ouvre une belle porte en arc brisé avec encadrement en pierres de taille. L’ensemble peut dater du XVe siècle. L’édifice possède un retable inscrit à l’inventaire supplémentaire.
En raison de l’instabilité sans doute ancienne du sol, les angles nord et sud du clocher devaient être confortés et la corniche du mur pignon reprise. La plupart des désordres provenaient de la charpente mal conçue, dont les poussées avaient notamment déstabilisé les maçonneries du chevet, qui pré sentaient de nombreuses fissures. Elles furent rebouchées au mortier de chaux après restauration de la charpente. Enfin un drainage périphérique devait être mis en place. L’église devrait faire prochainement l’objet d’une meilleure présentation : la nef sera de nouveau plafonnée et le retable restauré. En 1996, la Sauvegarde de l’Art Français a accordé une subvention de 40 000 F pour les travaux de confortation de la maçonnerie et la reprise de la charpente.
Fr. B.


