Occitanie, Pyrénées-Orientales (66)
Montesquieu-des-Albères, Église Saint-Saturnin
Édifice


NB : La notice publiée ci-dessous est une notice provisoire, la notice scientifique étant en cours de rédaction.
Description
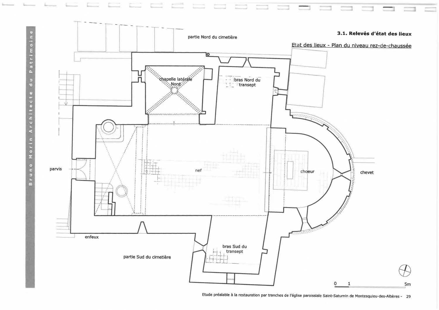
L’église Saint-Saturnin, de type roman, est composée d’une nef de 3 travées et d’un chœur à abside semi-circulaire et voûte en cul de four, orné à l’extérieur de lésènes.
Deux chapelles forment un faux transept et une troisième chapelle bâtie le long de la seconde travée nord de la nef, est décorée dans le style gotique avec voûtes d’ogives. Le couvrement de la nef et des chapelles latérales étant, lui, en voûte en pierre de profil brisé. La première travée de la nef est surmontée d’une massive tour-clocher. Les murs sont en moellons enduits et les couvertures en tuiles creuses.
histoire
Les premières mentions de Montesquieu-des-Albères remontent au VIIIe siècle, sous le terme Villa nova. Au XIe siècle, cet endroit prend le nom de Montesquivo, en rapport avec l’éminence rocheuse sur laquelle il est bâti. La famille Sant Cristo y construit un château vers 1080.
L’église paroissiale Saint-Saturnin a été édifiée au XIIe siècle, en périphérie du village actuel. Elle est consacrée le 10 juin 1123 par l’évêque d’Elne Pere Bernat en présence de Guillem Bernat de Sant Cristo, seigneur du lieu-dit.
La chapelle de la première travée nord a été bâtie au XVIIe siècle par la famille Freixe, anoblie par Louis XIII pour services rendus. Leurs armes, dotées d’un frêne arraché orne les culs de lampes des départs de nervures de la chapelle.
En 1790, le clocher est dépouillé de trois de ses cloches qui sont fondues. Une quatrième, cachée par un paysan et datée de 1598 est à nouveau en service dans la baie campanaire nord-ouest du clocher.
En 1999 une nouvelle cloche est installée dans la baie Sud-ouest.
Les archives portent la trace de l’existence d’un bâtiment accolé à la partie nord ouest de l’église, avec laquelle la chapelle Freixe semblait communiquer. Cet édifice était un presbytère, abandonné et détruit en 1842 et dont les matériaux ont servi à l’édification d’une sacristie le long du mur sud du chevet, dans lequel a été ouvert une porte. Cette sacristie a elle-même été détruite par la suite en 1990.







