Normandie, Orne (61)
Montgaroult, Église Saint-Marc de Vaux
Édifice


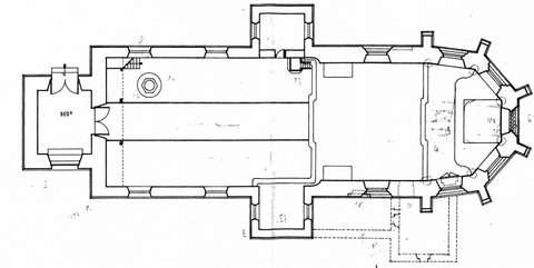
L’église de Vaux-le-Bardoult, ancienne commune rattachée en 1839 à celle de Montgaroult, était dédiée à l’origine à Notre-Dame ; elle est, de nos jours, placée sous le vocable de saint Marc, longtemps le second patron de la paroisse. L’édifice entouré de son cimetière se remarque par son volume relativement important au regard du hameau qu’est devenu le village de Vauxle-Bardoult. L’église dépendait du diocèse de Sées et était à la présentation du seigneur du lieu. Après la suppression de la commune de Vaux-le-Bardoult en 1839, l’église devint une succursale de la paroisse de Montgaroult. L’attachement de ses anciens paroissiens pour elle eut raison d’ un projet de vente conçu en 1841 par le conseil municipal de Montgaroult à son encontre. De plan fort simple, elle comprend une nef à vaisseau unique, flanquée de deux chapelles latérales dessinant un faux transept et se termine par lin chœur composé d’une travée droite, de même largeur que la nef, et d’une abside à cinq pans. L’accès à la nef se fait par le côté d’un porche construit à l’ouest, qui est en réalité un clocher inachevé. L’édifice, modeste, est de moellons enduits au mortier de chaux. Son volume actuel peut être daté de la fin du XIVe s. pour le chœur, tandis que les autres parties ont été entièrement reconstruites à la fin du XVIIIe siècle. Le porche percé en partie inférieure de deux accès à l’origine – l’un d’entre eux a été transformé en baie – avait été conçu pour être un clocher ; cependant ce dernier projet n’a pas été réalisé : la partie supérieure n’a pas été achevée et elle présente donc désormais un toit à double pente recouvert de tuiles plates. La nef est percée sur chacune de ses faces de deux baies à l’arc segmentaire. Toute cette partie de l’église, y compris les chapelles latérales, date de la campagne de travaux conduite sous l’impulsion du curé de la paroisse de l’époque, Jean-François Erambert (1728-1808); celui-ci entreprit, sur ses deniers propres et grâce à un don par testament d’Anne-Marie-François-Elisabeth Rouxel de Médavy, dame de Vaux et veuve de Gabriel-Louis-Etienne Texier, marquis de Hautefeuille, la reconstruction d’une partie de l’édifice. Les travaux durèrent dix ans : l’ancienne nef ainsi que le clocher qui la surmontait furent démolies, le chœur étant conservé. La nouvelle construction fut bénie avant le mois d’octobre 1778. Le chœur, en revanche, éclairé de six grandes baies au profil brisé -la fenêtre d’axe a été pour sa part murée pour abriter le tableau du maître-autel – est plus ancien et remonte au XIVe siècle. C’est à l’occasion des travaux des années 1770 que les fenêtres ont perdu leur remplage de pierre, à l’exception de celle d’axe qui conserve un réseau tout à fait élégant. Rythmant le volume intérieur du chœur, six petites niches avec culots à décor végétal ont été aménagées entre les grandes baies. Des statues y prenaient place. Seules dm'<: d’entre elles sont parvenues jusqu’à nous, celle de saint Marc et celle de saint Jean-Baptiste qui encadrent l’autel. Le chœur conserve en outre sur sa face sud les traces d’une ancienne porte cintrée, encadrée de colonnes, vestiges d’une porte seigneuriale, vraisemblablement contemporaine de la structure primitive de l’église. La même simplicité procède à l’aménagement intérieur de l’église, conçu comme un vaste vaisseau rectangulaire très dépouillé dont le sol est, pour la nef, couvert de tomettes dans l’allée centrale et de terre battue sur les côtés ; seul le chœur, légèrement surélevé, est pavé de grandes dalles de calcaire. L’ensemble du vaisseau est couvert d’un plafond de lattes de chêne qui date de la campagne de la fin du XVIIIe s., la visite épiscopale de 1703 précisant bien que l’église n’était pas, à cette date, voûtée. Le mobilier – chaire, confessionnal, lutrin, porte-cierge, bahuts de bois de part et d’autre du chœur servant vraisemblablement de meubles de sacristie – présente un caractère rural d’une grande modestie et constitue de ce fait un témoignage intéressant. Pour le confortement des maçonneries et de la charpente ainsi que pour la réfection de la couverture, la Sauvegarde de l’Art français a accordé une subvention de 55 000 F en 1999.
É. G.-C.


