Pays de la Loire, Loire-Atlantique (44)
Nozay, Église Saint-Saturnin
Édifice


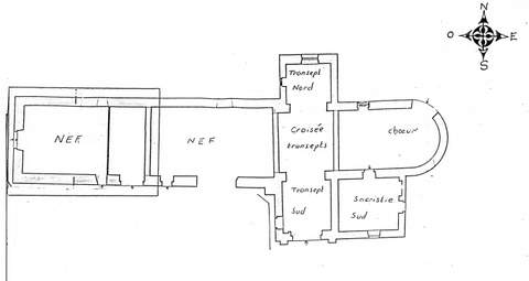
L’église Saint-Saturnin de Nozay est une ancienne église prieurale dépendant autrefois de l’abbaye bénédictine de Saint-Florent-le-Vieil dont les ruines subsistent dans la vallée de la Loire. Son origine pourrait être très ancienne puisque l’on a trouvé trace de sépultures mérovingiennes dans le sol environnant. L’édifice actuel date, pour l’essentiel, du XIIe s. Il est bâti sur un plan très simple, en croix latine avec une abside hémicirculaire. Le transept a été remanié à l’époque du gothique flamboyant, et son bras nord conserve encore aujourd’hui de très belles peintures murales du XVIe s., représentant les martyres de saint Étienne et de saint Blaise. Il reste également des traces – notamment des blasons – d’une litre peinte au siècle suivant. L’église a abrité les tombes des princes de Rieux, des Montmorency et de Louis de Bourbon, prince de Condé, qui furent successivement les seigneurs de Nozay.
En 1862, la commune décidait la construction d’une nouvelle église au centre du bourg. La dernière messe fut célébrée à Saint-Saturnin en 1870. Quelques années plus tard, le clocher fut détruit, et le reste de l’édifice fut divisé et vendu pour servir de bâtiments agricoles. En 1979, l’un des propriétaires envisageant de détruire la partie est – contenant les fresques – une association de sauvegarde, l’A.S.P.H.A.N., s’est créée et a réussi à racheter peu à peu l’église, qui a été inscrite à l’inventaire supplémentaire des Monuments historiques en 1983. La charpente et la couverture étaient entièrement à refaire ; la Sauvegarde de l’Art français a versé à l’A.S.P.H.A.N. une subvention de 50 000 F pour ces travaux, en 1986.
G. M. L.

