Bourgogne-Franche-Comté, Jura (39)
Rahon, Église de l’Assomption
Édifice


La commune est située à 15 km de Dole, à proximité immédiate du confluent de la Loue et du Doubs, sur un promontoire boisé où l’on distinguait encore, au début du XXe s., les restes d’une forteresse ancienne. Terre disputée entre la Bourgogne et la France, « la Comté » fut terre d’Empire pendant la plus grande partie du Moyen Âge et ne devint française qu’au traité de Nimègue (1678). Rahon est mentionnée dans une charte de Frédéric Barberousse en 1165, puis dans une bulle du pape Lucius III, en 1184, comme possession de l’abbaye de Château-Chalon. Les troupes de Louis XI ravagèrent le village et l’église en 1479 ; celle-ci fut restaurée, ou reconstruite, grâce aux libéralités des sires de Longwy qui en étaient alors seigneurs. Leur blason, d’azur à la bande d’or, orne les clefs de voûte du chœur et une porte latérale, au nord. La seigneurie de Rahon passa ensuite à la famille de Rye qui comptait au XVIe s. un évêque de Genève, membre des États de Bourgogne, et un grand échanson de Charles-Quint. Sans doute est-ce ce grand personnage qui confia la garde du château à Guillaume de Visemal, seigneur de Bretenière, dont le tombeau constitue l’élément le plus remarquable de l’édifice.
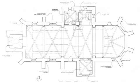
Cette église, consacrée à Notre-Dame de l’Assomption, est construite en briques roses, avec encadrements en pierre blanche. Bien que l’ensemble soit assez homogène, il apparaît cependant que des éléments de la précédente construction, notamment les travées orientales de la nef, pourraient dater du XVe s., tandis que le clocher a remplacé, au début du XIXe s., un clocher plus ancien.
L’église comporte une nef de trois travées, une travée droite de chœur et une abside à trois pans. Sur la travée orientale de la nef s’ouvrent deux chapelles : au nord, la chapelle de la Vierge, au-dessus de laquelle s’élevait jusqu’à la fin du XVIIIe s. le clocher, et, au sud, la chapelle seigneuriale de Visemal.
Extérieurement, il y a peu de remarques à faire sur l’architecture de l’édifice, très sobre : une corniche sculptée court autour de l’abside à pans d’une élégante élévation, un œil-de-bœuf a été placé dans l’axe du chevet après la mise en place du retable du maître-autel. Du côté nord, une porte condamnée porte le blason des sires de Longwy.
L’église est dominée à l’ouest par le clocher, construit en hors-œuvre par rapport à l’église : un dôme, couvert de tuiles vernissées, lui confère une allure franc-comtoise. Il date du début du XIXe siècle. Sous le porche, au-dessus de la porte d’accès à l’église, surmontée d’un arc en accolade, s’ouvre une niche qui abrite une « Vierge expectative », c’est-à-dire en attente de l’Enfant ; elle date de 1603.
L’intérieur de l’église est voûté, les arcs sont légèrement surbaissés ; dans les deux travées occidentales, les arcs des croisées reposent sur des culots ; dans la première travée orientale, ils retombent sur des colonnes rondes dont les chapiteaux sculptés sont tardifs et relativement frustes.
La chapelle méridionale, dite chapelle de Visemal, est une chapelle funéraire d’un intérêt exceptionnel pour l’histoire de l’art franc-comtois du XVIe siècle. Large de cinq mètres, longue de six, elle contient les tombes et le mausolée en marbre blanc de Guillaume de Visemal, mort en juin 1548, et de Marie de Chaussin, sa femme, morte en décembre 1535. Sur un fond de marbre rouge de Sampans se détachent les deux figures de profil, traitées en bas relief. Elles s’inscrivent sur le champ d’un retable que divisent trois colonnes engagées et qu’encadrent dans la partie haute un entablement, et dans la partie basse une base fortement moulurée. L’ensemble repose sur un socle, peu saillant, dans la partie basse duquel ont été placés les deux tombeaux. Guillaume de Visemal est agenouillé, les mains jointes devant un pupitre sur lequel est posé un livre de prières. Marie de Chaussin est figurée dans la même position. Le monument est attribué à Claude Lulier. Les armoiries des Visemal sont associées à celles des deux premières (il en eut trois) épouses de Guillaume, Catherine de Vaudrey et Marie de Chaussin. De part et d’autre de la fenêtre ont été placées sur des consoles la statue de saint Guillaume et celle de sainte Barbe. La chapelle contient également une statue de saint Michel écrasant le dragon. Quatre peintures sur bois, réduites vers 1730, représentent les évangélistes : saint Jean avec saint Léon, saint Luc avec saint Augustin, et enfin saint Mathieu et saint Marc. Quatre autres panneaux appartiennent à un triptyque sur lesquels figurent saint Michel, la Vierge en robe rouge, Guillaume de Visemal en armure, avec saint Guillaume et avec son fils, Henri de Visemal, qui mourut très jeune. En parallèle étaient représentés les échevins et notables de Rahon. Enfin sur un quatrième panneau est peinte l’Assomption de la Vierge. Ces peintures sont attribuées au peintre Jacques Prévost (vers 1540-1548), qui est l’auteur de plusieurs retables à Dole, Gray, Pesmes. L’église possède, en outre, un Christ ressuscité surmontant le Tombeau (marbre du XVIe s.), deux statues du XVe siècle : une Vierge à l’Enfant et saint Claude, et plusieurs œuvres du XVIe s. dont une Éducation de la Vierge, un saint Éloi, un saint Nicolas. Toutes ces œuvres sont classées.
Pour des reprises de couverture et de charpente dans la chapelle sud et des enduits intérieurs, la Sauvegarde de l’Art français a accordé, en 2006, 10 000 €.
N.B.
Les éléments du dossier ont été transmis par Vincent Laloy dont la famille est attachée de longue date à l’histoire de Rahon ; Claude Debussy composa la première de la seconde série des Images, Cloches à travers les feuilles, en 1907, après une conversation avec son ami Louis Laloy sur l’usage du glas à Rahon.
Françoise Bercé


