Occitanie, Ariège (09)
Rimont, Église de l’Abbaye Saint-Laurent de Combelongue
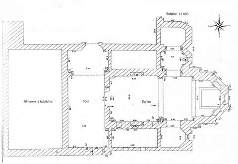
Édifice


L’abbaye Saint-Laurent de Combelongue est une des rares abbayes de l’ordre des Prémontrés du Midi de la France. Elle a joué un rôle important dans l’histoire de la région au cours des XIIe, XIIIe et XIVe s., mais a subi de graves dommages au XVIe s. de la part des protestants, ce qui a sans doute entraîné les travaux importants entrepris au cours des XVIIe et XVIIIe s. Vendue en 1794, elle fut successivement au cours des XIXe et XXe s. ferme, colonie de vacances et est maintenant propriété privée. L’église, séparée des bâtiments d’habitation par une cour est orientée. Une nef unique, qui a été amputée de la moitié de sa longueur ne comporte plus que deux travées. La trace d’un grand arc brisé sur le mur nord per met d’imaginer une extension de la nef sur ce côté à une certaine époque. Un chœur rectangulaire et une abside à trois pans coupés sont accompagnés d’absidioles dans les bras du transept, deux subsistent sur la partie nord du transept. Au sud, le transept plus court a perdu son absidiole. L’abside et les absidioles sont couvertes d’une voûte en cul de four à nervures. La nef est couverte d’un berceau brisé conforté de doubleaux. L’arc triomphal, très épais, repose sur de larges piliers rectangulaires. La lumière pénètre dans l’abside par trois fenêtres en plein cintre légèrement ébrasées. De chaque côté de ces fenêtres , deux colonnettes à chapiteaux supportent le rare ornant la voussure. L’archivolte est décorée de motifs en billettes. Une frise composée du même motif relie les tailloirs des colonnettes. À l’extérieur, de larges arcades aveugles encadrent les fenêtres de l’abside. Au sommet des arcs, un fin pilastre s’élance vers une corniche à arcatures. Les pans coupés de l’abside sont reliés à ceux des absidioles et surmontés d’une trompe pour rattraper le mur rectiligne de la partie supérieure. Cette église, inscrite à l’Inventaire supplémentaire des Monuments historiques depuis le 2 juin 1992 présence la particularité d’être construire en briques dans une région où la pierre abonde. Ce matériau et les motifs décoratifs des fenêtres ainsi que les sculptures des chapiteaux en grès rose permettent de situer l’origine du bâtiment à la fin du XIIe s. ou au début du XIIIe s. La toiture en tuiles et la charpente présentant des signes de vétusté, des travaux one été entrepris pour leur remise en état. La Sauvegarde de l’Arc Français y a participé pour la somme de 40 000 F en 1993 et a donné 10 000 F pour le drainage en 1994.
D.B.



