Bretagne, Morbihan (56)
Roudouallec, Église Notre-Dame-de-Lorette
Édifice


L’église Notre-Dame-de-Lorette de Roudouallec, commune située à l’extrémité nord-est du Morbihan, tout près du Finistère, était rattachée au diocèse de Quimper avant 1802. La population de Roudouallec a fortement diminué en raison du départ massif de ses habitants vers les États-Unis au XXesiècle. Cette église paroissiale fut placée sous le patronage de saint Jean-Baptiste jusqu’au XVIIIesiècle.
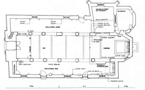
L’église, édifiée au XVIes. à l’emplacement d’une ancienne aumônerie des Hospitaliers, est construite en pierre de taille de granit en grand et moyen appareil. De plan rectangulaire, elle compte trois vaisseaux et comporte six travées. La nef, de forme allongée, se termine à l’est par une abside à trois pans coupés, construite en 1766, remplaçant le chevet plat. La chapelle seigneuriale au nord formant un faux transept fut construite au XVIesiècle. Á côté, une sacristie à pans coupés a été édifiée au XVIIIes., faisant de la fenêtre orientale une baie intérieure.
L’église est, dans l’ensemble, de style gothique flamboyant et dans la tradition locale du XVIe siècle : lucarnes avec baies en arc brisé à remplage fleurdelisé (lucarne nord), et trilobé (au sud). Comme le pignon nord, les chevronnières sont décorées de crochets, les portes sont aussi encadrées de colonnettes engagées surmontées de pinacles et terminées en accolade et surmontées de fleurons. La sculpture de la chapelle seigneuriale est soignée : les contreforts d’angle sont ornés de dais concaves, les crossettes sont en saillie et représentent des animaux fantastiques.
Le porche et le clocher sont de style néo-classique du XVIIIesiècle. Ce dernier repose sur une plate-forme ornée d’une balustrade à main courante moulurée. Au-dessus, s’élève le dôme octogonal surmonté d’un second lanterneau coiffé d’une boule. Des cordons en larmier scandent la base du clocher.
La charpente est lambrissée avec des couvre-joints et les poinçons et entraits sont moulurés ou à engoulants. Deux des sablières et corniches du chœur sont décorées de mascarons et d’écus.
L’église possède un retable du XVIIIes. et une riche statuaire du XVIIe siècle : Notre-Dame de Lorette, saint Jean-Baptiste, saint Nicodème, saint Vennec, un Christ en Croix, une Vierge à l’Enfant, un saint évêque, une porte gravée de faible relief. Les vitraux sont figuratifs et récents, seule la baie du transept est non figurative.
La Sauvegarde de l’Art Français a octroyé une aide de 9 000 € versée en 2007 pour la réfection de la maçonnerie intérieure et extérieure, le traitement des bois et la restauration de la charpente et de la voûte lambrissée.
Hélène de la Tullaye



