Normandie, Eure (27)
Saint-Benoît-des-Ombres, Église Saint-Benoît
Édifice


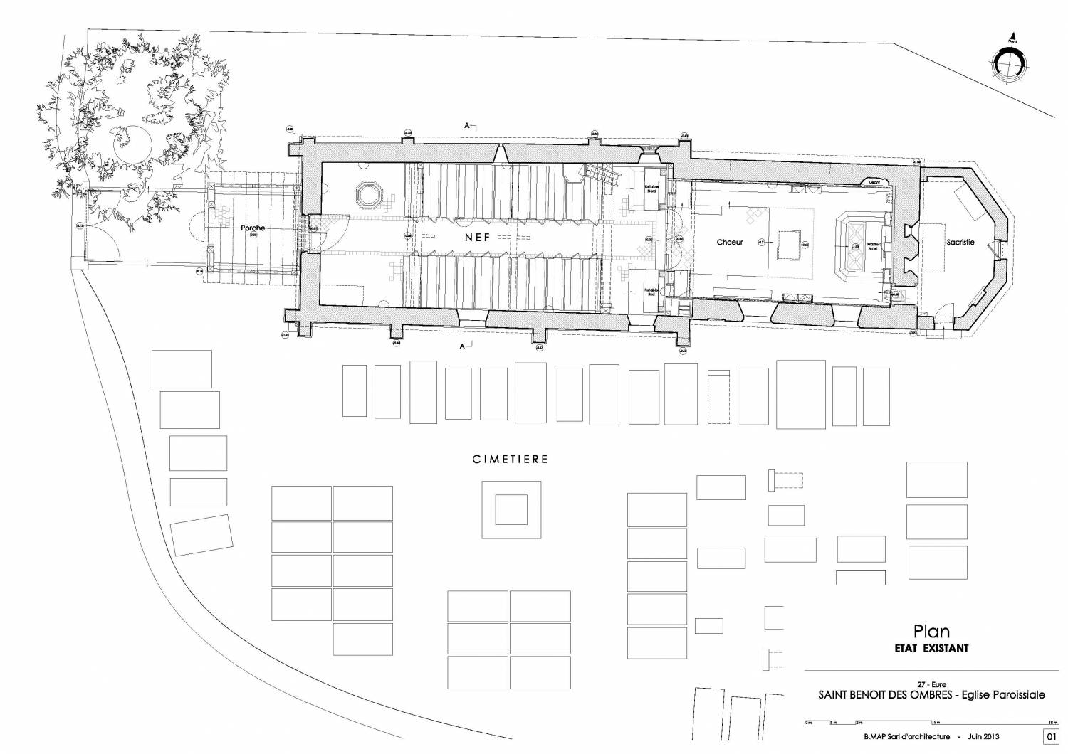
L’église est faite selon un plan rectangulaire simple d’une nef de deux travées sans bas-côté et d’un choeur à chevet plat. Une troisième travée à été ajoutée ensuite à l’ouest et le caquetoir installé.
Les murs sont en moellons de silex et de pierre calcaire. Le cocher, charpenté à la jonction de la nef et du choeur, est surmonté d’une flèche à 4 pans, en ardoises, comme la couverture de la nef.
En façade sud, un décor de damiers est réalisé avec l’alternance des pierres calcaires blanches et calepins de silex gris.
La façade ouest est ornée d’un portail mouluré avec linteau en arc surbaissé.
Une sacristie à pans coupés est accolée au chevet.
Située dans la forêt du Vievre, le domaine de Saint-Benoît a été fondé en 1070 par l’abbaye Saint-Pierre de Préaux, suite à un don de l’archevêque de Rouen. L’abbaye conserve le fief jusqu’à la Révolution.
Le surnom « des Ombres » apparaît pour la première fois en 1257. Le site devient une commune en 1804.
L’église est édifié au XIIe siècle. Elle est modifiée par la suite. Elle ne conserve de l’époque romane qu’une partie du mur nord de la nef et le chevet.
Plusieurs remaniements sont effectués au XVIe siècle avec la création d’une travée supplémentaire à l’ouest, le remaniement de la façade sud et de la travée orientale de la façade nord.
Un porche ouvragé en caquetoir est installé pour abriter l’entrée à l’ouest.
Une sacristie est ajoutée au chevet de l’église au XVIIIe ou XIXe siècle.







