Bretagne, Côtes-d’Armor (22)
Saint-Carné, Église Saint-Pierre
Édifice


La commune de Saint-Carné est située à 5 kilomètres au sud de Dinan. L’église Saint-Pierre est au centre d’un bourg où subsistent de nombreuses maisons anciennes. La paroisse faisait partie, avant la Révolution, des quatre-vingt-treize paroisses du diocèse de Dol, qui présentait la particularité de posséder de nombreuses enclaves dans les diocèses bretons et même normands : Saint-Carné était l’une des vingt-quatre enclaves doloises au sein du diocèse de Saint-Malo.
L’identité de saint Carné reste obscure. Il n’est pas honoré ailleurs en Bretagne, et l’on ne sait rien de sa vie. À Saint-Carné même, sa statue le représente en évêque. Certains ont cru pouvoir l’identifier avec un saint irlandais du nom de Carnaich, cité dans d’anciennes litanies bretonnes du xe s., mais ce nom ne peut s’accorder avec la graphie bretonne Karnay (1291), ni avec la graphie latine Karnetus (vers 1330).
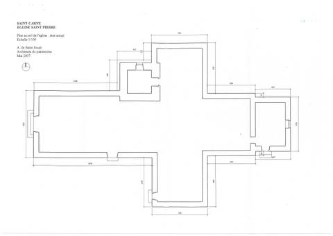
L’église Saint-Pierre, en forme de croix latine, est composée d’une nef, d’un transept et d’un chœur au chevet plat. Elle a été presque entièrement « rebâtie par les habitants » (selon une inscription surmontant le portail ouest) dans le deuxième quart du xixe s., à l’exception de la tour portant le clocher, qui a été élevée en 1666 au nord de l’édifice, et qui se trouve à l’angle de la nef et du bras nord du transept ; cette haute tour est surmontée d’une flèche en charpente couverte en ardoise. L’ensemble, d’une grande simplicité, est construit en moellons, hormis les chaînes d’angles et les encadrements des baies qui sont en granit. En 1947, l’ancien cimetière, qui entourait l’église, a été déplacé, et ne subsiste plus dans l’enclos qu’une croix monolithe scellée à l’angle de la nef et du bras sud du transept.
En réalité, l’édifice actuel résulte d’une série de travaux parfaitement datés. 1826 : restauration de la tour lézardée du haut en bas et reconstruction de l’aile sud du transept ; 1839 : restauration de la nef ; 1840 : réfection du portail ; 1845 : reconstruction totale du chœur (la sacristie est accolée à l’est du chœur), marquant la fin des travaux d’ensemble. Au xxe s., l’église a été l’objet de plusieurs campagnes d’entretien[1]. L’intérieur de l’église est d’une grande sobriété. Les murs sont recouverts d’un enduit blanc ; la charpente est masquée par une voûte lambrissée ; le mobilier est constitué de trois autels avec retables du xviiie s., de structure semblable : un autel en tombeau de forme galbée surmonté d’un tableau central (l’Ascension au maître-autel, le Sacré-Cœur dans le bras nord du transept, la Donation du Rosaire à saint Dominique dans le bras sud du transept) lui-même encadré de deux niches flanquées de colonnes à chapiteaux ioniques et abritant des statues (dont certaines anciennes : saint Pierre, la Vierge, saint Carné, sainte Émérence, saint Étienne), et enfin surmonté d’un entablement à fronton cintré (seul celui du retable central porte un décor sculpté : Dieu le Père dominé par deux anges soutenant la croix).
Pour la restauration du clocher et de la flèche, la Sauvegarde de l’Art français a accordé une aide de 10 000 € en 2010.
Tanguy Daniel
[1] Parmi les travaux d’entretien, on relève de 1909 à 2008 : 1909, rénovation du clocher atteint par la foudre ; 1947, remplacement de la couverture nord ; 1953, réfection des joints du soubassement de l’église ; 1988, réparation de la couverture dont l’étanchéité défectueuse laissait couler l’eau sur la voûte lambrissée ; 1994, rénovation de l’intérieur ; 2008, il est devenu nécessaire de restaurer entièrement le clocher (charpente et couverture).





