Bourgogne-Franche-Comté, Yonne (89)
Saint-Cyr-les-Colons, Église Saint-Cyr-et-Sainte-Julitte
Édifice


À l’époque mérovingienne, au lieu-dit Demiacus, un monastère portant le nom de Saint-Cyr semble avoir existé. Il disparaît rapidement, laissant son nom au village qui appartient au IXe s. à l’abbaye Saint-Germain d’Auxerre. Au XIe s., l’évêque d’Auxerre donne l’église à l’abbaye Saint-Laurent de Cosne.
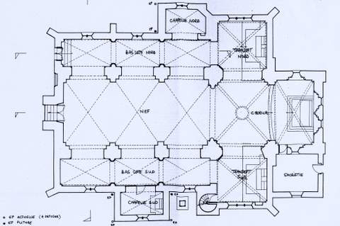
L’église paroissiale, consacrée à saint Cyr et sainte Julitte, est un édifice important sur la place du village. Malgré les remaniements, elle a conservé la majeure partie de sa construction primitive : une nef unique, une travée carrée portant la tour-clocher et un chœur à chevet plat qui remontent aux années 1160.
L’élévation extérieure est dominée par les deux niveaux de la tour-clocher qui s’élève au-dessus de la croisée du transept. La toiture est cantonnée aux angles de quatre petites flèches modernes.
On accède à la nef par un portail simple en plein cintre, protégé par le haut appareil d’un assommoir. Les trois travées sont rythmées par des piliers carrés sur dosseret, au tailloir mouluré d’un cavet. Elles étaient éclairées par des fenêtres hautes en plein cintre, à ébrasement intérieur profond, aujourd’hui bouchées. La nef est couverte de voûtes d’arêtes refaites au XIXe siècle.
La travée formant la croisée du transept est cantonnée de quatre piles composées de colonnes et colonnettes en bel appareil. Les chapiteaux en sont sculptés de nombreuses têtes d’hommes barbus ou imberbes, certaines grotesques, d’autres au milieu de feuillages stylisés, eux-mêmes décorés de trous ou de perles, bien caractéristiques du roman régional dans la deuxième moitié du XIIe s. (du côté nord, un homme apparaît entre deux lions, vraisemblablement Daniel dans la fosse aux lions). La travée est couverte d’une croisée d’ogives d’apparence primitive, dont les nervures sont de simples bandeaux de pierre rectangulaires convergeant vers un trou de cloche.
L’abside est construite en bel appareil, sur un plan rectangulaire. Au-dessus du soubassement, le mur est percé de quatre baies, une sur chacun des côtés nord et sud ; deux baies jumelles surmontées d’un petit oculus à l’est. On remarque la qualité de la modénature, faite d’une suite de gros tores, qui est complétée par la sculpture des chapiteaux, végétale ou historiée, comme ce chapiteau, à l’angle sud-est où s’affrontent des oiseaux à queue de serpent et à tête humaine. L’abside est couverte d’une croisée d’ogives semblable à celle de la croisée du transept ; la clef est ornée d’une rosette.
Ce bel édifice du XIIe s. a été agrandi à la fin du XVe s. ou au début du XVIe, par l’adjonction à la nef de bas-côtés. Ces collatéraux, bas et étroits, sont voûtés d’ogives dont les nervures prismatiques pénètrent dans les colonnes engagées. De grands arcs brisés percés dans les anciens murs gouttereaux relient nef et bas-côtés, tandis qu’un grand toit unique va entraîner l’obturation des fenêtres hautes de la nef romane (aujourd’hui éclairée seulement par les petites fenêtres des collatéraux). À la façade occidentale où apparaissent nettement ces deux étapes de construction, on ajoute un petit portail, surmonté d’une accolade, pour donner accès au collatéral nord de la nef.
L’agrandissement de l’église passe également par la construction (ou reconstruction ?) de deux chapelles formant les bras d’un faux transept de part et d’autre de la travée supportant le clocher. Elles sont couvertes par une voûte sur croisées d’ogives et largement éclairées par une baie composée à remplage flamboyant. En outre, deux chapelles ont été accolées plus tard, l’une à la deuxième travée sud, l’autre à la troisième travée nord de la nef ; enfin, une tourelle d’escalier a été ajoutée dans l’angle sud-ouest du transept.
On peut signaler les restes d’une fresque du XVIe s. dans le bras nord du transept, un maître-autel et un retable en bois peint du XVIIe siècle.
D’importants travaux de restauration avaient été effectués à la fin du XIXe s., consistant notamment dans la pose d’entraits dans la nef afin d’arrêter le déversement des murs gouttereaux.
La première tranche de la restauration générale de l’église a permis de refaire la couverture de la nef, de stabiliser les charpentes, de consolider les maçonneries et de poser des gouttières. En 2002, la Sauvegarde de l’Art français a participé à ces travaux par l’attribution d’une subvention de 12 000 €.
L. S.-P.
Bibliographie :
M. Quantin, Répertoire archéologique du département de l’Yonne, Paris, 1868, col. 27.
M. Pignard-Péguet, Histoire de l’Yonne, Paris, 1913, p. 556-557. (Réimpr. : Histoire des communes de l’Yonne, 01960 Péronnas, 1998.)







