Occitanie, Aveyron (12)
Saint-Juéry, Église Saint-Georges
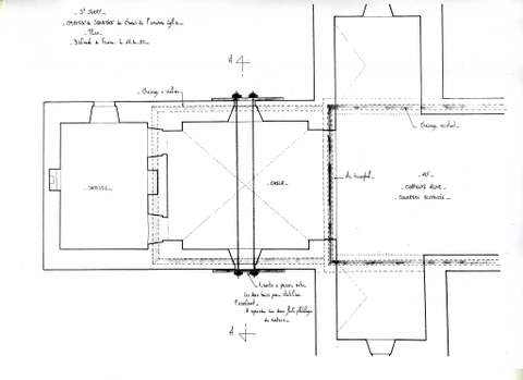
Édifice


Saint-Juéry, jadis de Cortès, a la particularité d’avoir deux églises : l’une dont l’origine se perd dans la nuit des temps, mais dont la construction remonte pour l’essentiel au début du XVIIIe s., l’autre qui fut bénie en 1925 et dans laquelle on transféra le mobilier de la première. La première église, qui seule nous intéresse, dépendait du chapitre de Vabres. Son patron saint Georges était sans doute à l’origine saint Georges, moine de Vabres et évêque de Lodève (décédé vers 884). Elle est désaffectée. L’architecture de cette église, presque celle d’ une grange, est sans âge. Le chœur quadrangulaire a une voûte d’arêtes portée, aux angles, par quatre piliers. Tout laisse penser qu’il fut construit vers 1831-1832, à l’économie, avec le minimum de mortier. De la même époque est la sacristie, qui est derrière le chœur et aussi large que lui, et à laquelle on accède par deux portes de chaque côté de ce qui fut le maître autel. Un arc triomphal légèrement en fer à cheval sépare le chœur de la nef. Celle ci est limitée par deux murs parallèles et couverte de charpente. Point de luxe ni de fantaisie dans cet ensemble très rustique. À cela s’a joutent une tribune au fond avec un accès au clocher à travers voûte, peu réussi, et trois chapelles latérales. Les deux premières forment croisillons, juste avant l’arc triomphal. Elles sont voûtées en plein cintre et portent, sur les pierres extérieures des baies, les dates de 1725 (chapelle nord) et de 1831 (chapelle sud). En fait, on sait par les archives que ces deux chapelles furent construites par des particulier s en 1831 et dédiées l’une à Notre Dame et l’autre à saint Joseph. Il faut donc admettre que l’on a récupéré une des baies de la nef ou celle de la première sacristie (que l’on sait avoir été construite en 1725-1726), à moins que l’on ait voulu rappeler sur les deux chapelles, d’un côté la date de restauration de l’église au début du XVIIIe s. et de l’autre celle des travaux qui eurent pour objectif en 1831 d’accroître les capacités de l’édifice (nouvelle sacristie, chœur, chapelles). Ce fut Boulouis, architecte à Saint-Affrique, qui aurait fait les plans de ces derniers travaux ou qui les aurait approuvés, car, il faut le répéter, l’ensemble est très conforme à l’architecture rurale locale. Les mo yens manquaient : comme on l’a vu, on épargna le mortier et on négligea de crépir. Peu de temps après 1831, sous l’effet de la poussé e de la voûte du chœur et, sans doute, à cause de l’ouverture des deux chapelles, on constata un décrochement (encore visible) du haut des murs vers l’extérieur. On entreprit alors des travaux de consolidation. La place manquait pour une population très pratiquante, nombreuse mais pauvre. En 1852, le conseil de fabrique décida d’ouvrir une porte dans le clocher à l’ouest et de fermer celle qui était au fond de la nef au sud. On remplaça cette dernière par une troisième chapelle qui correspondait peut-être à un porche primitif. On construisit alors un nouveau porche (1853), à l’ouest du clocher, mais tourné vers le sud (ce porche menaçant ruine sera détruit en 1962). Le clocher a, malgré les travaux de réfections successifs (une flèche bâtie en 1856, foudroyée et remplacée par la toit ure actuelle en 1930), l’ allure des vieux clochers du pays, tels que ceux de Saint-Sernin ou de Combret, parenté due en partie à l’emploi du matériau du pays, un grès rouge presque vineux… Les vantaux de la porte ont leur histoire : lors des inventaires de novembre 1906 on envoya la troupe à Saint-Juéry, pas moins de cinquante hommes, et, comme la population avait verrouillé la porte, celle-ci fut ouverte à la hache. Elle a été conservée en souvenir de cet événement et l’on dit que les paroissiens se partagèrent les éclats de bois comme des reliques. Trois vestiges permettent de remonter dans le temps, d’abord un sarcophage de grès, sans date, mais vraisemblablement médiéval, qui est à côté de l’entrée, ensuite la belle croix de pierre historiée du XVIe s., dite croix de saint Georges, qui se trouvait à l’origine dans un oratoire proche de l’église, édifice qui fut détruit en 1864; enfin sur le mur nord de la nef, du côté du clocher, les vestiges d’une litre (enduit plus lisse formant une bande horizontale), pour laquelle on peut proposer avec vraisemblance deux dates : soit 1684, mort de François de Pascal, soit plus vraisemblablement 1719, mort de Jean-Louis de Pascal, seigneur de Saint-Juéry, tous deux enterrés dans cette église. Précieux vestige, qu’il ne faudra pas manquer de conserver lors des restaurations à venir. Pour la réfection de la couverture du chœur, la Sauvegarde de !’Art français a accordé 50 000 F en 1998.
J.D
