Normandie, Calvados (14)
Saint-Pierre-Azif, Eglise Saint-Pierre
Édifice


Description
L’église Saint-Pierre n’est pas orientée, elle est placée sur un axe sud – sud-est à nord – nord-est. Cette inexactitude par rapport à l’axe ouest-est s’explique peut-être par la préexistence supposée d’une motte castrale implantée en fonction d’impératifs militaires.
L’église est bâtie sur un éperon légèrement à l’écart du petit bourg de Saint-Pierre-Azif, à proximité de l’axe de Villers sur Mer à Beaumont-en Auge, terrain agricole au relief assez vallonné caractéristique du Pays d’Auge.
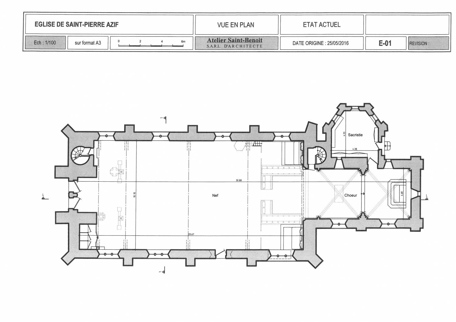
L’ancienne église paroissiale est un édifice à deux corps principaux et une tour-clocher dans œuvre. L’église-halle est composée en alignement d’axes de faîtages, successivement d’Ouest en Est, la tour clocher, la Nef et le chœur. Au mur Nord du Chœur est accolée perpendiculairement la sacristie, plus tardive.
Son architecture appartient à deux périodes : le XIe s. pour le chœur et la fin du XVe, début XVIe s. pour la nef.
La façade occidentale se confond avec l’impressionnante tour lombarde, datée du XIIe s. qui supporte le clocher et en avant corps de laquelle viendra plus tardivement s’adosser la nef pour la prendre dans l’œuvre. La base de la tour fortifiée forme un porche non voûté à deux entrées, en retrait par rapport à la façade en avant-corps. La porte à linteaux se compose de deux vantaux séparés par un trumeau sculpté d’une Vierge à l’Enfant, surmontée d’une niche datée de 1648 abritant un saint Nicolas. Un escalier hélicoïdal, extérieur en tour, percé de meurtrières et de nombreux trous de boulins, témoigne de sa construction.
L’église de Saint-Pierre-Azif conserve une remarquable collection 9 toiles de maîtres flamands. Elles font partie de la plus importante collection ramenée des Pays-Bas néerlandais par Jean-Pierre Le Chanteur (1760-1846), marin normand, natif de Saint-Pierre-Azif. L’église Sainte-Catherine de Honfleur et l’église de Rozel, près de Cherbourg, en abritent une partie.
L’église Saint-Pierre conserve également un gisant du XIVe siècle et un chemin de croix en relief de 1887.
Histoire
L’église Saint-Pierre est implantée à l’emplacement d’une ancienne butte féodale dominant la côte et permettant de prévenir les habitants de toute menace venant de la mer. Ce site était sans doute occupé initialement par un castrum dont ne subsiste que l’ancienne chapelle seigneuriale correspondant à l’actuelle sacristie de l’église. La tour lombarde, massive, vestige de l’époque moyenâgeuse, témoigne probablement d’une ancienne structure défensive plus importante.
« D’après M. l’abbé De La Rue (notes manuscrites), Pierre de Hys figure, comme témoin, avec Guillaume de Malesmains, Guillaume Martel et Vincent de Val-Richer, dans une charte de 1277, pour l’abbaye de St -Wandrille. L’abbé De La Rue constate que la commune de St.-Pierre-Azif est appelée His dans le registre de Philippe-Auguste, et que sous ce prince elle appartenait à la famille de His. De là la dénomination de Saint-Pierre-aux-His, et par corruption St.-Pierre-Azif. » (Arcisse de Caumont, Statistique Monumentale du Calvados)
Le projet en images
Projets à proximité

Édifice
Trouville-sur-Mer, Église Saint-Michel d’Hennequeville
Trouville-sur-Mer
Normandie, Calvados (14)

Édifice
Cordebugle, Église Saint-Pierre-et-Saint-Paul
Cordebugle
Normandie, Calvados (14)

Édifice
Sainte-Marguerite-des-Loges, Église Sainte-Marguerite
Sainte-Marguerite-des-Loges
Normandie, Calvados (14)













