Normandie, Manche (50)
Saint-Sauveur-Lendelin, Eglise Saint-Laurent
Édifice


description
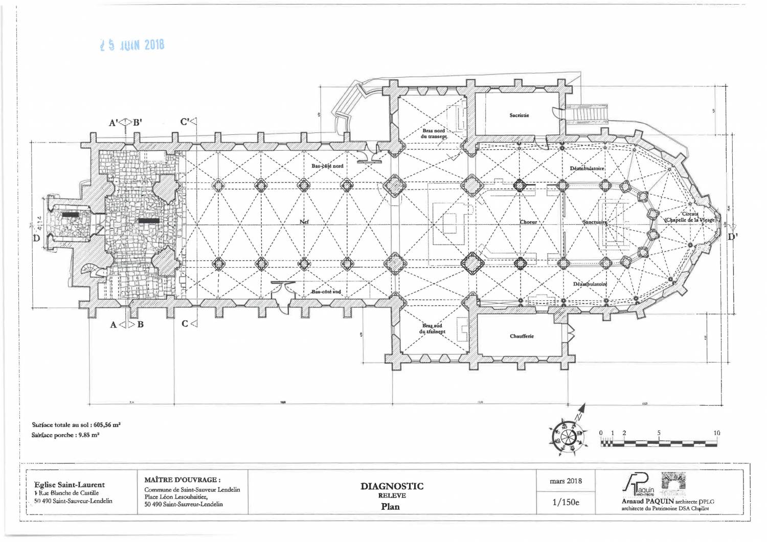
L’église Saint-Laurent présente trois grandes étapes de construction qui se décomposent en trois parties de l’église actuelle, mises en place successivement : la nef avec un premier chœur disparu, la tour du clocher porche avec son porche occidental et l’ensemble transept et chœur.
Elle fait partie du corpus (assez rare) des églises halles de la Manche.
Bien que qu’il s’agisse de l’un des plus importants édifices de la Manche, les origines de l’église Saint-Laurent sont maI connues.
La nef de cinq travées et ses collatéraux peuvent remonter au milieu du XIIIe siècle. À l’origine, la nef était aveugle, sans fenêtres hautes ni voûtes, et éclairée uniquement par les baies des bas-côtés. Des traces de faux appareillage ocre rouge, peint en comble de nef sur ce qui reste du mur de l’arc triomphal (situé entre la nef de l’ancien chœur) en attestent. Le couvrement de la nef par des voûtes de fait dans un deuxième temps. La nef se prolongeait alors par un chœur plus pincé (à chevet plat) et une sacristie. La transformation de la toiture des bas côtés pour ouvrir des fenêtres hautes à la nef aveugle avec pose de tirants en remplacement de l’arasement date du XIXe, au moment où sont construit le transept et le chœur néo-gothiques.
Le clocher porche fortifié aurait été construit au XIVe siècle. Celui-ci se compose d’une tour flanquée de deux bas-côtés charpentés et d’une tourelle carrée abritant un escalier à vis donnant accès aux étages. Un porche au-devant du clocher aurait été ajouté à la même époque ou au XVe siècle.
A partir des années 1860, le chœur est reconstruit par l’architecte d’Avranches Nicolas Théberge (1815-1866). Ce dernier ajoute entre la nef et le chœur, un transept. Il modifie également les baies et les voûtes de la nef.
Les dispositions de l’ancien chœur sont connues grâce au cadastre napoléonien et à la description de l’église faite par Jean-Michel Renault dans son ouvrage « Revue Monumentale et Historique de I’Arrondissement de Coutances » publié en 1852. Ce chœur était à chevet plat, composé de trois travées, et apparemment percé de fenêtres en plein-cintre (Jean-Michel Renault parle de « fenêtres du chœur [qui] sont rondes, sans ornements »). Théberge démolit donc ce chœur pour en construire un nouveau à chevet circulaire avec trois travées droites et un déambulatoire. Il ajoute à ce chœur une chapelle d’axe en encorbellement sur la rue.
Dans la première moitié du XXe siècle, on ajoute un perret maçonné sur les soubassements des façades nord de l’église (du chœur jusqu’au clocher) pour conforter les pieds de murs suite à l’affouillement du terrain de l’enclos paroissial et sa mise à niveau avec la rue nouvellement créée au nord.
historique
L’église Saint-Sauveur-Lendelin a été construite sur un site primitif de christianisation, situé sur la voie romaine Alauna-Cosédia (Valognes-Coutances).
Initialement, l’édifice se situait en retrait de la voie principale et était entouré d’un vaste enclos paroissial qui a aujourd’hui disparu.
Jusqu’en 1995, la paroisse comptait 5 communes : Saint Sauveur Lendelin, cheflieu de canton et lieu de résidence du curé, La Rondehaye, St Michel de la Pierre, St Aubin du Perron, et Vaudrimesnil pour une population de globale de 2398 habitants.
Elle fut ensuite regroupée avec une autre paroisse de 3 clochers, voisine de 12 km de distance, où le curé résident partait en retraite et n’était pas remplacé : Hauteville la Guichard, avec Le Mesnilbus, Montcuit. Le territoire évoqué couvre un total de 809 habitants. Ce qui amena le curé à desservir 8 communes pour une population totale de 3207 habitants.
C’est donc après tous ces changements qu’en 1997, la paroisse a pris le nom de St Jean Eudes et regroupe 11 clochers rassemblant à l’époque, une population de 4229 d’habitants à fort enracinement rural avec une distance de plus de 22 km d’un point à l’autre de la paroisse et qui s’est enrichie aujourd’hui à 5500 individus.











