Saint-Silvain-Montaigut, Église Saint-Silvain
Édifice


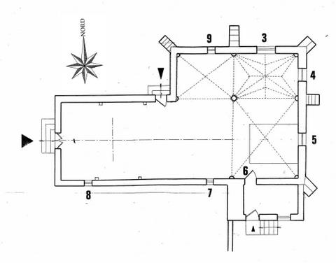
Dédiée à saint Silvain, qui a donné son nom à la paroisse, cette église dépendait de l’abbaye de Bénévent (Creuse) à qui elle fut donnée au XIe siècle. Elle fut totalement rebâtie au XVe s. sous la forme d’un vaisseau unique à chevet plat, divisé probablement en quatre travées légèrement barlongues dont seule celle de l’est, formant chœur, est parvenue à nous sans altération, avec sa voûte d’ogives à pénétrations que reçoivent, sans chapiteaux, des demi-colonnes adossées à bases polygonales moulurées. On y voit une armoire murale dans sa paroi est, et une piscine cintrée dans son mur méridional. La travée précédente n’a gardé que ses supports et des vestiges de nervures, qui témoignent de l’existence d’au moins trois travées semblables dans le passé.
Située au nord et alignée sur le mur du chevet de l’église, une chapelle seigneuriale de deux travées barlongues dans le sens est-ouest, a vu le jour en même temps que la nef principale et communique avec elle par deux grands arcs surbaissés moulurés, reposant sur un pilier cylindrique intermédiaire à base polygonale. Sa travée ouest est voûtée d’ogives simples dont la clé porte un écu à trois fleurs de lys sommée d’une couronne marquisale, tandis que l’autre a reçu une voûte avec liernes et tiercerons, avec petite clé ronde à chaque intersection, et une grande clé centrale très ornée où huit petits médaillons entourent un disque médian sculpté plus large, la géométrie de l’ensemble évoquant certains cristaux de neige.
Toute la partie ouest de la nef, détruite peut-être durant les guerres de Religion ou la Fronde, a été refaite sans style, scandée seulement de quatre poteaux. Un lambris de bois surbaissé a remplacé les voûtes détruites.
Un clocher quadrangulaire sous flèche octogonale, le tout en bois couvert de bardeaux, est monté en arrière du pignon de la façade occidentale nue où une simple baie cintrée longue surmonte une porte en arc brisé moderne. Dans le gouttereau nord subsiste une porte en accolade. La travée orientale de la chapelle seigneuriale est éclairée au nord par une gracieuse petite rose à remplage flamboyant trilobé, à l’est par une petite fenêtre sous trilobe et oculus. L’épais contrefort en diagonale qui en marque l’angle nord-est est coiffé d’une Pietà sculptée dans une niche de style flamboyant, qu’un commentateur déclare remarquable et qui est seulement pittoresque. La fenêtre du chœur de l’église est en plein cintre. L’excellente restauration récente de l’ensemble a mis ce monument particulièrement en valeur.
Les vitraux modernes abstraits sont de qualité. L’église a conservé une savoureuse cuve baptismale cylindrique sur pied, de style populaire, où l’on voit gravés un buste d’orant, une croix celtique et un oiseau. On remarque aussi un élégant fauteuil de célébrant du XVIIe s. et un saint Jean-Baptiste, en bois polychrome, du XVIIIe.
Pour la mise hors d’eau de l’édifice (révision des couvertures, assainissement des maçonneries et pose d’un réseau d’évacuation des eaux), la Sauvegarde de l’Art français a versé 15 000 € en 2008.
Pierre Dubourg-Noves



