Occitanie, Tarn-et-Garonne (82)
Saint-Vincent-Lespinasse, Église Saint-Vincent
Édifice


Juste au nord de la Garonne, à quelques pas de Moissac, Saint-Vincent-Lespinasse est juché sur une crête, entre la Barguelonne et le Tarn. L’église Saint-Vincent, une ancienne paroisse, a donné son nom au village, Lespinasse n’étant que le nom d’une famille notable du lieu qui, pourtant, n’en avait pas la seigneurie… Village formé de hameaux et de bordes éparses, Saint-Vincent a gardé un curé en titre jusqu’en 1924. Relevant à l’origine du diocèse d’Agen, la paroisse a été rattachée au XIVe s. à celui de Cahors, puis au XIXe à celui de Montauban : c’était à l’origine un prieuré, peut-être de chanoines augustins, sécularisé au XVIe siècle.
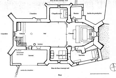
L’église est assez élevée et vaste, mais ne date que du XVe siècle : elle a été rebâtie après la guerre de Cent Ans. Nef unique de trois travées, elle est terminée par un chœur polygonal voûté sur croisée d’ogives. Au nord et au sud, deux chapelles latérales, pareillement voûtées sur croisées d’ogives à liernes et tiercerons, forment un faux transept. En 2000, Marion Sartre, Didier Médale et Pierre Cadot, architectes, ont réalisé une analyse archéologique de l’édifice dont je transcris l’essentiel :
« … [cette église] aurait été ruinée par la guerre de Cent Ans. La reconstruction principale a lieu au XVe siècle ; la nef est rebâtie sur les restes de l’ancienne construction et avec une partie de ses matériaux, mais le chœur voûté est établi ex novo plus à l’est et plus haut que la nef ; plus tard (fin XVe, début XVIe siècles) sont ajoutées les deux chapelles nord et sud formant faux transept. À l’époque moderne, on surélève les murs gouttereaux pour établir une couverture d’ensemble sur nef et chœur ; ce parti suppose la surélévation du clocher-mur ; la nef est couverte d’un plafond lambrissé suspendu à la charpente. En 1873-1874, on remplace le plafond lambrissé par des voûtes en briques, et on donne à l’édifice un décor peint, des vitraux. »
Les trois voûtes gothiques possèdent une décoration sculptée. La voûte de la chapelle sud présente à la clé le Père Éternel, tenant le globe ; aux clés secondaires, les symboles des évangélistes. À la retombée des nervures du chœur, les colonnes engagées sont coiffées de chapiteaux figurant des anges avec des phylactères. À l’extérieur, la construction est en bel appareil de calcaire. Celui-ci, trop tendre, s’érode parfois spectaculairement, comme on peut le voir sur la façade ouest (accusant une différence avec les blocs plus résistants – ou déjà remplacés – de plusieurs centimètres). À la façade ouest, on remarque un petite porte murée et un œil-de-bœuf appareillé, à la corniche de l’abside, trois modillons (peut-être des remplois ?) dont l’un est accompagné d’un curieux motif d’entrelacs. Le clocher-mur a le profil caractéristique de pignon triangulaire, à deux arcades.
Depuis 1976 au moins, l’édifice nécessite des travaux, ce qui a justifié la demande de protection parmi les Monuments historiques ; à la suite de l’inscription, le clocher a été presque entièrement reconstruit au début des années 1990.
Un important programme de drainage, réfection de maçonneries, charpente et couverture a été mis en œuvre, pour lequel la Sauvegarde de l’Art français a apporté 7 700 €, versés en 2003.
O.P.
Bibliographie :
P. Gayne, Dictionnaire des paroisses du diocèse de Montauban, Montauban, 1978, p. 261.



