Nouvelle-Aquitaine, Gironde (33)
Sainte-Florence, Église Sainte-Florence
Édifice


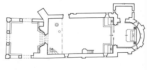
Eglise Sainte-Florence. Le village est situé dans la vallée de la Dordogne à environ 35 km à l’est de Bordeaux et à une dizaine de kilomètres au sud-ouest de Castillon-la-Bataille. L’église, située à flanc de coteau, est de type roman. Son plan est celui d’une nef unique avec abside semi-circulaire. Une sacristie a été ajourée au nord : elle porte la date de 1727. Un porche à arcade que l’on peut dater de la deuxième moitié du XVIIIème s. précède l’édifice à l’ouest. Un énorme contrefort soutient l’angle nord-ouest tandis que des contreforts plats soutiennent l’abside et les murs de la nef dont on peut admirer le bel appareil, notamment au nord. C’est au nord aussi que s’ouvre une belle porte de style flamboyant, portant les traces d’un écusson supporté par deux anges. Comme il arrive fréquemment dans cette région, le portail occidental abrité par le porche constitue l’élément le plus soigné de l’ensemble. Il est orné de quatre voussures moulurées dont trois en arc brisé ; il est sur monté d’une archivolte décorée d’étoiles. Les chapiteaux de grande qualité sur lesquels reposent les arcs du portail sont ornés d’oiseaux dans des feuillages ou de quadrupèdes à longues jambes. La corniche repose sur des modillons zoomorphes. L’intérieur de l’église est très simple : l’arc triomphal repose sur deux chapiteaux sculptés, l’un orné d’un centaure, l’autre d’un évêque avec sa crosse. L’arc triomphal est cantonné de deux retables latéraux. Le chœur est ennobli par des boiseries datées du XVIIIème s. et certainement reprises en 1824, qui lui donnent une belle homogénéité. En raison de leur très mauvais état, elles ont dû être déposées. Cette opération a fait apparaître une maçonnerie passablement dégradée qu’il convenait de conforter avant de remettre en place le décor. L’église souffre de l’humidité en raison du niveau des terres qui l’entourent et qui se situent au sud à près d’un mètre au-dessus du niveau intérieur. C’est la raison pour laquelle l’édifice a, en quelque sorte, été décaissé de ce côté. Des fissurations et des désordres divers étaient apparus clans les maçonneries, notamment à la jonction du clocher et du mur sud. Enfin des travaux très urgents devaient être exécutés pour consolider le portail nord. La Sauvegarde de l’Art Français a participé à cette campagne par une subvention de 35 000 F en 1995.
F. B.

