Occitanie, Ariège (09)
Seix, Chapelle Notre-Dame-de-Pitié
Édifice


Chapelle Notre-Dame-de-Pitié. Au confluent de deux rivières de montagne, deux torrents, Seix est un village pittoresque et vivant, plein de caractère. Son château, aux toits pointus mais vraiment peu menaçants, le domine, avec le clocher-mur de l’église paroissiale, ambitieux et démonstratif ouvrage néo-gothique du XIXe s., à moins qu’il ne soit plus ancien mais particulièrement restauré. Non loin de l’église, la chapelle Notre-Dame-de-Pitié est le sanctuaire d’une dévotion particulière de la population, tirant son origine de miracles ou de vœux exaucés, aujourd’hui oubliés. Les bergers venaient autrefois y offrir, le 8 septembre, de jeunes agneaux, geste de tradition immémoriale. L’édifice est d’ailleurs plus récent que la statue miraculeuse qu’il abrite[1], une élégante Pietà du XVe s., qui lui a donné son nom.
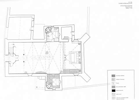
Une pierre inscrite au-dessus de l’arc de la porte date la construction de 1660, construction qui dut modifier si sensiblement les pratiques locales qu’un procès s’engagea bientôt, entre le seigneur du lieu et la communauté, pour la possession de l’édifice. La chapelle forme un ensemble avec l’ancien presbytère, vaste maison construite en retour d’équerre par rapport à la chapelle, sans doute vers la même époque. C’est un édifice assez vaste, conçu pour accueillir la foule, sobrement rectangulaire (quinze mètres par sept), avec deux petites chapelles carrées formant faux transept au nord et au sud, et chevet plat. Elle ne comprend pratiquement aucune modénature ni décor extérieur, et l’intérieur lui-même est fort simple. Seul accent particulier: un petit clocher-mur d’une arcade domine la façade, avec une cloche.
La présentation actuelle de l’intérieur de l’édifice résulte d’une importante campagne de travaux qui eut lieu vers 1872. Remplaçant peut-être un lambris en forme de ciel étoilé, on établit quatre travées de voûtes d’arêtes en briques hourdées au plâtre, enduites et peintes ainsi que les murs de la nef. Cette décoration polychrome est à base d’ornements géométriques, faux appareils, et floraux, d’une qualité moyenne. La clé de voûte du sanctuaire représente une Vierge des Douleurs, avec les sept glaives. Toutefois, on perçoit encore l’aménagement antérieur dont subsistent les deux tribunes superposées au fond de la nef, selon un usage courant dans les Pyrénées, ainsi que le grand retable du sanctuaire et plusieurs ensembles menuisés : le tambour de la porte, deux confessionnaux situés dans les chapelles latérales (dédiées à sainte Anne et à saint Joseph) ; ces trois ouvrages sont d’un élégant dessin chantourné d’esprit rocaille. Une belle chaire galbée du XVIIIe s. a son abat-son sommé d’un ange à la trompette, suivant l’iconographie classique.
Le retable du maître-autel se déploie majestueusement sur le mur du chevet, qu’il occupe entièrement. Il se compose de trois travées, séparées par des colonnes salomoniques, accueillant chacune un tableau ; il s’amortit par un simple entablement. Ses ailerons latéraux sont ornés de fleurs et de fruits issant d’une figure monstrueuse. Les tableaux sont des œuvres assez médiocres, représentant la Naissance de la Vierge, la Descente de croix, enfin l’Adoration des Mages, d’après des gravures de compositions célèbres. Ce retable est posé sur un haut lambris, où l’on remarque le remploi pittoresque de panneaux plus anciens d’échelles diverses.
La chapelle était en assez mauvais état (interdite au public depuis 2002), en raison principalement de l’affaiblissement de la charpente, qui reposait sur la voûte en briques en plusieurs endroits et provoquait des ruptures. Une campagne de travaux, sous la direction de M. Julien Tajan, architecte du Patrimoine, a remédié à cette situation, refait la toiture, et établi aussi un drain autour de la chapelle. Pour cet important investissement de près de 300 000 € au total, la Sauvegarde de l’Art français a apporté 20 000 € à la commune. Cependant, il reste encore à traiter tout l’intérieur pour que l’édifice qui, sans être désaffecté, ne sert plus pour le culte, puisse retrouver un nouvel usage.
Olivier Poisson
Bibliographie :
dépliant multigraphié, association « Patrimoine seixois », texte Marie-Thérèse Azam
étude préalable, S.A.R.L.A. Le Pavillon Architectures, août 2000.
[1] Aujourdhui conservée en sûreté à l’église paroissiale



