Occitanie, Pyrénées-Orientales (66)
Serdinya-Joncet, Église Saint-Côme-et-Saint-Damien
Édifice

Église Saint-Côme-et-Saint-Damien. Il a été parlé récemment dans les Cahiers de la Sauvegarde de l’Art françaisd’une église toute proche de Serdinyà, Jujols[1], et dans ce Cahier 2009est aussi présentée la chapelle de Llar, dans la même contrée. Serdinyà est une assez vaste commune de la moyenne vallée de la Tet, le Conflent historique[2], ancien comté autonome réuni au comté de Cerdagne au Xes., lui-même acquis par la dynastie barcelonaise au début du XIIe. Le Conflent formait un archiprêtré du diocèse d’Elne.
Serdinyà, souvent écrit autrefois Secdinyà, est l’évolution d’un anthroponyme de la fin de l’Antiquité : Secundinianum, le domaine agricole d’un nommé Secundus. Le lieu est nommé dans des actes dès 950, 968, et l’église apparaît dans les sources en 1061, à l’occasion d’une restitution au comte de Cerdagne, Raymond, de la paroisse et de l’église de Serdinyà, détenue injustement par le vicomte Bernard. Rendue au comte, la paroisse est restée dans le domaine comtal, puis royal, jusqu’à la Révolution.
C’est du côté d’ubac, le versant à l’ombre de la vallée, opposé au solà, ensoleillé, où s’étage le village moderne, qu’est implantée l’église, encore jouxtée par le cimetière, non loin d’un « château », une demeure noble à tout le moins, et de quelques maisons agglomérées. Il est possible qu’il y ait eu une église en ce lieu bien avant la deuxième moitié du XIes., celle que l’on conserve ayant, comme tant d’autres, des allures de palimpseste avec ses nombreuses modifications et traces d’états successifs.
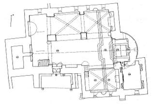
La silhouette de l’édifice est dominée par le clocher, une imposante et large tour de plan rectangulaire, au pied de laquelle s’étend le cimetière. L’église proprement dite est une construction d’origine romane, agrandie à l’époque moderne. La nef centrale de l’église était autrefois la nef unique de l’église médiévale, et l’abside donnant sur la place montre encore, à l’extérieur, le décor caractéristique de lésènes du premier art roman méridional. Cette abside est cependant surélevée d’une maçonnerie plus tardive, et en partie oblitérée par la sacristie construite au sud. L’église de Serdinyà a été, en effet, au cours du temps, augmentée dans toutes les directions, en hauteur comme en largeur, doublée, au nord, d’un long bas-côté de trois travées, au sud, d’une chapelle, de la sacristie et du porche.
Il est difficile d’assigner à toutes ces modifications des dates, car aucun document ne subsiste concernant l’église[3] : le seul point de repère un tant soit peu précis est la date de 1724, figurant sur le linteau de l’escalier menant à la chaire. Une étude sommaire d’archéologie du bâti, réalisée à l’occasion de la restauration en cours, n’a pu apporter que des éléments de chronologie relative, et encore pas toujours très clairement[4]. C’est plutôt par analogie avec les reconstructions d’églises de la fin du XVIIeet du XVIIIes., utilisant encore les traits de l’architecture médiévale, nombreuses en Conflent et en Roussillon à l’époque de la Contre-Réforme que l’on peut dater, au moins, l’intention et la méthode : en particulier la construction au nord d’un bas-côté voûté sur croisées d’ogives, et la chapelle pareillement voûtée formant faux transept au sud, d’ailleurs d’une construction plus soignée, et que sa contiguïté avec l’escalier de la chaire ménagé dans l’épaisseur du mur pourrait dater, donc, de 1724. On ne sera pas surpris, ici encore, de trouver des voûtes d’ogives à des dates aussi tardives[5].
Le vaisseau central apparaît aujourd’hui voûté d’un berceau brisé, mais les observations archéologiques de Richard Pellé semblent montrer que c’est au moins le deuxième voûtement de l’église, ayant succédé à un autre berceau, peut-être en plein cintre, sur doubleaux, dont quelques piédroits sont visibles. L’église romane primitive, celle du XIes., avait en effet déjà dû être surélevée pour être voûtée, si l’on observe à l’extérieur, du côté sud, le surcroît en pierre de taille du mur gouttereau, sommé d’une corniche. L’abside a perdu sa voûte en cul-de-four pour être surélevée aussi et devenir carrée à l’intérieur : peut-être est-il possible d’associer ces travaux à la construction du retable du maître-autel, œuvre de Lluís Generès, mis en place en 1661. Le porche, situé au sud, est une large voûte en plein cintre, abritant la porte d’entrée. La tradition indique que c’était sous cette voûte que se traitaient les affaires communales (le consulat apparaît à Serdinyà au XVesiècle). La porte elle-même est postérieure au Moyen Âge, mais difficile à dater, entre 1500 et 1700 : elle se compose de deux rouleaux juxtaposés, simplement moulurés ou chanfreinés, avec des pierres de réemploi. Seul indice, elle est sommée de trois blasons, ceux des importantes familles du lieu, les Serabou (une tête de vache), les Sirac (une mer ondée) et les Calvet (un calvaire), lesquelles dominent justement le territoire durant plusieurs siècles (le château voisin de l’église est la demeure des Serabou).
Le clocher est impressionnant et un peu énigmatique par sa masse inhabituelle. L’archéologie s’est révélée précieuse pour en comprendre les phases de construction, sans pouvoir conclure toutefois sur sa datation. Il semble bien que le mur est du clocher, établi à l’aplomb de la paroi occidentale de la nef principale, renferme au-dessus de celle-ci les restes d’un clocher-mur isolé[6], ce qui laisse penser que primitivement l’église n’était accolée d’aucune construction. En chronologie relative, on voit la tour bâtie postérieurement à l’église, sous la forme d’un accroissement en u, aux murs épais (1 mètre), venant chausser l’extrémité occidentale de l’édifice, mais qui, semble-t-il, n’en dépasse pas le faîtage : cette construction, qui détermine par son plan l’importance future de la tour, ne peut être un clocher. Une phase ultérieure réalise la construction de la tour avec l’essentiel de son élévation (20 mètres de hauteur), et deux nouveaux étages : le premier ne comprend que deux baies, disposées de part et d’autre de l’angle nord-ouest, le second six grandes ouvertures en plein cintre, aujourd’hui murées totalement ou partiellement. Ces ouvertures imposantes signalent sans doute l’ancien étage des cloches (aujourd’hui y sonnent deux cloches, l’une de 1733, l’autre de 1839). Au-dessus, un petit étage, dont il est difficile de savoir s’il appartient à la même campagne ou s’il est plus tardif, est aujourd’hui sommé de murets en forme de merlons et créneaux en briques rouges, qui datent de 1910. Á cette époque, on a supprimé le toit en lauzes à quatre pentes qui couvrait la tour pour le remplacer par une terrasse.
Une des richesses de l’église de Serdinyà est encore son mobilier, malgré les pertes qu’il a subies. On a déjà cité le retable du maître-autel, œuvre pré-baroque de Generès, le célèbre sculpteur du retable de Baixas, commandé par contrat le 10 avril 1661, réalisé un an plus tard et doré en 1664. Les autres retables ont été mis en place vers 1730, en particulier un retable du Christ (chapelle sud), et un retable du Rosaire (extrémité du bas-côté). Des œuvres médiévales sont à signaler, le seul panneau rescapé de l’ancien retable peint du XVes. du maître-autel, du XVes., les autres ayant été volés, et trois objets insignes provenant de l’église Notre-Dame de Marinyans, un hameau de la commune, démolie à la fin du XIXesiècle. À un crucifix roman du XIIIes., représentant le Christ sur la croix couronné, s’ajoute un retable de la fin du Moyen Âge représentant saint Vincent et saint Augustin, et des scènes de la vie de ce dernier. Enfin, ce patrimoine est complété par un superbe devant d’autel peint sur commission de Bernat Palasc, chanoine de Serrabona et prévôt de Marinyans (cette église appartenait en effet au célèbre prieuré augustin) en 1342, représentant la Crucifixion, dans un style délicat et raffiné.
Cette église, qui avait souffert aussi bien de vétusté (les impressionnantes lézardes du clocher faisant pour ainsi dire partie du paysage) que de bien des déprédations, de travaux inutiles ou mal entendus, de vols répétés, est depuis plusieurs années l’objet d’une restauration progressive et soigneuse, sous la conduite de S. Foillard et S. d’Arthuys, architectes.
Pour la tranche concernant les toitures, la confortation du clocher, le recueil des eaux pluviales, la Sauvegarde de l’Art français a apporté 12 000 € en 2007.
Olivier Poisson
Bibliographie :
- Abbé J. Giralt, Notice historique sur la commune de Serdinya et Les Horts[extrait du XXXVIIeBulletin de la Société agricole, scientifique et littéraire des Pyrénées-Orientales], Perpignan, 1896, 54 p.
- Abbé A. Cazes, St-Côme et St-Damien de Serdinyà, Prades, 1974, 27 p., et [1982], 32 p.
- Sagnes, J. (dir.), Le Pays catalan, Pau, SNERD, 1985 [«Serdinyà», par P. Ponsich, t. II, p. 1056].
- Catalunya romànica, VII, Cerdanya Conflent, Barcelona, 1995 [«Serdinyà», p. 509].
- Mallet, Églises oubliées du Roussillon, Montpellier, 2003, p.224.
- Poisson, Promenades en Roussillon roman, Paris, 2003, p. 97.
Notes:
[1]Saint-Julien-Sainte-Baselisse de Jujols, CSAF, 2008, p.77-78.
[2]Autres églises du Conflent dans les Cahiers : Saint-André de Baillestavy, 1, 1979, p.54 ; Saint-Jean de Seners à Estoher, 5, 1983, p.214-215 ; La Trinité de Prats Balaguer à Fontpédrouse, 6, 1984, p. 121 ; Saint-Vincent d’Eus, 20, 2007 p. 62-66 ; Saint-Jacques de Nyer, ,12, 1999, p. 124-126 ;.Saint-Jean de Sansa, 3, 1981, p.258-259 ; Sainte-Croix de Thorrent à Sahorre, 8 , 1995, p.177-178.
[3]Il faut malheureusement faire confiance à ce sujet à l’abbé Giralt (1851-1938), natif de Serdinyà et historien scrupuleux de la micro-région du Conflent à la fin du XIXesiècle.
[4]Pellé, R., L’église Saint-Côme et Saint-Damien à Serdinya-Joncet (66), INRAP, 2005, doc. multigr., 84 p. [arrêté de prescription n°04/1524, dossier INRAP n°2004/1671].



