Pays de la Loire, Mayenne (53)
Argentré, Chapelle Sainte-Anne
Édifice


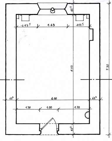
CHAPELLE Sainte-Anne, hameau de Vaucenay. Dominant la vallée de la Jouanne, la chapelle et le manoir du domaine de Vaucenay s’élèvent à 3 km d’Argentré. Ils se trouvaient au XVIe s. dans la mouvance du château de Grenusse. La chapelle est un édifice rectangulaire de près de 7,50 m de long hors-œuvre et de 5,25 m de large. Les murs latéraux, hauts d’environ 3 m, sont aveugles. Le mur-pignon occidental est percé du seul accès à l’édifice, une porte étroite, légèrement désaxée vers le nord. Son encadrement appareillé est adouci vers l’extérieur d’une mouluration continue en double doucine, sur les piédroits, les corbeaux et le linteau. Un oculus, largement ébrasé vers l’intérieur, a été ouvert dans le pignon. À l’autre extrémité de la chapelle, le chevet plat est percé d’une grande baie à deux lancettes terminées en accolade et redentées d’un trilobe épointé sous un soufflet. Ce remplage flamboyant permet de dater la chapelle du XVe ou du début du XVIe siècle. Les limites de l’enduit recouvrant à l’intérieur le petit appareil irrégulier guidèrent, par leur tracé courbe, la restitution de la charpente du lambris qui couvrait la chapelle et qui fut anéantie avec la toiture et le clocheton d’ardoises par les intempéries en 1996. La chapelle conserve des témoignages de qualité du mobilier liturgique, une piscine à décor peint et un bénitier en marbre du XVIIIe s., ainsi qu’un groupe sculpté de l’Éducation de la Vierge, peut-être du XVIe siècle. La Sauvegarde de l’Art français a accordé 40 000 F en 1998 pour la reprise des têtes de murs des longs côtés et des rampants des pignons et pour la restitution de la charpente et de la couverture d’ardoises, travaux indispensables à la survie de cet attachant édifice.
D.S.


