Grand Est, Aube (10)
Arrentières, Église Saint-Jacques
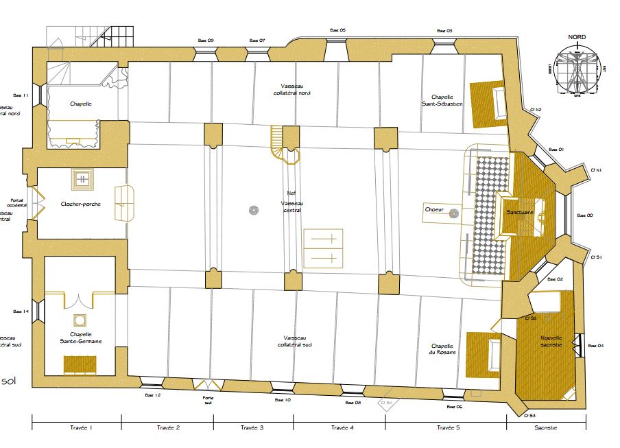
Édifice


De l’édifice originel, il ne reste que les piliers et une partie des bras du transept. Le chœur d’alors n’existe plus, remplacé par la construction au début du XVIIe siècle d’un chœur et de chapelles homogènes de conception gothique.
Au XVIIIe siècle et au XIXe siècle appartiennent en effet la conception de tout le reste de l’édifice même si la réalisation semble s’être faite en 2 campagnes, la nef construite en moellons de pierre enduits, le reste de l’édifice ensuite construit en moellon avec soubassement en pierre dure. La partie gothique de l’église est conçue sur la base d’une église en croix latine comme de nombreuses autres églises auboises contemporaines.
L’église Saint Saint-Jacques d’Arrentières offre le grand intérêt de présenter des éléments des différentes périodes d’évolution de l’édifice, son origine du XIIe siècle, sa nef et son chœur du XVIIIe siècle, son clocher porche et ses chapelles du début du XIXe siècle.
C’est au XIXe siècle que l’édifice va connaître ses transformations les plus importantes avec la création du clocher et la modification de la nef. Avant cette période de travaux, l’édifice du XVe siècle présentait un plan en forme de croix latine dont subsiste peu d’élément aujourd’hui. L’église dédiée à Saint Jacques, autrefois du diocèse de Langres et du doyenné de Bar-sur-Aube, était le siège d’une cure à la collation des Chevaliers de Malte.



