Normandie, Orne (61)
Belfonds, Église Saint-Latuin de Cléray
Édifice


C’est à Cléray que Latuin, évangélisateur de la région au ve s. et premier évêque de Séez, se serait réfugié pour se protéger de la vindicte de la femme du gouverneur de Sées, jalouse de ses miracles. Il se serait établi près d’une fontaine pour y édifier une cellule et un oratoire. L’église occupe aujourd’hui l’emplacement présumé de sa tombe.
Isolée au sein d’un véritable écrin de verdure, en lisière de la forêt d’Écouves, l’église est entourée de son enclos paroissial où se dresse une belle croix hosannière ; elle jouxte la fontaine Saint-Lin réputée pour guérir les maladies de peau, comme l’attestent les vêtements laissés sur les grilles. C’est l’ensemble de ce lieu de pèlerinage, toujours fréquenté, qui a été inscrit au titre des monuments historiques.
Si l’église est mentionnée dès 1088 dans une charte de l’abbaye Saint-Martin de Sées, elle a été profondément modifiée et a risqué de disparaître lors de la fusion des communes de Cléray et Belfonds en 1839. De cette première église subsiste à l’intérieur un chapiteau à crochets sur colonne soutenant deux arcs.
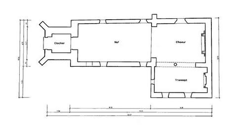
D’une grande simplicité, l’église offre une silhouette originale. Elle est composée d’une nef rectangulaire et d’un chœur à chevet plat du xve siècle. Sa charpente en bois est couverte de tuiles. La nef et la chapelle secondaire sont des ajouts des xvie et xviie siècles. Les discontinuités des élévations extérieures et les différents niveaux de toitures témoignent de ces apports successifs. Le clocher-porche du xviiie s., couvert d’une toiture en bâtière, s’ouvre par un portail en plein cintre. Au-dessus de celui-ci, une niche devait abriter une statue de saint Latuin aujourd’hui disparue. Au chevet, de curieuses gravures représentant des mains, des nœuds ou des croix sont difficilement datables.
La modestie du mobilier répond à celle de l’architecture. Sous les voûtes en merrains ne subsistent que le maître-autel en bois peint avec un retable simple à fronton brisé, amorti de pots à feu, datant du xixe s., le retable de la chapelle seigneuriale, en pierre, du xviiie s., dont les deux colonnes à chapiteaux corinthiens supportent un fronton cintré, des fonts baptismaux en pierre du xvie s. et plusieurs dalles funéraires.
Très longtemps négligée, l’église de Cléray doit son salut à la mobilisation d’une association créée il y a près de trente ans pour faire revivre ce lieu de pèlerinage, berceau du diocèse. En 2013, la Sauvegarde de l’Art français a accordé une aide de 17 000 € pour la restauration du gros œuvre.
Servanne Desmoulins-Hémery



