Auvergne-Rhône-Alpes, Ain (01)
Billiat, Église Saint-Pierre
Édifice


Le village de Billiat, qui devait son origine à une implantation gallo-romaine, devint, au début du XIVe s., un petit bourg fortifié doté d’une charte de franchise octroyée par le comte de Savoie en 1324. L’église Saint-Pierre, située au nord de la petite ville, près du château et des murailles, est citée dès 1198. Elle dépendait alors de l’abbaye de Nantua et de son prieuré tout proche de Villes-en-Michaille. Non loin de l’église s’élevait le château, qui a disparu depuis, où Claudine de Brosse, veuve du duc Philippe de Savoie, conserva le Saint-Suaire de 1502 à 1504. L’implantation de l’édifice paraît remonter au moins à l’époque romane, mais il est difficile de dater les différents éléments et en particulier les murs en raison des enduits. Les textes anciens sont laconiques sur les modifications apportées à l’édifice. On sait seulement que des chapelles latérales furent construites à partir du début du XVème s. : on en compte une en 1445, trois en 1482 et quatre en 1605. La fondation de ces chapelles était liée le plus souvent aux épidémies, comme en témoignent les vocables : Saint-Sébastien, Sainte-Croix, les Cinq-Plaies, Notre-Dame-de-Pitié, Saint-Antoine. Il n’en subsiste plus qu’une ; il se pourrait que les autres aient disparu à la suite de l’incendie qui, le 21 octobre 1771, ravagea le village et détruisit au moins la charpente du clocher.
Au XIXème s., l’édifice fut assez peu transformé : la partie supérieure du clocher, arasée sous la Révolution, fut rebâtie avec une flèche en égout, et, en 1835, on reconstruisit la façade ouest en supprimant au passage l’auvent qui protégeait l’ancienne encrée.
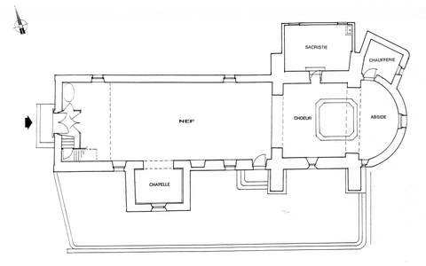
La nef voûtée en berceau précède une travée de chœur romane, audessus de laquelle s’élève le clocher, et une abside semi-circulaire. A l’extérieur, l’un des contreforts de la travée de chœur porte, gravée en chiffres gothiques, la date de 1523.
La seule chapelle subsistance s’ouvre sur le flanc sud de la nef par un arc en tiers-point. Elle est voûtée en berceau ; une petite fenêtre gothique à remplage l’éclaire au sud.
Une première tranche de travaux a été réalisée pour la mise hors d’eau de l’édifice et la restauration du clocher. La Sauvegarde de l’Art Français a participé à ces travaux pour un montant de 100 000 F en 1997.
P.C.



