Nouvelle-Aquitaine, Gironde (33)
Camblanes-et-Meynac, Église Saint-Pantaléon
Édifice


Située sur les coteaux qui dominent la Garonne, à quelques kilomètres en amont de Bordeaux, l’église Saint-Pantaléon de Meynac trouve son origine dans une fondation du XIème s.
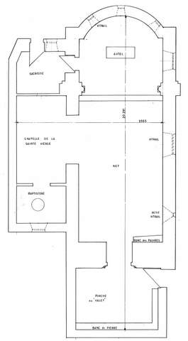
Son plan irrégulier laisse apparaître les différentes initiatives qui ont été prises pour lui donner sa forme actuelle : la nef comporte un vaisseau unique séparé du chœur arrondi par deux colonnes engagées sur dosseret. Elle a été amplifiée au nord par l’adjonction d’une chapelle – elle-même prolongée à l’ouest par un baptistère – sur laquelle elle ouvre par un arc en anse de panier porté par deux pilastres. Le chœur communique par une porte percée dans son mur nord avec une petite sacristie. La façade au clocher formé d’un mur en pignon dans lequel sont ménagées deux baies, l’une doublée à l’est d’un abat-sons, est précédée à l’ouest par un auvent aux murs maçonnés n’ouvrant sur l’extérieur que par une petite porte percée dans son mur sud. Saint-Pantaléon est éclairée principalement par deux grandes baies ouvertes dans son mur sud, l’une en arc brisé donne dans la nef, l’autre en plein cintre donne dans le chœur. Trois petites baies percées dans l’abside, au linteau échancré et à l’appui ébrasé vers le dedans, viennent compléter l’éclairage. Les murs sont de petit appareil couvert de crépi à l’exception d’une chaîne au moins de moyen appareil et des parties hautes de l’abside qui, rythmées à l’extérieur par trois contreforts, sont pour l’essentiel de belles pierres de taille. L’église est couverte de charpente à entraits et poinçons apparents ; la partie occidentale de la nef est surmontée d’une tribune en bois portée par deux corbeaux. Il n’y a guère de mobilier, à l’exception d’une cuve baptismale cylindrique en pierre de la facture la plus simple et d’un bénitier sans doute fait à partir d’un ancien chapiteau à godrons avec une double baguette pour abaque. Les chapiteaux qui ornent les colonnes engagées sont l’un à décor animalier, l’autre à décor végétal. Des fragments d’une peinture murale représentant la Pentecôte subsistent dans une partie de l’église. La Sauvegarde de l’Art Français a accordé 25 000 F en 1990 pour la réfection de maçonneries extérieures.
J.-Ph. D



