Centre-Val de Loire, Indre (36)
Champenoise La, Église Notre-Dame
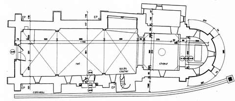
Édifice


L’église paroissiale, dédiée à la Vierge, dépendait autrefois de l’abbaye Notre-Dame d’Issoudun. L’édifice roman est conservé dans sa presque totalité. La nef unique n’était sans doute pas voûtée de pierre à l’origine. Le carré d’un transept, dont les bras n’ont peut-être pas été réalisés, précède un chœur en hémicycle. Le chevet est percé de trois fenêtres en plein cintre, soulignées par un cordon qui se poursuit autour, séparant son élévation en deux : sur la partie inférieure deux contreforts plats, puis, au-dessus, deux colonnes engagées avec bases et chapiteaux qui supportent une corniche à modillons sculptés.
Un portail du XIIe s. est ouvert sur le côté sud de la nef dans un avant-corps appareillé ; il est encadré de colonnettes à bases et chapiteaux à godrons sous tailloirs denticulés ; un cordon de billettes souligne son arc plein cintre à double révolution.
Sur la façade occidentale, sous une longue fenêtre en plein cintre, on a aménagé au XIIIe s. une porte de style gothique sans tympan dont la triple archivolte en arc brisé retombe sur un ébrasement à triples colonnettes à chapiteaux à crochets. C’est également à l’époque du gothique, mais d’un gothique plus tardif, fin du XVe ou XVIe s., qu’on a couvert la nef de trois voûtes sur croisées d’ogives, doubleaux et formerets. Les colonnes engagées qui les supportent ont des bases prismatiques et des chapiteaux ornés de masques. Les clefs de voûte étoilées portent des écus armoriés. Les contreforts extérieurs ont été élevés en même temps pour l’équilibre de cette charge nouvelle, sans rapport avec les fenêtres romanes primitives.
Dans l’angle nord-est de la nef, une petite chapelle sans grande profondeur a été ménagée au XVe s., sorte d’enfeu sous un arc en plein cintre. Le carré du transept a conservé sa coupole sur petites trompes, percée en son centre pour les cordes des cloches et portée par quatre arcades en tiers-point retombant sur des impostes allégées de cavets. Des restaurations tardives ont porté sur les corniches et modillons de la nef et modifié l’étage supérieur du clocher.
La Sauvegarde de l’Art français a accordé 16 000 € en 2003 pour la consolidation et la restauration des voûtes de la nef.
Ph. Ch.


