Bourgogne-Franche-Comté, Saône-et-Loire (71)
Chânes, Église Saint-Pierre-et-Saint-Paul
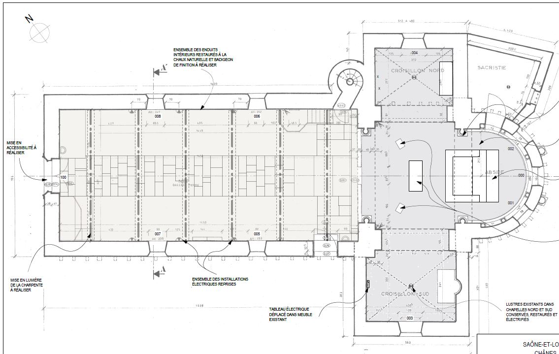
Édifice


Chânes est un village de Saône et Loire situé sur les premières hauteurs du Beaujolais. Son église a vraisemblablement été reconstruite sur une ancienne église du 9ème siècle. Sa façade et sa nef sont datées du XIème tandis que le clocher et le chœur du milieu du XIIème. La façade en pignon est formée par un mur droit sans contreforts, décorée d’arcatures lombardes en plein cintre et soulignée d’une bande horizontale dit « en dents de scie » ou « dents de loup »: ornementation caractéristique des églises du premier art roman en Mâconnais. Sur le flan sud, sont visibles des traces anciennes d’une porte et de plusieurs fenêtres romanes. On distingue également les restes de la litre : bande de deuil crépie et peinte en noir tout autour de la nef.
Le clocher octogonal est à trois étages et comporte quatre pans et vingt-huit colonnettes.
A l’intérieur, la nef unique est éclairée de chaque côté par deux fenêtres élargies.
La chapelle à gauche de la travée a été élevée au milieu du XVIIème siècle. Anne du Mont de Lamartine (1627-1709) a fait bâtir la chapelle de la Sainte Vierge annexée à l’église.
Après 1813: construction de la chapelle Sud et de la sacristie.
C’est au milieu du XIXème siècle que la tour du clocher (les deux étages et la flèche) a été achevée. En 1847, la couverture en laves a été remplacée par des tuiles plates, avec exhaussement du plafond de la nef qui se trouvait en contrebas des arcs du choeur. En 1924, les tuiles plates ont été de nouveau remplacées par des tuiles mécaniques. En 2008, la nef a retrouvé sa couverture en lave et le plafond de 1847 a été démonté.
Chânes était fortifiée dès la plus haute antiquité (dépendance de l’abbaye de Cluny, puis du chapitre de Saint-Vincent de Mâcon). En 1601, son château appartenait à messire Jean de La Chambre puis à Louis Charrier de la Roche, seigneur de Crêches et de Chânes. La construction de ce château a eu lieu au Xe siècle. Autrefois, le hameau du « Dracé les Ollières » appartenait à la commune de Chânes, ce dernier est désormais rattaché à la commune de Crêches-sur-Saône depuis 1805 (décret napoléonien). Ce décret semble faire suite à de nombreuses disputes et tractations entre les deux villages concernant des droits de passage et les propriétés de l’un ou l’autre.
La dénomination de Chânes a fréquemment évolué au cours de l’Histoire passant de Chesne à Chasne pour enfin arriver à Chânes.









