Pays de la Loire, Maine-et-Loire (49)
Chartrené, Église Saint-Maurice
Édifice


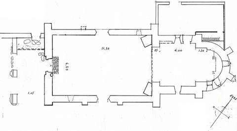
Il existait déjà une église à Chartrené au milieu du VIIème s. fondée selon la tradition par saint Mainbœuf, évêque d’Angers. La terre de Chartrené comptait parmi les possessions des comtes d’Anjou et l’on sait qu’à la fin du Xème s., Foulque Nerra céda la terre de Chartrené au seigneur de Beaupréau. Le fils de ce dernier, seigneur de Vieil-Baugé, la donna à son tour vers 1016-1027 à l’abbaye Saint-Aubin d’Angers, laquelle y installa un prieuré. L’église de Chartrené édifiée au XIIème s. et placée sous le vocable de saint Maurice succède ainsi à un édifice plus ancien. De dimensions modestes, elle a conservé sa configuration architecturale romane. Les travaux de la première moitié du XVIIIème s . ont porté sur la création de nouvelles baies, sur des réaménagements intérieurs et sur la reconstruction de l’étage du clocher et de la flèche. L’édifice construit en pierre de taille de tuffeau à assises régulières, couvert en ardoise, comprend une nef rectangulaire, à charpente lambrissée, un chœur carré voûté en berceau plein cintre et une abside semi-circulaire dotée d’un cul-de-four légèrement plus bas que le berceau du chœur. Le clocher s’élève au-dessus de la travée carrée du chœur. La réussite de cette architecture réside dans la juxtaposition de petits volumes harmonieux, amplifiés par l’articulation simple du chœur et de l’abside. La nef de 11,30 m de long sur 6,80 m de large, couverte d’un toit à deux versants, possède des murs goutterots scandés par des contreforts peu saillants. L’éclairement de la nef provient des deux grandes baies nord et sud qui se sont substituées aux étroites petites baies romanes alors obturées. Dans le mur sud de la nef s’ouvrait autrefois une porte latérale en plein cintre, dont certains claveaux montrent encore un décor sculpté géométrique d’étoiles. Une corniche à modillons couronne les murs. Celle de l’élévation sud se caractérise par une modénature en double talon droit et par l’ iconographie des modillon s, à motifs ornementaux ou figures grimaçantes. Le mur pignon occidental conserve son élévation romane. Un porche en charpente disposé en appentis vient abriter l’accès principal à l’église qui s’effectue par un petit portail roman. Celui-ci présente une voussure plein cintre appareillée, avec une modénature en tore de même section que les colonnettes avec lesquelles elle est en continuité. Cette paire de colonnettes est surmontée de petits chapiteaux ornés de feuilles d’acanthe extrêmement rustiques. Un décor de chevrons anime l’archivolte. La nef reçoit également de la lumière par l’oculus ouvert dans le mur pignon et donc un claveau porte la dace 1734. Ce percement se superpose à une baie romane attestée par la modénature à motifs de chevrons de l’archivolte. L’étage du clocher dace du XVIIIème s. et le clocher s’achève par une flèche octogonale à égout retroussé de plan carré. L’abside semi-circulaire conserve apparences deux baies romanes et possède à son niveau supérieur des corbeaux cubiques soutenant une corniche à motif de cannage. A l’intérieur, en fond d’abside, se dresse un intéressant retable du XVIIème s. en pierre tandis que la nef accueille deux autels latéraux du XVIIIème s. dotés de tombeaux fortement galbés. La petite église de Chartrené construite au XIIème s. se signale par la qualité de ses proportions, la simplicité dans l’agencement des masses architecturales. Les remaniements apportés au XVIIIème s. n’ont pas altéré les volumes et couvrements romans. Des travaux de drainage et de consolidation du mur goutterot sud de la nef ont été effectués. La Sauvegarde de l’Art Français a octroyé une subvention de 15 000 F en 1995.


