Hauts-de-France, Somme (80)
Chepy, Église Saint-Pierre-et-Saint-Paul
Édifice


L’église Saint-Pierre-et-Saint-Paul fut construite au début du XVIe s. par un maçon du nom de François Hermel, mort en 1557, comme le rappelle une plaque scellée sur le mur sud de la nef. Elle succéderait à une chapelle fondée près du château seigneurial vers le XIe siècle.
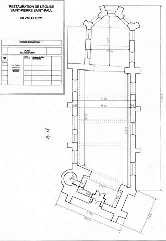
L’église actuelle est construite en briques avec chaînages d’angle en pierre pour la nef et en silex et craie pour le chœur. Elle comporte une nef à vaisseau unique éclairée latéralement par trois fenêtres à meneaux. Le chœur, plus étroit, se place dans le prolongement du flanc sud de la nef et se termine par une abside à trois pans.
Fait remarquable, le clocher-porche, à l’ouest, est très nettement désaxé par rapport à la nef. Il est en effet implanté suivant un axe tourné d’une trentaine de degrés vers le nord. Son plan barlong pourrait signaler une filiation lointaine avec les tours de la cathédrale d’Amiens. De profonds contreforts à ressauts épaulent le clocher jusqu’à mi-hauteur du beffroi, percé d’une baie par côté. Une tourelle d’escalier en vis sur le flanc nord permet d’accéder au sommet de la tour. Un haut comble d’ardoises coiffe la silhouette élancée de la construction.
L’église conserve des fragments de vitraux du XVIe siècle dans le tympan de deux baies, notamment une Vierge de Pitié et une Résurrection du Christ qu’accompagnent deux paires d’anges.
En 2004, la Sauvegarde de l’Art français a accordé une aide de 10 000 € pour des travaux de consolidation du clocher et des maçonneries sur les façades, ainsi que pour l’évacuation des eaux de pluie, des reprises de charpente et de couverture.
Dany Sandron


