Occitanie, Pyrénées-Orientales (66)
Corbère, Église Saint-Pierre du Château
Édifice


L’emplacement du village de Corbera a connu une longue évolution. Il a, en effet, accompli en plusieurs étapes une véritable « translation », du sud au nord, entre le Moyen Age et le XIXe siècle. Les Cahiers de la Sauvegarde de l’Art français ont déjà présenté, en 2006, la plus ancienne des trois églises qui jalonnent ce parcours, l’église romane Sant Pere del Bosc[1].
On connaît en effet des citations du lieu dès le Xe s. – il s’agit de donations d’alleus à l’abbaye de Saint-Michel de Cuxa en 953, 957, 968[2] – sans que l’’on puisse précisément pour cette époque connaître la forme et l’emplacement de ces implantations humaines. Il est probable que ce terroir était occupé de façon diffuse, avec une église Sant Pere (Saint-Pierre), qui ne faisait pas partie d’une agglomération. Avec l’instauration de la féodalité, le château de Corbère, dont le site extraordinairement favorable permettait le contrôle du secteur est édifié (peut-être au XIIe s.) et donna son nom à une famille locale. Il passa ensuite à divers lignages nord-catalans, en dernier lieu les de Vilar d’Oms qui le conserveront jusqu’à la Révolution. Il existe toujours, bien que fortement restauré, sur son site primitif. Le village de Corbère vint alors se regrouper sous le château, à la différence de nombre de villages roussillonnais qui avaient pour origine une structure ecclésiale, la cellera, ici absente. C’est un peu le même cas qu’Eus, déjà présenté dans les Cahiers[3]. A quelques dizaines de mètres du château fut élevée, à une époque inconnue, une chapelle castrale, dédiée à la Vierge[4]. Sa première mention dans les textes remonte à 1346[5]. Alors que le mouvement vers le nord du village a déjà commencé, à l’époque moderne, par le développement d’un second noyau appelé Els Cortals (c’est le village actuel, ou Corbera del Mig), cette chapelle est appropriée comme église paroissiale (elle adopte alors la dédicace à saint Pierre) puis reconstruite : c’est l’édifice objet de cette notice. La construction, en 1851, d’une nouvelle église Saint-Pierre (la troisième) au village d’Els Cortals, la reléguera dans un semi-abandon. Le village sous le château (Corbera de Dalt), lui, est définitivement abandonné au milieu du XXe s. et seules en subsistent des ruines.
Au sommet de l’éminence qui porte le château de Corbère, l’église Saint-Pierre du château (ainsi nommée pour la distinguer des autres) jouit d’une situation extraordinaire au point de vue du paysage. De là, comme de la forteresse voisine, la vue peut embrasser le massif du Canigou et toute la plaine du Roussillon, avec la moyenne vallée de la Tet, ou Riberal, d’Ille à Millas. Les ruines du village déserté, sur le flanc sud de la colline, et, plus bas, l’église maintenant restaurée de Sant Pere del Bosc, complètent le site, lieu idéal pour une promenade d’été.
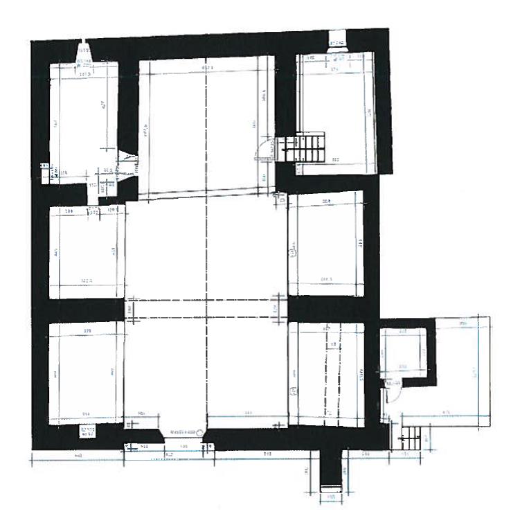
L’église Saint-Pierre du château est une église d’environ 20 mètres de long sur 8 de large – pour la nef et le chevet –, flanquée de quatre chapelles assez profondes. Elle est orientée vers le nord, car la construction remploie en fait l’édifice précédent qu’elle a « retourné » pour en conserver le maximum, par économie, selon une technique assez courante et dont existent d’autres exemples [6] : l’ancienne église constitue en fait la première travée de la nouvelle nef construite perpendiculairement à la précédente, dont le sanctuaire, à droite, forme désormais la première chapelle côté est et le fond de la nef la première du côté ouest, à gauche. Cela nous permet d’approcher la structure de cet édifice précédent, une nef unique voûtée en berceau brisé, à chevet plat. Toute la partie centrale de l’édifice a disparu, pour laisser place à la première travée de la nouvelle église, plus élevée et couverte en charpente sur arcs diaphragmes. L’ancienne chapelle ainsi retournée ne devait pas être, cependant, l’édifice intact du Moyen Age : à l’angle extérieur sud-ouest, appareillé en blocs de marbre de remploi, on peut lire la date : 1598. Autre élément, jusqu’ici non remarqué : le parement extérieur du mur de la seconde chapelle, côté est, ne correspond pas à l’alignement intérieur, mais se trouve placé en biais (épaisseur importante), et supporte à l’angle N-E les vestiges d’un cul-de-lampe en briques propre à porter une échauguette : y avait-il à cet emplacement l’amorce ou le vestige d’un ouvrage fortifié moderne, auquel la nouvelle église vient aussi s’adosser ?
Il est à noter que l’ancienne chapelle était en mauvais état : en 1616, on souligne le besoin de l’agrandir mais aussi de la réparer, par crainte d’une ruine rapide. Ce n’est qu’en 1661 cependant, l’évêque usant de l’interdit et de la menace de l’excommunication pour y contraindre les paroissiens, que l’entreprise de bâtir la nouvelle église est lancée. Le chantier, bien que témoignant d’une économie évidente, prend encore vingt ans : la première pierre est posée le 9 novembre 1664 et la bénédiction solennelle de l’édifice achevé a lieu le 21 décembre 1683[7]. La construction est faite dans une maçonnerie des plus ordinaires, en moellons de schiste prélevés sur place. Aux angles, à l’intérieur comme à l’extérieur, ainsi qu’à la baie de la sacristie, on remarque l’usage de blocs de marbre de remploi, qui doivent provenir de l’édifice antérieure. L’église présente un chevet plat, dont le mur plein n’a jamais comporté de baie d’axe : dès sa conception, elle est faote pour un retable – et même plusieurs, un dans chaque chapelle. Dans la première à gauche en entrant, subsistent les vestiges d’un retable en gypserie que l’on peut penser contemporain des travaux de réfection : il s’agit d’une scène de la Crucifixion, avec la Vierge et saint Jean, servant de fond à un crucifix en bois, amovible, susceptible d’être porté en procession.
Nous connaissons le nom de l’auteur de l’imposant retable sculpté et doré qui garnit toujours le sanctuaire principal : il s’agit de Lluís Ribera, un sculpteur de Perpignan actif dans le premier quart du XVIIIe s., qui avait été l’apprenti de Lluís Generès[8], autre sculpteur célèbre, auteur entre autres de l’imposant retable de Baixas. En 1704, lors d’une délibération du collège des peintres, doreurs et sculpteurs de Perpignan, Ribera signale, en réponse à des critiques contre les artistes qui demandent des prix trop bas (ce qui semble être son cas), qu’il s’est déjà engagé à faire le retable de Corbère et qu’il n’y renoncera pas[9]. L’œuvre toujours présente doit donc dater des années suivantes. C’est une composition qui, quoique régulière avec ses trois travées et ses deux registres, est pleinement baroque par l’accumulation des ornements et le mouvement ascendant produit par l’inclinaison des ailes et la surélévation de la travée centrale. La niche principale est occupée par la figure du Prince des Apôtres, avec sa croix renversée. Au second registre, les colonnes séparant les niches sont remplacées par les statues des quatre Docteurs de l’Église. A la prédelle, la Vocation de saint Pierre et l’apparition du Christ ressuscité aux disciples sont traitées en bas-relief, de part et d’autre d’un panneau sculpté ovale pouvant coulisser pour l’exposition du Saint-Sacrement. La dorure et la polychromie sont très abondantes, mais seule celle du soubassement et du premier registre est du XVIIIee siècle. Celle de la partie supérieure a été complétée au XIXe siècle. Il faut dire, d’après de nombreux prix-faits conservés, que la dorure d’un tel meuble coûtait entre une fois et une fois et demie le prix de sa construction et de sa sculpture… Ce retable a été restauré en 1989[10], mais malheureusement le soin de l’intérieur de l’édifice n’a pas été poursuivi par la commune, jusqu’aux travaux récents. Quand on se réfère à la documentation disponible, on ne peut que constater les pertes importantes subies par le mobilier de cette église au cours du XXe s., qu’il s’agisse d’un retable de la Vierge du Rosaire dont il ne reste que la statue centrale et des fragments épars, d’un retable à panneaux peints (sans doute hérité de l’ancienne église) du XVIe s., qui n’a jamais été restitué par un restaurateur à qui il avait été imprudemment confié, d’un tableau représentant saint Pierre, saint Paul et sainte Pétronille, invraisemblablement repeint (années 2000 ?) sous prétexte de restauration. Le retable de saint Ildefonse, bien que déposé, est conservé et (semble-t-il) disponible pour une restauration.
Des restes de peintures murales, dans la chapelle du côté est qui était le sanctuaire de l’ancienne église, ou dans sa voisine au nord, ont été dégagées et protégées par des facings provisoires de conservation. Il faudrait vraiment poursuivre sans tarder la remise en état intérieure de cette église, où l’on remarquera d’autres éléments intéressants : la cadireta (brancard processionnel de la Vierge de l’Assomption), la table de communion à balustres, un bénitier sculpté en marbre, daté 1681, le banc de la fabrique, daté 1719, etc.
La campagne de travaux réalisée en 2015-2016 par la commune a surtout concerné la remise en état des toitures et la consolidation d’urgence des restes de peintures murales, avec les enduits d’une chapelle. Sur un budget d’ensemble de près de 100 000 €, la Sauvegarde de l’Art français a apporté 15 000 € en 2015.
Olivier Poisson
Bibliographie :
P. Ponsich, Rossellò, Vallespir, Conflent, Capcir, Cerdanya, Fenolledès… Limites historiques et répertoire toponymique des lieux habités de ces anciens pays, Prades, 1980 (coll. Terra nostra, n° 37).
J. Sagnes (dir.), Le Pays catalan, Pau, 1985, 2 vol. (répertoire des communes : t. II, p. 873-1096).
O. Poisson, « La résurrection d’une église », D’Ille et d’ailleurs, n° 12, 1988, p. 54-55.
J. Tosti, « D’une église à l’autre », D’Ille et d’ailleurs, n° 12, 1988, p. 49-56.
A. Charrett-Dykes, « Quant la iglesia se va agrandir » : architecture paroissiale dans le diocèse d’Elne aux xviie et xviiie siècles, thèse de doctorat, Université de Perpignan, 2014, 2 vol., 323 et 218 p.
Notes :
[1] Cahiers de la Sauvegarde de l’Art français, 19, 2006, p. 54-56.
[2] Ponsich 1980, p. 36 ; Sagnes 1985, p. 920-921.
[3] Cahiers de la Sauvegarde de l’Art français, 20, 2007, p. 62-65.
[4] A l’époque moderne, avant sa reconstruction, elle est désignée sous le nom de Nostra Senyora de la Pera, « Notre-Dame de la Poire » sans doute par allusion à une statue où la Vierge ou l’Enfant tenaient un tel fruit.
[5] Cazes 1990, p.109.
[6] C’est le cas dans les Pyrénées-Orientales des églises de Catllar et de Campoussy et de l’église de Tordères, décrite dans les Cahiers de la Sauvegarde de l’Art français, 26, 2017, p. 154-156.
[7] Tosti 1988, p. 50 ; Charrett-Dykes 2014, vol. 2, p. 38.
[8] E. Cortade, « Retables baroques du Roussillon », Connaissance du Roussillon, I, 1973, p. 202.
[9] Tosti 1988, p. 52.
[10] Poisson 1988.







