Grand Est, Aube (10)
Dierrey-Saint-Pierre, Église Saint-Pierre-ès-Liens
Édifice


HISTOIRE
L’église a été reconstruite une première fois au XVIe siècle sur un édifice dont on sait peu de chose. L’abbaye de Foissy est décimateur pour 3/4 des travaux du choeur, du sanctuaire et des chapelles collatérales. Pour le reste, les abbayes de Montier-la-Celle et de Vauluisant se partagent chacune le 1/8e des travaux.
Des travaux sont menés en 1652 et 1727, et la façade Ouest semble avoir été reconstruite en 1636. En 1733, la foudre tombe sur le clocher et endommage la charpente et la couverture. Elle « aurait crevé la voûte qui est au-dessous du clocher et aurait ensuite fracassé tout le bas d’un des piliers qui soutient la voûte jusque l’avoir ébranlé dans ses fondations ».
Au dernier tiers du XVIIIe siècle, cet édifice va subir de grandes transformations qui vont le dénaturer. En 1770, l’église menace ruine: le pourtour des murs intérieurs et extérieurs des transepts et du chevet ainsi que les piliers butants et la charpente du choeur sont très dégradés. Le pilier butant à droite du portail est rempiété, on refait la charpente à l’identique de celle qui était adossée contre le mur de l’église au-dessus du portail occidental. Cette charpente est certainement contemporaine de la reconstruction de la porte en 1636. Une tourelle accolée à l’extérieur à l’angle du mur Nord de la nef est construite.
En 1874-1877, le mur du côté Nord s’écarte de plus en plus et la voûte de la petite nef tend à s’affaisser. Des travaux de consolidation de la façade Nord sont réalisés: reprise des socles en maçonnerie et du contrefort extérieur soutenant la façade et l’arc doubleau
DESCRIPTION
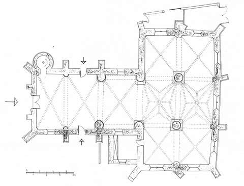
L’église Saint-Pierre-ès-Liens se caractérise par un transept de deux travées, particularité de la Champagne méridionale à cette époque. On compte environ 70 édifices possédant des transepts doublés dans le département. L’église n’a pas d’abside.
Son portail est daté du XVIIe siècle, la nef de la fin du XVIIIe siècle, le transept du XVIIe siècle, le choeur et chapelles du début du XVIIIe siècle, le tout construit dans le style gothique.
C’est au XVIIIe siècle que l’édifice va connaître ses modifications les plus importantes avec la création des chapelles et la modification de la nef (remplacement du plafond bois par un plafond voûté en pierre). A cette occasion, les murs de la nef ont été entièrement reconstruits pour permettre la création des voûtes. Les charpentes à chevrons portant fermes ont été supprimées également, Avant cette période, l’édifice du XVIe siècle présentait un plan en forme de croix latine dont subsistent peu d’éléments aujourd’hui.









