Bretagne, Côtes-d’Armor (22)
Guenroc, Église paroissiale Saint-Gervais-et-Saint-Protais
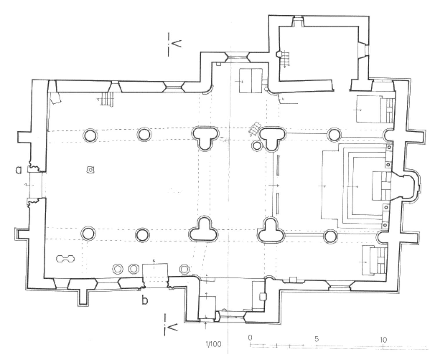
Édifice


DESCRIPTION
L´église paroissiale est encore partiellement entourée de son cimetière. L´enclos conserve à l´ouest un échalier de protection. Orientée à l´est comme la plupart des anciennes églises, elle est de plan en croix latine irrégulier et à chevet plat. Elle possédait au sud un porche qui a aujourd´hui disparu comme en témoigne la gouttière et sa gargouille incrustée dans le mur ouest de la chapelle sud qui forme bras de transept. Une sacristie est flanquée contre le mur nord du choeur. Le clocher en charpente est situé à la rencontre de la nef et du chœur, il se distingue par une flèche polygonale couverte d´ardoises. L´ensemble, de proportions harmonieuses, est remarquable à plusieurs égards. Le portail ouest de style gothique tardif porte la date en lettres gothiques de 1465 suivie de l´inscription IHESUS MA (RIA). Cette campagne de travaux correspond à la datation de l´église qui est par ailleurs relativement homogène, en dehors des travaux du choeur effectués au 18e siècle.Des armoiries en parties effacées sont encore visibles au dessus du portail ouest : blason avec un casque ouvert à lambrequins. Une litre seigneuriale bûchée à la Révolution est également visible à l´intérieur de l´église.La chapelle sud autrefois privative était réservée aux seigneurs de Beaumont dont le château se situe actuellement sur la commune de Guitté.La chapelle nord anciennement réservée aux seigneurs de la Roche est également appelée la chapelle de la Vierge ou du Rosaire.
HISTORIQUE
La paroisse est mentionnée en tant que telle en 1371 et appartenait dès 1447 au diocèse de Saint-Malo. L´église actuelle dédiée à Saint Gervais et à Saint Protais a été reconstruite dans la deuxième moitié du 15e siècle, entre 1458 et 1465. La date de 1465 est inscrite en lettres gothiques sur les chapiteaux du portail ouest. Sa construction hormis toutefois des différences d´appareillage est homogène. Elle conserve de cette période une belle fenêtre au réseau flamboyant dans le bras sud ainsi que les portails ouest et sud. L´ensemble à trois vaisseaux d´une grande sobriété possède peu de décor sculpté, hormis la gargouille de l´ancien porche sud. Le chœur a été reconstruit au 18e siècle sans rupture stylistique. Une pierre datée de 1773 a été vue au sommet de l´arcade sud du chœur. La toiture et le clocher ont été également refaits en 1895 par Marie Pellan, couvreur à la Ville Auray à Guenroc. L´environnement actuel de l´église résulte des modifications de 1908. Plusieurs autres restaurations et interventions ont eu lieu dans le courant du 20e siècle : la chapelle sud a été restaurée en 1938 et la niche du chœur, à jour céleste, construite en 1869 a été supprimée en 1973.












